BAU-Forum: Grundriss-Diskussionen
Neueste Forums-Bilder
Forums-Beiträge
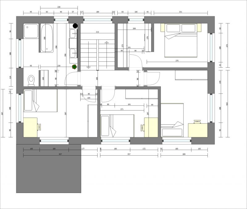
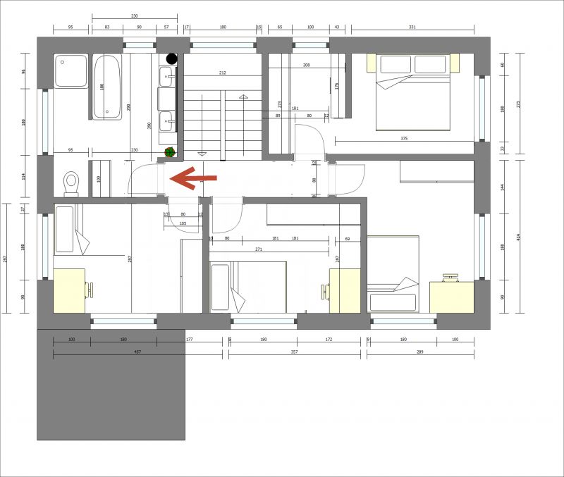
10740: Grundriss optimieren: Feedback zu OG (WC, Bad) und EG (Speis, Küche) gesucht 26.01.2026
- ✨ Beurteilung des Sachverhalts durch verschiedene KI-Systeme 26.01.2026
- Nur der Kellergrundriß ist brauchbar zu lesen..... 26.01.2026
- Ergänzende Grundrisse 27.01.2026
- Ein paar Gedanken dazu... 27.01.2026
- Danke für die Anmerkungen... 28.01.2026
- So einfach kann man Ihre Fragen..... 30.01.2026
10739: Optimierung des Erdgeschoss-Grundrisses: Ideen für offenen Wohnbereich gesucht 07.08.2025
10738: Grenzwand-Eigentümer ermitteln: Dokumente, Anlaufstellen & Vorgehensweise? 16.08.2023
- ✨ Beurteilung des Sachverhalts durch verschiedene KI-Systeme 11.01.2026
- Was für Wände? 16.08.2023
- Grenzwand: Eigentumsverhältnisse klären – Kataster & Baurecht 17.08.2023
- 📌 Zusammenfassung der Diskussionsbeiträge - Stand: 11.01.2026 11.01.2026
10737: Physio-Praxis Grundriss: Optimale Raumaufteilung mit 15qm, 8qm & Abstellraum? 15.07.2023
- ✨ Beurteilung des Sachverhalts durch verschiedene KI-Systeme 11.01.2026
- Physio-Praxis: Raumplanung – Nutzungsarten & Anforderungen 15.07.2023
- 📌 Zusammenfassung der Diskussionsbeiträge - Stand: 11.01.2026 11.01.2026
10736: Dach & Dämmung sanieren: Bauantrag, Architektenkosten, Zeichnungen für Altbau-Komplex? 15.05.2023
- ✨ Beurteilung des Sachverhalts durch verschiedene KI-Systeme 11.01.2026
- Aufmaßpläne: Statik, Material & Kosten bei Altbau-Sanierung 16.05.2023
- Dachsanierung: Keine neuen Pläne für Altbau-Rückseite nötig? 16.05.2023
- Architekten-Rechnung: Fehlerkorrektur – Neue Kosten korrekt? 16.05.2023
- Bauantrag ohne Plan: Geht das? Architekt vs. Bauherr 16.05.2023
- Architektenvertrag: Erfolg = Baugenehmigung? Zeithonorar-Risiko 16.05.2023
- 📌 Zusammenfassung der Diskussionsbeiträge - Stand: 11.01.2026 11.01.2026
10735: Altbausanierung Raumkonzept: Ideen, Grundriss & Raumaufteilung für 1893 Altbau 17.09.2021
- ✨ Beurteilung des Sachverhalts durch verschiedene KI-Systeme 11.01.2026
- Raumkonzept Altbau: Bedarfsanalyse vor Grundrissplanung 17.09.2021
- 📌 Zusammenfassung der Diskussionsbeiträge - Stand: 11.01.2026 11.01.2026
10734: Trapezförmiges Südgrundstück bebauen: Hausplanung, Baufenster & Herausforderungen? 06.09.2021
10733: Grundriss Wohnzimmer, Esszimmer, Küche: Optimierung für Anbau, Raumaufteilung & Treppenhaus? 14.05.2021
- ✨ Beurteilung des Sachverhalts durch verschiedene KI-Systeme 11.01.2026
- Raumaufteilung: Inspiration für Wohnzimmer, Küche & Essbereich 06.07.2021
- 📌 Zusammenfassung der Diskussionsbeiträge - Stand: 11.01.2026 11.01.2026
10732: Grundstück kaufen: Lage, Kosten, Sonneneinstrahlung & Risiken – Welches Grundstück wählen? 10.03.2021
- ✨ Beurteilung des Sachverhalts durch verschiedene KI-Systeme 11.01.2026
- Bilder hochladen: Tipps zur Bildbearbeitung & Textstrukturierung 10.03.2021
- Grundstückswahl: Bauchgefühl vs. Realität – Lärm, Gülle & Co. 11.03.2021
- Grundstück am Fluss: Hochwasser-Risiko & Hanglage begradigen 11.03.2021
- 📌 Zusammenfassung der Diskussionsbeiträge - Stand: 11.01.2026 11.01.2026
10731: Grundrissplanung: Expertenmeinungen, Optimierung & häufige Fehler vermeiden? 23.01.2021
- ✨ Beurteilung des Sachverhalts durch verschiedene KI-Systeme 11.01.2026
- Grundrissoptimierung: Raumaufteilung Küche/Bad – Experten-Tipps 03.02.2021
- 📌 Zusammenfassung der Diskussionsbeiträge - Stand: 11.01.2026 11.01.2026
10730: Grundriss Einfamilienhaus 140m²: Optimierung von Kochbereich, Bad & Raumaufteilung? 09.01.2021
- ✨ Beurteilung des Sachverhalts durch verschiedene KI-Systeme 11.01.2026
- Bad-Optimierung: Raumaufteilung mit Dusche, WC & Badewanne 03.02.2021
- Badgröße im EFH: Sind 13 m² ausreichend? 03.02.2021
- Raumaufteilung EFH: Kinderzimmer-Größe optimieren 03.02.2021
- Grundriss-Optimierung: Raumaufteilung im EFH verstanden 04.02.2021
- Küchenplanung EFH: Mehr Raum für Essbereich schaffen 05.08.2021
- 📌 Zusammenfassung der Diskussionsbeiträge - Stand: 11.01.2026 11.01.2026
10729: Stadthaus bauen auf kleinem Grundriss: Kosten, Planung & Genehmigung? 12.06.2020
10728: Haus mit Einliegerwohnung planen: Grundriss-Ideen, Treppen-Optimierung & Experten-Tipps? 13.05.2020
- ✨ Beurteilung des Sachverhalts durch verschiedene KI-Systeme 11.01.2026
- Treppenplanung im EFH: Raumoptimierung durch 90°-Drehung 15.05.2020
- 📌 Zusammenfassung der Diskussionsbeiträge - Stand: 11.01.2026 11.01.2026
10727: Grundrissänderung EFH: 2 Appartements realisieren – Ideen, Machbarkeit, Kosten? 31.03.2020
- ✨ Beurteilung des Sachverhalts durch verschiedene KI-Systeme 11.01.2026
- Baugenehmigung: EFH-Umbau in 2 Appartements erfordert Neubauantrag 01.04.2020
- 📌 Zusammenfassung der Diskussionsbeiträge - Stand: 11.01.2026 11.01.2026
10726: Grundrissplanung: Was ist bei der Gestaltung zu beachten? Vor- und Nachteile? 12.08.2019
- ✨ Beurteilung des Sachverhalts durch verschiedene KI-Systeme 11.01.2026
- Badplanung OG2: Warmwasser – Zirkulation vs. Durchlauferhitzer 16.08.2019
- 📌 Zusammenfassung der Diskussionsbeiträge - Stand: 11.01.2026 11.01.2026
10725: Schnitthöhe Dachgeschoss Bestandszeichnung: Wo messen? (1m über FFB) 05.08.2019
- ✨ Beurteilung des Sachverhalts durch verschiedene KI-Systeme 11.01.2026
- Schnitthöhe DG: Architektenplan – Relevante Wohnfläche & Darstellung 07.08.2019
- 📌 Zusammenfassung der Diskussionsbeiträge - Stand: 11.01.2026 11.01.2026
10724: Modernes Hanghaus planen: Design, Raumaufteilung & Herausforderungen am Südhang? 03.06.2019
- ✨ Beurteilung des Sachverhalts durch verschiedene KI-Systeme 11.01.2026
- Raumaufteilung Hanghaus: Eingang – Küche – Speisekammer optimieren 26.09.2019
- 📌 Zusammenfassung der Diskussionsbeiträge - Stand: 11.01.2026 11.01.2026
10723: Bad und Küche verlegen: Ideen für neue Standorte, Kosten & Machbarkeit? 24.02.2019
- ✨ Beurteilung des Sachverhalts durch verschiedene KI-Systeme 11.01.2026
- Bad/Küche im Altbau: Lösungsvorschläge & Herausforderungen 23.03.2024
- 📌 Zusammenfassung der Diskussionsbeiträge - Stand: 11.01.2026 11.01.2026
10722: Hausumbau: Grundriss optimieren für Familie – Ideen für Raumaufteilung, Kosten & Durchgangszimmer? 22.01.2019
Anhang:
- ✨ Beurteilung des Sachverhalts durch verschiedene KI-Systeme 11.01.2026
- Hausumbau: Brandschutz & Schallschutz – Wichtige Aspekte 23.01.2019
- Grundrissplanung: Zugangslage & optimale Raumaufteilung 23.01.2019
- Mietrecht: Risiken bei Wohnungsgrößen-Änderung im Hausumbau 24.01.2019
- Badplanung: Ideen für größeres Bad im Hausumbau gesucht! 25.01.2019
- 📌 Zusammenfassung der Diskussionsbeiträge - Stand: 11.01.2026 11.01.2026
10721: Wohnen, Essen, Kochen: Optimale Anordnung von Küche, Esstisch & Couch im offenen Wohnbereich? 14.12.2018
- ✨ Beurteilung des Sachverhalts durch verschiedene KI-Systeme 11.01.2026
- TV-Platzierung: Spiegelung durch Fensterfront vermeiden 15.12.2018
- Raumplanung: Individuelle Anordnungsideen für offene Wohnbereiche 16.12.2018
- 📌 Zusammenfassung der Diskussionsbeiträge - Stand: 11.01.2026 11.01.2026
10720: Mehrfamilienhaus planen: Grundriss-Check, Vor-/Nachteile & Kosten pro Wohnung? 19.11.2018
- ✨ Beurteilung des Sachverhalts durch verschiedene KI-Systeme 11.01.2026
- MFH: KFW 70 vs. KFW 55 – Kamin als Kostensparmodell? 19.11.2018
- Mehrfamilienhaus: Brandschutz & Fluchtwege – Planungsdefizite! 19.11.2018
- MFH-Grundriss: Erfüllt Abgeschlossenheit für WEG? 19.11.2018
- MFH-Grundriss: Copyright-geschützte Version in hoher Auflösung 19.11.2018
- MFH-Bauplanung: Brandschutzanforderungen & Tiefgaragenlüftung prüfen! 19.11.2018
- WEG-Eigentum: Einschränkungen vs. Reihenhaus – Grundstücksplanung MFH 21.11.2018
- Bauplanung: Beratung kostet – Eigene Kenntnisse vs. Honorarberater 21.11.2018
- Bauplanung: Kompetente Berater finden & prüfen – Kontrolle wichtig! 21.11.2018
- Aufzug im Schlafzimmer: Machbarkeit & Schallschutz im MFH 21.11.2018
- MFH-Brandschutz: Treppenhausentrauchung & Sicherheitstreppenhaus-Anforderungen 23.11.2018
- 📌 Zusammenfassung der Diskussionsbeiträge - Stand: 11.01.2026 11.01.2026
10719: Grundriss Einfamilienhaus: 2-geschossig mit Luftraum – Meinungen, Planung & Kosten? 22.10.2018
- ✨ Beurteilung des Sachverhalts durch verschiedene KI-Systeme 11.01.2026
- Grundriss EFH: Wandanordnung, Küchenfenster & Raumklima 23.10.2018
- Statik Einfamilienhaus: Statiker frühzeitig einbeziehen! 23.10.2018
- Küchenfenster-Position: Optimierung für Hängeschränke 23.10.2018
- Statik-Entwurf: Querbalken für Dachlast im OG notwendig? 23.10.2018
- Firstpfette: Dimensionierung & Lasten bei 12m Spannweite 23.10.2018
- Küchenfenster: Feststehendes Element als praktische Lösung 25.10.2018
- Stahlträger-Alternative: Stütze für Firstpfette möglich? 26.10.2018
- Stahlträger als Firstpfette: Sinnvolle Alternative? 27.10.2018
- Planung Einfamilienhaus: Dank für wertvolle Hinweise! 29.10.2018
- 📌 Zusammenfassung der Diskussionsbeiträge - Stand: 11.01.2026 11.01.2026
10718: Gebäude Einmessung Altbau: Wann erforderlich? Kosten & Verantwortlichkeiten 21.07.2017
- ✨ Beurteilung des Sachverhalts durch verschiedene KI-Systeme 11.01.2026
- Gebäude Einmessung: Konkreten Fall schildern – Altbau Vermessung 21.07.2017
- 📌 Zusammenfassung der Diskussionsbeiträge - Stand: 11.01.2026 11.01.2026
10717: Wohnbau: Vielfalt vs. Einheitlichkeit – Was bevorzugen Bauträger wirklich? Kosten & Zielgruppen 16.01.2017
- ✨ Beurteilung des Sachverhalts durch verschiedene KI-Systeme 11.01.2026
- Wohnbau: Vielfalt steigert Verkauf – Einheitlichkeit senkt Kosten 05.04.2017
- 📌 Zusammenfassung der Diskussionsbeiträge - Stand: 11.01.2026 11.01.2026
10716: Grundriss EFH 145m² ohne Keller: Optimierung von Raumaufteilung, Fenster & Details? 06.09.2016
- ✨ Beurteilung des Sachverhalts durch verschiedene KI-Systeme 11.01.2026
- Grundriss-Optimierung: Expertenrat kontra Laien-Entwurf 07.09.2016
- Schlüsselfertig Bauen: Bauantrag & Finanzierung im EFH 07.09.2016
- HWR-Planung: Optimale Raumnutzung im Einfamilienhaus 05.04.2017
- 📌 Zusammenfassung der Diskussionsbeiträge - Stand: 11.01.2026 11.01.2026
10715: Brandschutzmauer bei Grenzbebauung in RLP: Abstand, Fenster & Länge? 10.08.2016
- ✨ Beurteilung des Sachverhalts durch verschiedene KI-Systeme 11.01.2026
- Brandwand bei Grenzbebauung: Fenster zum Nachbarn – Ausnahmen? 11.08.2016
- Brandschutz bei Grenzbebauung: Komplette Wand als Brandwand? 11.08.2016
- Brandwand-Alternativen: Abstandsbaulast & Lichtrecht in RLP 12.08.2016
- 📌 Zusammenfassung der Diskussionsbeiträge - Stand: 11.01.2026 11.01.2026
10714: Grundriss-Check: Fehler finden & optimieren – Was sagen Experten? 27.07.2016
- ✨ Beurteilung des Sachverhalts durch verschiedene KI-Systeme 11.01.2026
- Was soll das mal werden... 27.07.2016
- Grundriss Einfamilienhaus: EG/OG Aufteilung prüfen 27.07.2016
- Grundriss-Entwurf: Fehleranalyse der Visualisierung 27.07.2016
- Floorplanner: Grundriss-Visualisierungstool für Laien 27.07.2016
- Grundriss-Feedback: Fensteranzahl, Bad-WC-Anordnung, Stauraum 28.07.2016
- Grundriss-Analyse: Fensteranordnung und Planungsfehler 28.07.2016
- Küchenplanung: Steckdosenanzahl und Schrankdimensionierung 28.07.2016
- Grundriss-Diskussion: Stiege in der Mitte – Vor- und Nachteile 29.07.2016
- Grundriss-Diskussion: Stiege in der Mitte – Vor- und Nachteile 29.07.2016
- Küchenplanung: Benötigte Anzahl Steckdosen – Einschätzung 29.07.2016
- Forum-Regeln: Anonymität vs. Namentliche Kritik 29.07.2016
- Küchengeräte: Benötigte Steckdosen – Auflistung 29.07.2016
- Küchenplanung: Festanschluss vs. Steckdosen – Geräteübersicht 01.08.2016
- Korrektur: UP-Dose vs. Steckdose – Klarstellung 01.08.2016
- Badplanung: Tageslichtoptimierung und Kinderzimmergestaltung 02.08.2016
- 📌 Zusammenfassung der Diskussionsbeiträge - Stand: 11.01.2026 11.01.2026
10713: Grundstücksaufschüttung 1m in NRW: Genehmigung, Höhenvorgaben & Risiken? 15.05.2016
- ✨ Beurteilung des Sachverhalts durch verschiedene KI-Systeme 11.01.2026
- Geländehöhe & Aufschüttung: Kanaldeckel, Abstandsregeln, NRW 16.05.2016
- 📌 Zusammenfassung der Diskussionsbeiträge - Stand: 11.01.2026 11.01.2026
10712: Dachneigung Entscheidung: Optimale Neigung finden – Expertenrat, Vor- & Nachteile? 23.03.2016
- ✨ Beurteilung des Sachverhalts durch verschiedene KI-Systeme 11.01.2026
- Dachneigung: Vor- & Nachteile 22 vs. 28 Grad – Entscheidungshilfe 25.03.2016
- Dachneigung Entscheidung: Danke für die Unterstützung! 25.03.2016
- 📌 Zusammenfassung der Diskussionsbeiträge - Stand: 11.01.2026 11.01.2026
10711: 4-Familienhaus planen: Ausrichtung Terrasse/Eingang, Grundstückslage (Baumreihe, Straße) 19.01.2016
- ✨ Beurteilung des Sachverhalts durch verschiedene KI-Systeme 11.01.2026
- Terrassenausrichtung: Nutzerpräferenzen vs. Architektenmeinung 20.01.2016
- 📌 Zusammenfassung der Diskussionsbeiträge - Stand: 11.01.2026 11.01.2026
10710: Grundrissplanung Hausbau: Optimierungsideen für Bad, Küche & Wohnbereich? 15.11.2015
- ✨ Beurteilung des Sachverhalts durch verschiedene KI-Systeme 11.01.2026
- Treppenplanung: Vierteldrehung als Raumspar-Lösung 17.01.2017
- 📌 Zusammenfassung der Diskussionsbeiträge - Stand: 11.01.2026 11.01.2026
10709: Straßenausbaubeitrag Eckgrundstück: Zweite Zufahrt – Rückerstattung oder Eckvergünstigung? 03.11.2015
- ✨ Beurteilung des Sachverhalts durch verschiedene KI-Systeme 11.01.2026
- Straßenausbaubeitrag: Keine Rückerstattung bei neuer Zufahrt! 21.11.2015
- 📌 Zusammenfassung der Diskussionsbeiträge - Stand: 11.01.2026 11.01.2026
10708: Badgrundriss planen: Optimale Raumaufteilung mit Dusche & Badewanne – Checkliste 18.10.2015
- ✨ Beurteilung des Sachverhalts durch verschiedene KI-Systeme 11.01.2026
- Abwasserplanung: 3 Stränge für 3 Installationsvorwände? 20.10.2015
- 📌 Zusammenfassung der Diskussionsbeiträge - Stand: 11.01.2026 11.01.2026
10707: DDR-Bungalow Typ bestimmen: Baujahr, Merkmale & Besonderheiten der Fertighaus-Modelle? 23.05.2015
10706: Grenzbebauung: Was ist erlaubt? Abstand, Rechte & Pflichten bei Neubauten? 12.05.2015
- ✨ Beurteilung des Sachverhalts durch verschiedene KI-Systeme 11.01.2026
- Grenzbebauung: Katasterdaten statt Grenzsteine nutzen! 12.05.2015
- 📌 Zusammenfassung der Diskussionsbeiträge - Stand: 11.01.2026 11.01.2026
10705: Fertighaus planen: Grundriss-Optimierung für 635 m² Grundstück – Checkliste & Tipps 20.04.2015
- ✨ Beurteilung des Sachverhalts durch verschiedene KI-Systeme 11.01.2026
- Grundriss-Optimierung: Dürftige Infos – Was fehlt wirklich? 21.04.2015
- Grundriss-Entwurf: Architektengespräch – Grundlage Eigenplanung 21.04.2015
- Grundriss-Check: Schlafzimmer, Bad & Putzkammer optimieren! 21.04.2015
- 📌 Zusammenfassung der Diskussionsbeiträge - Stand: 11.01.2026 11.01.2026
10704: Versorgungsschacht im Grundriss richtig kennzeichnen: Raumhöhe, Zeichnung & Vorschriften? 14.02.2015
- ✨ Beurteilung des Sachverhalts durch verschiedene KI-Systeme 11.01.2026
- Versorgungsschacht: Klärung mit Bauleiter/Architekt! 14.02.2015
- Rohbau-Status: Kanalposition im Grundriss unklar! 14.02.2015
- 📌 Zusammenfassung der Diskussionsbeiträge - Stand: 11.01.2026 11.01.2026
10703: Einheit 0 in Bauplänen: Bedeutung, Verwendung & Zweck der Bezeichnung? 08.12.2014
- ✨ Beurteilung des Sachverhalts durch verschiedene KI-Systeme 11.01.2026
- Einheit 0: Rückfrage zum Planersteller – Klärung empfohlen 08.12.2014
- 📌 Zusammenfassung der Diskussionsbeiträge - Stand: 11.01.2026 11.01.2026
10702: Maximale Personenzahl: Gaststätte, Diskothek & Versammlungsraum – Wer legt die Obergrenze fest? 23.11.2014
- ✨ Beurteilung des Sachverhalts durch verschiedene KI-Systeme 11.01.2026
- Nutzungsänderung: Baugenehmigung, Personenzahl & Versammlungsstätte 24.11.2014
- 📌 Zusammenfassung der Diskussionsbeiträge - Stand: 11.01.2026 11.01.2026
10701: Hausausrichtung Hanglage Süd: Optimale Zimmerplanung mit Blick, Nachbarschaft & Wald? 28.09.2014
- ✨ Beurteilung des Sachverhalts durch verschiedene KI-Systeme 11.01.2026
- Grundrissplanung: Schwierigkeiten bei Südausrichtung – Neufert-Empfehlung 29.09.2014
- 📌 Zusammenfassung der Diskussionsbeiträge - Stand: 11.01.2026 11.01.2026
10700: Wohnfläche berechnen & Gutachten erstellen lassen: Kosten, Ablauf & Experten in 96317? 18.05.2014
- ✨ Beurteilung des Sachverhalts durch verschiedene KI-Systeme 11.01.2026
- Wohnflächenberechnung: II. BV oder WoFlVO – Architekten-Info 19.05.2014
- 📌 Zusammenfassung der Diskussionsbeiträge - Stand: 11.01.2026 11.01.2026
10699: Wasseranschluss falsch verlegt: Welche Toleranzen gelten bei der Installation in der Küche? 11.01.2014
- ✨ Beurteilung des Sachverhalts durch verschiedene KI-Systeme 11.01.2026
- Wasseranschluss: Vertragliche Zusicherung prüfen! 11.01.2014
- Wasseranschluss: 'Geringfügige Abweichungen' – Was bedeutet das? 12.01.2014
- DIN 18202: Maßtoleranzen im Hochbau – Relevanz für Wasseranschlüsse 12.01.2014
- Wasseranschluss: Abweichung – Begründung & Lösungsmöglichkeiten 12.01.2014
- VOB/C DIN 18381: Relevanz für Sanitärinstallation 12.01.2014
- Wasseranschluss: Abweichung bestätigt – Bauträger beruft sich auf Kaufvertrag 25.01.2014
- Wasseranschluss: Küchenplanung ohne Aufmaß – Wer trägt die Verantwortung? 25.01.2014
- 📌 Zusammenfassung der Diskussionsbeiträge - Stand: 11.01.2026 11.01.2026
10698: Grundrissplanung: Ist dieser Entwurf sinnvoll & realisierbar? Vor- und Nachteile 08.01.2014
Anhang:
- ✨ Beurteilung des Sachverhalts durch verschiedene KI-Systeme 11.01.2026
- Grundriss: Flur & Eingangsbereich – Optimale Größe beachten! 09.01.2014
- Grundriss-Bewertung: Flurgröße, Raumaufteilung & Optimierungspotenzial 05.10.2014
- 📌 Zusammenfassung der Diskussionsbeiträge - Stand: 11.01.2026 11.01.2026
10697: Innenputz Dicke: Wie wirkt sie sich auf Grundriss-Abmessungen aus? 22.12.2013
Anhang:
- ✨ Beurteilung des Sachverhalts durch verschiedene KI-Systeme 11.01.2026
- Neuer Grundriss 25.12.2013
Anhang:
- Grundriss: WoFIV-Konformität – Putzdicke bei Wandberechnung 31.12.2013
- Vielen Dank... 01.01.2014
- Innenputz als Wandbekleidung: Definition & Auswirkungen auf Grundfläche 02.01.2014
- In Bauzeichnungen 07.01.2014
- 📌 Zusammenfassung der Diskussionsbeiträge - Stand: 11.01.2026 11.01.2026
10696: Elternschlafzimmer & Hauptbad im EG planen: Grundrisse, Vor- & Nachteile, Alternativen? 31.10.2013
- ✨ Beurteilung des Sachverhalts durch verschiedene KI-Systeme 11.01.2026
- Architektenwahl: Eigene Planung durchsetzen oder wechseln? 31.10.2013
- 📌 Zusammenfassung der Diskussionsbeiträge - Stand: 11.01.2026 11.01.2026
10695: Freistehender Aufzugturm für Neubau: Sicherheit, Zugänglichkeit & Brandschutz? 18.09.2013
10694: Gartenstreit mit Nachbarn: Gewohnheitsrecht, Grundstücksgrenzen & Klärungsmöglichkeiten? 25.08.2013
- ✨ Beurteilung des Sachverhalts durch verschiedene KI-Systeme 11.01.2026
- Grundstücksgrenze klären – Katasteramt-Auszug als Nachweis 25.08.2013
- Gewohnheitsrecht: Pachtforderung – Risiko trotz Gewohnheit? 26.08.2013
- Grundstückskauf: Klare Eigentumsverhältnisse durch Grundbuch & Kataster 26.08.2013
- 📌 Zusammenfassung der Diskussionsbeiträge - Stand: 11.01.2026 11.01.2026
10693: 1,5-geschossiges Haus trotz 2 Vollgeschossen im Bebauungsplan? Kniestock & Dachneigung 29.07.2013
- ✨ Beurteilung des Sachverhalts durch verschiedene KI-Systeme 11.01.2026
- welchen Sinn.. 29.07.2013
- Bebauungsplan: Geschmacksfrage oder Vorgabe des GU? 29.07.2013
- 2 Vollgeschosse zu wuchtig? Bebauungsplan-Details prüfen! 29.07.2013
- Bebauungsplan: Widerspruch zwischen E+1 und 2 Vollgeschossen? 29.07.2013
- Bebauungsplan: Screenshots zur Vollgeschoss-Definition 29.07.2013
Anhang:
- Kniestock/Drempel: II. Vollgeschoss trotz Dachneigung möglich! 29.07.2013
- Kniestockhöhe berechnen: Architekt oder Eigenberechnung? 29.07.2013
- Vollgeschoss-Definition: Architekt wegen Haftung empfehlenswert! 30.07.2013
- 📌 Zusammenfassung der Diskussionsbeiträge - Stand: 11.01.2026 11.01.2026
10692: Hauseingang planen: Nord- oder Südseite? Grundstückszugang, Gefälle & Kosten 20.06.2013
10691: Anwaltskanzlei im Neubau-Atrium: Geeignet? Raumaufteilung, Fenster & Gestaltung prüfen 01.06.2013
- ✨ Beurteilung des Sachverhalts durch verschiedene KI-Systeme 11.01.2026
- Anwaltskanzlei: Grundriss-Ergänzung im Neubau-Atrium 01.06.2013
Anhang:
- Büroplanung: 180 m² für Anwaltskanzlei ausreichend? 01.06.2013
- Bürotauglichkeit: Fensterlose Wände im Anwaltsbüro? 01.06.2013
- Baugenehmigung: Relevante Fragen für Anwaltskanzlei-Neubau 01.06.2013
- Grundriss-Gestaltung: Büro-Eignung im Neubau-Atrium 01.06.2013
- Raumplanung: Büro-Beziehungen in Anwaltskanzlei beachten 03.06.2013
- 📌 Zusammenfassung der Diskussionsbeiträge - Stand: 11.01.2026 11.01.2026
|
|
BAU |





























































































