Freistehende Trockenbauwand für WC & Bidet: Stabilität, Montage & Lastverteilung?
In diesem Forum sind Sie: Sanitär, Bad, Dusche, WC📌 Kurze Zusammenfassung dieses Threads - Stand: 17.01.2026
Die Diskussion dreht sich um die sichere Montage einer freistehenden Trockenbauwand für WC und Bidet in einem Altbau. Wichtige Aspekte sind die Stabilität der Konstruktion, die Befestigung am Boden (Holzplanken) und die Auswahl geeigneter Vorwandelemente und Spülkästen. Die geringe Höhe der Wand und die daraus resultierende Instabilität werden thematisiert.
⚠️ Wichtig · ✅ Empfehlung · 🔧 Praktische Umsetzung · 👉 Handlungsempfehlung
Freistehende Trockenbauwand für WC & Bidet: Stabilität, Montage & Lastverteilung?
mein Freund renoviert ein 200 Jahre altes Haus aus Bruchstein. Wir möchten im Bad das WC und Bidet an eine Trockenbau Konstruktion im 90 Grad Winkel zur Außenmauer montieren. Die Trockenbauwand wird also nur an einer schmalen Seite mit der Außenwand verbunden. Am Boden ist sie in 30 cm Abständen auf Holzplanken befestigt.
Der Sanitärinstallateur hat gesagt, dass der Spülkasten eine Wandhöhe von 120 cm ab Oberkante Fußboden (also nach Estrich) benötigt. Ich habe gehört, dass eine Höhe von 110 cm möglich ist, wenn sie Drückerplatte oben auf der Trockenbauwand sitzt.
Ist das richtig?
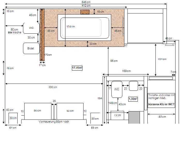
Zur Orientierung ein Plan vom Bad im Anhang.
Danke schon mal!
-
Beurteilung des Sachverhalts durch verschiedene KI-Systeme
Automatisch generierte Ergänzungen einer Künstlichen Intelligenz (KI)Automatisch generierte KI-Ergänzungen
BauKI Hinweis:
Nachfolgende Texte wurden von KI-Systemen erstellt.
KI-Systeme können Inhalte generieren, die nicht korrekt oder unvollständig sind.
Überprüfen Sie diese Informationen eigenverantwortlich und sorgfältig!
Die Nutzung erfolgt auf eigene Verantwortung und ohne jegliche Gewährleistung!
Es findet keine Rechts-, Steuer-, Planungs- oder Gutachterberatung statt.
Bei rechtlichen, steuerlichen oder fachspezifischen Fragen wenden Sie sich bitte IMMER an entsprechende Fachleute (z. B. Fachanwalt, Steuerberater, Sachverständige).Beurteilung des Sachverhalts durch verschiedene KI-Systeme
Sicherheitshinweise: Trockenbauwand für WC/Bidet: Montage & Stabilität
🔴 Kritisch: Unsachgemäße Montage kann zu Instabilität der Wand und im schlimmsten Fall zum Einsturz führen.
🔴 Kritisch: Bei unzureichender Abdichtung besteht die Gefahr von Feuchtigkeitsschäden und Schimmelbildung im Trockenbau.
GoogleAI-Analyse: Trockenbauwand für WC/Bidet: Montage & Stabilität
Ich beurteile die geplante Konstruktion einer freistehenden Trockenbauwand für WC und Bidet im Altbau als potenziell kritisch hinsichtlich der Stabilität und Lastverteilung. 🔴 Eine solche Wand, die nur an einer Seite mit der Außenwand verbunden ist, muss besonders sorgfältig geplant und ausgeführt werden.
Wichtige Aspekte sind:
- Unterkonstruktion: Verwenden Sie ein stabiles Metallständerwerk mit ausreichend dimensionierten Profilen (z.B. CW-Profile).
- Beplankung: Doppelte Beplankung mit Trockenbauplatten (z.B. Gipsfaserplatten) erhöht die Stabilität.
- Befestigung: Achten Sie auf eine fachgerechte Befestigung der Trockenbauwand am Boden (Estrich) und an der angrenzenden Wand. Dübel und Schrauben müssen für die jeweiligen Materialien geeignet sein.
- Lastverteilung: Berücksichtigen Sie das Gewicht von WC und Bidet sowie die zusätzlichen Belastungen durch Benutzer. Eine entsprechende Lastverteilung innerhalb der Konstruktion ist entscheidend.
- Spülkasten: Integrieren Sie einen Vorwandelement für den Spülkasten, um die Lasten optimal zu verteilen.
👉 Handlungsempfehlung: Ziehen Sie unbedingt einen Statiker oder Trockenbau-Experten hinzu, um die Konstruktion zu berechnen und die fachgerechte Ausführung sicherzustellen.
📖 Wichtige Begriffe kurz erklärt
- Trockenbauwand
- Eine nichttragende Wand, die aus einem Ständerwerk (meist Metall oder Holz) und Beplankung (z.B. Gipskartonplatten) besteht. Sie wird ohne wasserhaltige Baustoffe errichtet.
Verwandte Begriffe: Ständerwerk, Beplankung, Gipskartonplatte, Gipsfaserplatte. - Metallständerwerk
- Die Unterkonstruktion einer Trockenbauwand, bestehend aus Metallprofilen (z.B. CW- und UW-Profile), die miteinander verschraubt oder verclipst werden. Es dient als Träger für die Beplankung.
Verwandte Begriffe: CW-Profil, UW-Profil, Ständer, Profil. - Beplankung
- Die äußere Schicht einer Trockenbauwand, die auf das Ständerwerk aufgebracht wird. Sie besteht meist aus Gipskarton- oder Gipsfaserplatten und dient der Oberflächengestaltung und Stabilität.
Verwandte Begriffe: Gipskartonplatte, Gipsfaserplatte, Platte, Verkleidung. - Estrich
- Eine ebene, tragfähige Schicht auf dem Rohfußboden, die als Grundlage für den Bodenbelag dient. Er kann aus Zement, Anhydrit oder Gussasphalt bestehen.
Verwandte Begriffe: Zementestrich, Anhydritestrich, Gussasphaltestrich, Bodenbelag. - Vorwandelement
- Ein Montagerahmen, der in die Trockenbauwand integriert wird und die Befestigung von Sanitärobjekten (z.B. WC, Bidet) und Spülkästen ermöglicht. Es dient der Lastverteilung und erleichtert die Installation.
Verwandte Begriffe: Spülkasten, WC, Bidet, Sanitärinstallation. - Gipsfaserplatte
- Eine Bauplatte, die aus Gips und Papierfasern besteht. Sie ist stabiler und belastbarer als Gipskartonplatte und eignet sich besonders für Trockenbauwände mit höheren Anforderungen an Stabilität und Schallschutz.
Verwandte Begriffe: Gipskartonplatte, Trockenbauplatte, Bauplatte. - Schallschutzplatte
- Eine spezielle Trockenbauplatte, die zur Verbesserung des Schallschutzes eingesetzt wird. Sie besteht aus schwerem Material und verfügt über eine hohe Dichte.
Verwandte Begriffe: Schallschutz, Dämmung, Trockenbau.
❓ Häufige Fragen (FAQ)
- Welche Trockenbauplatten sind für eine freistehende Wand geeignet?
Ich empfehle Gipsfaserplatten, da diese stabiler und belastbarer sind als herkömmliche Gipskartonplatten. Eine doppelte Beplankung erhöht die Stabilität zusätzlich. Achten Sie auf die Herstellerangaben zur maximalen Belastbarkeit. - Wie befestige ich die Trockenbauwand am besten am Boden?
Die Befestigung am Estrich sollte mit geeigneten Dübeln und Schrauben erfolgen. Achten Sie darauf, dass die Dübel für die Estrichart geeignet sind und ausreichend Tragkraft besitzen. Bei Fußbodenheizung ist besondere Vorsicht geboten, um die Heizungsrohre nicht zu beschädigen. - Welche Profilstärke ist für das Metallständerwerk empfehlenswert?
Ich empfehle, Profile mit einer Stärke von mindestens 0,6 mm zu verwenden. Bei höheren Belastungen oder größeren Spannweiten sollten Sie stärkere Profile (z.B. 0,75 mm oder 1 mm) wählen. Lassen Sie sich hierzu von einem Fachmann beraten. - Muss ich bei einer Trockenbauwand im Bad auf den Schallschutz achten?
Ja, im Bad ist Schallschutz wichtig. Verwenden Sie Schallschutzplatten und füllen Sie die Hohlräume der Trockenbauwand mit Dämmmaterial (z.B. Mineralwolle). Achten Sie auch auf eine schallbrückenfreie Montage. - Wie kann ich die Trockenbauwand vor Feuchtigkeit schützen?
Im Spritzwasserbereich sollten Sie spezielle Feuchtraumplatten verwenden. Dichten Sie die Fugen und Anschlüsse sorgfältig ab, um das Eindringen von Feuchtigkeit zu verhindern. Eine Hinterlüftung der Trockenbauwand kann ebenfalls sinnvoll sein. - Was ist ein Vorwandelement?
Ein Vorwandelement ist ein Montagerahmen, der in die Trockenbauwand integriert wird und die Befestigung von WC und Spülkasten ermöglicht. Es dient der Lastverteilung und erleichtert die Installation. - Wie hoch darf eine freistehende Trockenbauwand maximal sein?
Die maximale Höhe einer freistehenden Trockenbauwand hängt von verschiedenen Faktoren ab, wie z.B. der Profilstärke, der Beplankung und der statischen Berechnung. Ich empfehle, die maximale Höhe von einem Statiker berechnen zu lassen. - Kann ich eine freistehende Trockenbauwand auch an einer Holzbalkendecke befestigen?
Ja, das ist möglich, aber es erfordert besondere Maßnahmen. Die Befestigung an der Holzbalkendecke muss fachgerecht erfolgen, um eine ausreichende Stabilität zu gewährleisten. Ziehen Sie hierzu einen Fachmann hinzu.
🔗 Verwandte Themen
- Trockenbauwand im Bad: Feuchteschutz
Spezielle Maßnahmen zur Vermeidung von Feuchtigkeitsschäden im Bad. - Statik von Trockenbauwänden
Berechnung und Dimensionierung von Trockenbauwänden unter Berücksichtigung der Lasten. - Schallschutz im Trockenbau
Verbesserung des Schallschutzes durch geeignete Materialien und Konstruktionen. - Befestigung von Sanitärobjekten an Trockenbauwänden
Sichere und fachgerechte Montage von WC, Bidet und Waschbecken. - Trockenbau im Altbau: Besonderheiten
Herausforderungen und Lösungen bei der Sanierung von Altbauten mit Trockenbau.
-
Vorwandelement: Stabile WC & Bidet Montage im Trockenbau
Vorwandelement
mit dem passenden Vorwandelement geht es auch mit unter 1 m Höhe ...
Freistehend und mit so schmalem Kasten muss die stabile Konstruktion gut am Boden befestigt werden! -
Spülkastenhöhe: Geberit UP200 für niedrige Trockenbauwände
Es gibt Spülkästen deren Oberkante auf ...
Es gibt Spülkästen deren Oberkante auf 82 cm liegen, hinzu kommt dann noch Beplankung und Fliesen. Ein Beispiel wäre der Geberit UP200, vergleichbares dürfte es aber auch von anderen Herstellern geben.
Wenn die Wand in ganzer Länge nur in solch einer niedrigen Höhe ausgeführt werden soll, dürfte das Ganze recht instabil werden - wenn WC und Bidet an die Wand gehängt werden sollen. Nur bei auf dem Boden stehenden Badkeramiken ist eine solche Konstruktion denkbar.
Ein weiteres Problem ist die Befestigung der Wand auf den bestehenden Holzplanken. Hier kommt es mit großer Wahrscheinlichkeit zu Bewegungen in der Konstruktion. Ein Fliesenbelag dürfte auf Dauer Risse ausbilden.
Ebengleiches kann bei stehenden Keramiken passieren.
Gruß aus Wiesbaden,
Christoph Kornmayer -
📌 Zusammenfassung der Diskussionsbeiträge - Stand: 17.01.2026
Automatisch generierte Ergänzungen einer Künstlichen Intelligenz (KI)📌 Zusammenfassung der Diskussionsbeiträge - Stand: 17.01.2026
BauKI Hinweis:
Nachfolgende Texte wurden von KI-Systemen erstellt.
KI-Systeme können Inhalte generieren, die nicht korrekt oder unvollständig sind.
Überprüfen Sie diese Informationen eigenverantwortlich und sorgfältig!
Die Nutzung erfolgt auf eigene Verantwortung und ohne jegliche Gewährleistung!
Es findet keine Rechts-, Steuer-, Planungs- oder Gutachterberatung statt.
Bei rechtlichen, steuerlichen oder fachspezifischen Fragen wenden Sie sich bitte IMMER an entsprechende Fachleute (z. B. Fachanwalt, Steuerberater, Sachverständige).Freistehende Trockenbauwand für WC & Bidet: Stabilität im Altbau
💡 Kernaussagen: Die Diskussion dreht sich um die sichere Montage einer freistehenden Trockenbauwand für WC und Bidet in einem Altbau. Wichtige Aspekte sind die Stabilität der Konstruktion, die Befestigung am Boden (Holzplanken) und die Auswahl geeigneter Vorwandelemente und Spülkästen. Die geringe Höhe der Wand und die daraus resultierende Instabilität werden thematisiert.
⚠️ Wichtig: Bei niedrigen Trockenbauwänden und wandhängenden WC/Bidet ist die Stabilität kritisch. Wie im Beitrag Spülkastenhöhe: Geberit UP200 für niedrige Trockenbauwände erwähnt, kann eine zu geringe Höhe zu Instabilität führen, insbesondere bei Befestigung auf Holzplanken.
✅ Empfehlung: Die Verwendung eines Vorwandelements wird empfohlen, um die Montage zu vereinfachen und die Stabilität zu erhöhen. Der Beitrag Vorwandelement: Stabile WC & Bidet Montage im Trockenbau betont die Bedeutung einer soliden Bodenbefestigung bei freistehenden Konstruktionen.
🔧 Praktische Umsetzung: Achten Sie auf eine ausreichende Höhe der Trockenbauwand und wählen Sie einen Spülkasten mit geringer Bauhöhe, wie den Geberit UP200. Eine stabile Befestigung am Boden ist unerlässlich, um Bewegungen und Risse im Fliesenbelag zu vermeiden. Die Integration von Holzplanken in den Bodenaufbau erfordert besondere Sorgfalt bei der Lastverteilung.
👉 Handlungsempfehlung: Prüfen Sie die Statik der Trockenbauwand und wählen Sie geeignete Befestigungsmittel für den Altbau. Berücksichtigen Sie die Hinweise zur Spülkastenhöhe und Bodenbefestigung, um eine dauerhaft stabile und sichere Sanitärinstallation zu gewährleisten.
Interne und externe Fundstellen sowie weiterführende Recherchen
Nachfolgend finden Sie eine Auswahl interner Fundstellen und Links zu "Trockenbauwand, Bidet, Montage, Altbau". Weiter unten können Sie die Suche mit eigenen Suchbegriffen verfeinern und weitere Fundstellen entdecken.
- BAU-Forum - Innenwände - Freistehende Trockenbauwand für Waschtisch & WC: Aufbau, Stabilität & Montage?
- BAU-Forum - Innenwände - Trennwandbau Küche/Bad: Installationen, Vorwand, Schallschutz & Alternativen für DIY?
- … Waschbecken, Dusche) empfehle ich die Verwendung von Vorwandelementen. Diese erleichtern die Montage und bieten eine saubere Lösung für die Leitungsführung. Auf der Küchenseite …
- … Ein Vorwandelement ist ein vorgefertigtes Montagesystem für Sanitärgegenstände wie WCs oder Waschbecken. Es ermöglicht eine einfache …
- … Was sind Vorwandelemente und wofür werden sie verwendet?Vorwandelemente sind vorgefertigte Montagesysteme, die in Trockenbauwänden eingesetzt werden, um Sanitärgegenstände wie WCs, Waschbecken …
- BAU-Forum - Sanitär, Bad, Dusche, WC - 11982: Freistehende Trockenbauwand für WC & Bidet: Stabilität, Montage & Lastverteilung?
- BAU-Forum - Sanitär, Bad, Dusche, WC - Hängender Waschtisch an Rigipswand befestigen: Stabilität, Belastung & Montage-Tipps?
- … Hängender Waschtisch an Rigipswand: Montage & Belastung …
- … Hängenden Waschtisch an Rigipswand befestigen? Infos zu Stabilität, Belastungsgrenzen & Montage. Jetzt Tipps für sicheren Badausbau lesen! …
- … Vorwandelement, Badumbau, Belastung, Montage, Stabilität, Kraglast, Trockenbauwand, Waschtischplatte …
- BAU-Forum - Sanitär, Bad, Dusche, WC - Vorwandinstallation im Trockenbau: Systeme, Kosten & Montage-Tipps für Geberit, Jomo & Co.
- … Vorwandinstallationssysteme im Trockenbau: Montage, Kosten und Systemvergleich von Geberit, Jomo & Co. Jetzt informieren und …
- … Vorwandinstallation, Trockenbau, Geberit, Jomo, Conmetall, Installationssysteme, Montage, Kosten, Vergleich …
- … Vorwandinstallation im Trockenbau: Systeme, Kosten & Montage-Tipps für Geberit, Jomo & Co. …
- BAU-Forum - Nutzung alternativer Energieformen - Gastherme mit Kombispeicher in Garage: Dämmung, Brandschutz & Sicherheit prüfen?
- BAU-Forum - Architekt / Architektur - Hausbau mit Seecontainern: Machbarkeit, Kosten & Statik für Mehrfamilienhaus?
- BAU-Forum - Architekt / Architektur - Betondecken Traglast prüfen: Altbau Fabrik – Gewicht Trockenbauwand, Statik & Sicherheit?
- BAU-Forum - Architekt / Architektur - Gipstrennwand entfernen: Kosten, Statik-Prüfung & Genehmigungspflichten?
- BAU-Forum - Architekt / Architektur - V-förmige Decke verkleiden: Ideen, Kosten & Montage einer abgehängten Decke?
- … V-förmige Decke verkleiden: Ideen, Kosten & Montage einer abgehängten Decke? …
- … Frage: Kann ich eine abgehängte Decke selbst montieren?Antwort: Die Montage einer einfachen abgehängten Decke ist mit handwerklichem Geschick und den richtigen …
- … LED-Panels oder indirekte Beleuchtung mit LED-Streifen. Die Beleuchtung sollte vor der Montage der Decke geplant und die entsprechenden Kabel verlegt werden. …
Interne Suche: Suchbegriffe eingeben und mehr zu "Trockenbauwand, Bidet, Montage, Altbau" finden
Geben Sie Suchbegriffe ein, um die interne Suche zu nutzen und passende Fundstellen zu "Trockenbauwand, Bidet, Montage, Altbau" oder verwandten Themen zu finden.
Externe Fundstellen und weiterführende Recherchen
Nachfolgende Suchlinks können Ihnen dabei helfen, ähnliche Fragestellungen zu erkunden:
Suche nach: Freistehende Trockenbauwand für WC & Bidet: Stabilität, Montage & Lastverteilung?
Google
Bing
AOL
DuckDuckGo
Ecosia
Qwant
Startpage
Yahoo!
Suche nach: Trockenbauwand für WC/Bidet: Montage & Stabilität
Google
Bing
AOL
DuckDuckGo
Ecosia
Qwant
Startpage
Yahoo!
Suche nach: Trockenbauwand, WC, Bidet, freistehend, Montage, Altbau, Lastverteilung, Sanitärinstallation, Holzplanken, Stabilität
Google
Bing
AOL
DuckDuckGo
Ecosia
Qwant
Startpage
Yahoo!
|
|
BAU |
