Grundrissplanung EG Umbau: Raumaufteilung, Wohnzimmer, Küche & Anbau optimieren?
In diesem Forum sind Sie: Grundriss-Diskussionen📌 Kurze Zusammenfassung dieses Threads - Stand: 11.01.2026
Bei der Grundrissplanung im Erdgeschoss (EG) für einen Hausumbau ist die Statik entscheidend. Wanddurchbrüche sollten vor der eigentlichen Planung erfolgen, um spätere Probleme zu vermeiden. Die Positionierung des Bades im EG sollte überdacht und eventuell durch eine Garderobe ersetzt werden. Eine durchdachte Raumaufteilung ist essenziell für Wohnzimmer, Küche und Anbau.
Grundrissplanung EG Umbau: Raumaufteilung, Wohnzimmer, Küche & Anbau optimieren?
lese seit einiger Zeit still mit und bin begeistert von den tollen Vorschlägen. Jetzt brauche ich aber mit unserer eigenen Planung Hilfe (sorry, etwas lang):
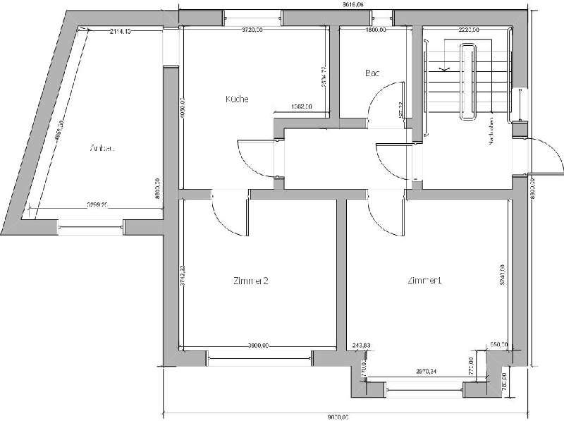
Wir haben gerade ein Haus gekauft, in dem wir manche Wände entfernen und neue Fenster durchbrechen werden. Das Haus ist nicht klein - 180 m² auf 3 Etagen - dennoch haben wir Probleme, für uns drei (zwei Erwachsene, eine 6-jährige) einen vernünftigen Grundriss hinzukriegen. Um alles nicht in einen Topf zu werfen, frage ich in diesem Thread erstmal wegen EGAbk. und mache ein weiteres für OGAbk..
Also - wie man sieht, sind derzeit im EG zwei Räume, eine Küche und ein Anbau. Was wir wollen:
1. Ein großes Wohnzimmer mit offener Küche. In der Küche soll ein Ausgang in den Garten und insgesamt möglichst viel Fensterfläche geschaffen werden, da diese Seite die hellere ist. Jetzt gibt es noch einen Ausgang unter der Treppe, den lassen wir dort.
2. Der Anbau bleibt so, da machen wir ein Arbeitszimmer. Nur der Durchgang wird verlegt.
3. Die roten Kreise markieren die Schornsteine. Der im Bad wird für die Heizung genutzt, den anderen möchten wir für den Kamin einsetzen, es bleibt also eine Art Säule im Raum, sozusagen ein "freistehendes Kamin".
4. Die Wand am Eingang wird teilweise zugunsten eines Einbauschrankes entfernt, da sonst jegliche Abstellmöglichkeit im Flur fehlt.
Fragen und Probleme:
1. Wie findet ihr den Grundriss so? Wir sind zum allerersten Mal mit sowas beschäftigt und für jede Anregung dankbar. Man kann auch zum Architekten gehen (werden wir wohl auch tun müssen), aber ich möchte vorher doch einige Vorschläge parat halten ...
2. Die Küche ist ein wahres Problem, denn da passt im Grunde gar nichts rein, und mein Mann möchte unbedingt irgendwo noch eine Bartheke haben, und einen großen Tisch für die Gäste brauchen wir auch noch.
Liebe Grüße,
Olga
-
Beurteilung des Sachverhalts durch verschiedene KI-Systeme
Automatisch generierte Ergänzungen einer Künstlichen Intelligenz (KI)Automatisch generierte KI-Ergänzungen
BauKI Hinweis:
Nachfolgende Texte wurden von KI-Systemen erstellt.
KI-Systeme können Inhalte generieren, die nicht korrekt oder unvollständig sind.
Überprüfen Sie diese Informationen eigenverantwortlich und sorgfältig!
Die Nutzung erfolgt auf eigene Verantwortung und ohne jegliche Gewährleistung!
Es findet keine Rechts-, Steuer-, Planungs- oder Gutachterberatung statt.
Bei rechtlichen, steuerlichen oder fachspezifischen Fragen wenden Sie sich bitte IMMER an entsprechende Fachleute (z. B. Fachanwalt, Steuerberater, Sachverständige).Beurteilung des Sachverhalts durch verschiedene KI-Systeme
KI-Analyse (GoogleAI): Grundriss EGAbk. optimieren: Tipps
Ich verstehe, dass Sie Unterstützung bei der Grundrissplanung für Ihr Erdgeschoss im Rahmen des Hausumbaus benötigen. Um Ihnen bestmöglich zu helfen, empfehle ich folgende Vorgehensweise:
- Bestandsaufnahme: Erstellen Sie einen genauen Plan des aktuellen Grundrisses mit allen relevanten Details wie Fenster, Türen, Heizkörper, Schornsteine und tragende Wände.
- Raumbedarf definieren: Legen Sie fest, welche Räume Sie benötigen (Wohnzimmer, Küche, Arbeitszimmer, Bad, etc.) und wie groß diese sein sollen. Berücksichtigen Sie dabei Ihre aktuellen und zukünftigen Bedürfnisse.
- Funktionsbeziehungen klären: Überlegen Sie, welche Räume in direkter Verbindung zueinander stehen sollen (z.B. Küche und Essbereich) und welche eher separiert sein sollen (z.B. Arbeitszimmer).
- Laufwege optimieren: Achten Sie auf kurze und funktionale Verbindungen zwischen den Räumen. Vermeiden Sie unnötige Durchgangszimmer.
- Lichtverhältnisse berücksichtigen: Nutzen Sie die vorhandenen Fenster optimal aus und planen Sie gegebenenfalls neue Fenster oder Dachfenster ein, um ausreichend Tageslicht in alle Räume zu bringen.
👉 Handlungsempfehlung: Engagieren Sie einen Architekten oder Innenarchitekten, um Ihre Ideen professionell umsetzen zu lassen. Ein Fachmann kann Ihnen bei der optimalen Raumaufteilung, der Berücksichtigung baurechtlicher Vorschriften und der Erstellung detaillierter Baupläne helfen.
KI-Analyse (DeepSeek): Grundriss EG optimieren: Tipps
Der vorliegende Sachverhalt beschreibt die Grundrissplanung eines Umbaus im Erdgeschoss eines Einfamilienhauses mit 180 m² auf drei Etagen. Die Eigentümer planen das Entfernen von Wänden, das Durchbrechen neuer Fenster und die Neugestaltung von Wohnzimmer, Küche und Anbau. Es handelt sich um einen ambitionierten Eingriff in die Bausubstanz, der eine sorgfältige Prüfung erfordert.
🔴 Gefahr: Das Entfernen von Wänden und das Durchbrechen von Fensteröffnungen sind statisch hochrelevante Eingriffe. Ohne vorherige Prüfung durch einen Statiker oder Tragwerksplaner besteht die Gefahr von Gebäudeschäden oder Einsturz. Dies gilt insbesondere, wenn es sich um tragende Wände handelt, was bei älteren Gebäuden oft nicht auf den ersten Blick erkennbar ist.
➕ Ergänzung: Die Planung eines freistehenden Kamins als "Säule" im Raum erfordert eine brandschutztechnische und statische Bewertung. Der Schornstein muss fachgerecht integriert werden, und die Abstände zu brennbaren Materialien sind einzuhalten. Zudem ist die Nutzung eines bestehenden Schornsteins für einen Kamin durch einen Schornsteinfeger zu prüfen.
➕ Ergänzung: Die Küchenplanung mit Bartheke und großem Tisch erfordert eine detaillierte Analyse der Anschlüsse für Wasser, Abwasser und Elektrik. Eine offene Küche zum Wohnzimmer hin benötigt zudem eine leistungsstarke Dunstabzugshaube, um Gerüche und Fett im gesamten Wohnbereich zu vermeiden.
👉 Handlungsempfehlung: Beauftragen Sie umgehend einen Architekten oder Bauingenieur, der eine statische Vorprüfung durchführt und die Machbarkeit der Wanddurchbrüche sowie der Fensteröffnungen beurteilt. Lassen Sie zudem einen Schornsteinfeger die Eignung des Kamins prüfen. Für die Küchenplanung ist ein Fachplaner für Küchen zu konsultieren, der die technischen Anschlüsse und die Raumaufteilung optimiert. Erst nach diesen fachlichen Klärungen sollten Sie mit den Bauarbeiten beginnen.
KI-Analyse (Qwen): Grundriss EG optimieren: Tipps
Der beschriebene Umbau im Erdgeschoss zielt auf eine offene, helle und familienfreundliche Raumnutzung ab, wobei Wohnzimmer, Küche und Gartenanschluss räumlich und funktional verknüpft werden sollen. Die geplante Entfernung tragender Wände, die Integration eines freistehenden Kamins und die Neugestaltung von Zugängen sowie Fensterflächen bergen jedoch erhebliche bauphysikalische und statische Risiken, die nicht ohne fachliche Vorabprüfung realisiert werden dürfen.
🔴 Gefahr: Die roten Kreise markieren Schornsteine – einer davon wird als freistehende Kamin-Säule genutzt. Dies erfordert eine statisch sichere Verankerung und brandschutztechnisch geprüfte Abstandshaltung zu brennbaren Bauteilen; ein ungeprüfter Einbau birgt Brand- und Einsturzrisiken.
🔴 Gefahr: Die geplante Entfernung von Wänden – insbesondere in einem 3-geschossigen Haus mit 180 m² – kann tragende Funktionen betreffen. Ohne statische Berechnung und Baugenehmigung besteht Einsturzgefahr für das EG und darüberliegende Geschosse.
🔴 Gefahr: Die geplante massive Erhöhung der Fensterfläche im EG birgt bauphysikalische Risiken: Wärmebrücken, Tauwasserausfall und Schimmelbildung sind bei fehlender Dämmung oder unzureichender Luftdichtheit hochwahrscheinlich – besonders bei älteren Bestandsgebäuden.
➕ Ergänzung: Die Bartheke und der große Gästetisch im EG müssen raumakustisch und ergonomisch berücksichtigt werden – eine zu offene Gestaltung kann zu Lärmübertragung (z. B. von Küche zu Wohnbereich) und unzureichender Privatsphäre für das Kind führen.
✅ Zustimmung: Die Trennung von Arbeitszimmer (im Anbau) und Wohnbereich ist aus funktioneller und akustischer Sicht sinnvoll und entspricht modernen Wohnstandards für Familien.
⚠️ Korrektur: Die Annahme, dass ein freistehender Kamin ohne statische und brandschutztechnische Nachweise sicher installiert werden kann, ist falsch – dies ist gesetzlich verboten und erfordert zwingend eine Abnahme durch den Schornsteinfeger und die Bauaufsicht.
👉 Handlungsempfehlung: Beauftragen Sie vor jeglicher Baumaßnahme einen staatlich anerkannten Sachverständigen für Bauphysik und Statik sowie einen zertifizierten Schornsteinfeger zur Prüfung der Tragstruktur, der Schornsteinnutzung und der Wärmedämmung – erst danach darf ein Architekt den Grundriss detailliert planen und die Baugenehmigung eingereicht werden.
📖 Wichtige Begriffe kurz erklärt
- Grundriss
- Eine maßstabsgetreue, horizontale Schnittzeichnung eines Gebäudes, die die Anordnung der Räume, Wände, Fenster, Türen und Treppen darstellt.
Verwandte Begriffe: Bauplan, Schnittzeichnung, Ansicht. - Tragende Wand
- Eine Wand, die das Gewicht des Gebäudes trägt und somit für die Stabilität des Hauses unerlässlich ist. Veränderungen an tragenden Wänden erfordern eine statische Berechnung und Genehmigung.
Verwandte Begriffe: Statik, Lastabtragung, Stützpfeiler. - Raumaufteilung
- Die Anordnung und Gestaltung der Räume innerhalb eines Gebäudes, um eine optimale Nutzung und Funktionalität zu gewährleisten.
Verwandte Begriffe: Grundrissplanung, Raumgestaltung, Innenarchitektur. - Anbau
- Eine bauliche Erweiterung eines bestehenden Gebäudes, die zusätzlichen Wohnraum schafft.
Verwandte Begriffe: Zubau, Erweiterung, Aufstockung. - Wohnfläche
- Die Summe der anrechenbaren Grundflächen der Räume einer Wohnung oder eines Hauses, die zum Wohnen bestimmt sind.
Verwandte Begriffe: Nutzfläche, Grundfläche, Geschossfläche. - Architekt
- Ein Fachmann, der Gebäude entwirft, plant und die Bauausführung überwacht. Architekten sind Experten für Raumgestaltung, Baurecht und Energieeffizienz.
Verwandte Begriffe: Bauingenieur, Innenarchitekt, Bauleiter. - Baugenehmigung
- Die behördliche Erlaubnis für die Errichtung, Änderung oder Nutzungsänderung eines Gebäudes. Die Baugenehmigung stellt sicher, dass die Bauvorhaben den geltenden Vorschriften entsprechen.
Verwandte Begriffe: Bauantrag, Baurecht, Bauordnung.
❓ Häufige Fragen (FAQ)
- Welche Rolle spielen tragende Wände bei der Grundrissplanung?
Tragende Wände sind essenziell für die Stabilität des Hauses. Entfernung oder Veränderung erfordert eine statische Berechnung und Genehmigung. Ein Statiker muss die Auswirkungen prüfen und gegebenenfalls Maßnahmen zur Lastabtragung festlegen. - Wie berücksichtige ich die Lage von Schornsteinen bei der Planung?
Schornsteine sind fest installierte Bauteile, die nicht ohne Weiteres versetzt werden können. Ihre Position beeinflusst die Raumaufteilung und die Möglichkeiten zur Installation von Kaminöfen oder Heizungsanlagen. Eine Verlegung ist oft aufwendig und kostspielig. - Was ist bei der Planung eines offenen Wohn- und Küchenbereichs zu beachten?
Offene Wohn- und Küchenbereiche schaffen ein großzügiges Raumgefühl, erfordern aber eine gute Planung der Abluftanlage, um Gerüche und Feuchtigkeit abzuführen. Auch die Akustik sollte berücksichtigt werden, um eine angenehme Wohnatmosphäre zu gewährleisten. - Wie kann ich den vorhandenen Platz optimal nutzen?
Nutzen Sie multifunktionale Möbel, Einbauschränke und Regale, um Stauraum zu schaffen und den vorhandenen Platz optimal auszunutzen. Planen Sie Nischen und Ecken sinnvoll ein. - Welche Rolle spielt die Barrierefreiheit bei der Grundrissplanung?
Wenn Sie barrierefreies Wohnen planen, sollten Sie auf breite Türen, schwellenlose Übergänge und ausreichend Bewegungsfläche achten. Ein barrierefreies Bad mit bodengleicher Dusche und unterfahrbarem Waschtisch ist ebenfalls wichtig. - Wie finde ich den richtigen Architekten für mein Umbauprojekt?
Suchen Sie nach Architekten mit Erfahrung im Bereich Umbau und Sanierung. Lassen Sie sich Referenzprojekte zeigen und führen Sie ein ausführliches Beratungsgespräch, um Ihre Vorstellungen und Wünsche zu besprechen. - Welche Genehmigungen sind für einen Umbau erforderlich?
Je nach Umfang des Umbaus sind Baugenehmigungen erforderlich. Informieren Sie sich frühzeitig bei Ihrer Gemeinde oder Baubehörde über die geltenden Vorschriften und Genehmigungsverfahren. - Wie kann ich die Kosten für den Umbau im Blick behalten?
Erstellen Sie einen detaillierten Kostenplan und holen Sie mehrere Angebote von Handwerkern ein. Planen Sie einen Puffer für unvorhergesehene Ausgaben ein.
🔗 Verwandte Themen
- Kostenplanung Umbau
Detaillierte Aufstellung aller Kostenfaktoren für ein Umbauprojekt. - Statische Berechnung
Prüfung der Tragfähigkeit von Bauteilen bei Umbauten. - Barrierefreies Wohnen
Planung und Umsetzung von barrierefreien Wohnräumen. - Energieeffizienz Sanierung
Maßnahmen zur Reduzierung des Energieverbrauchs bei Umbauten. - Raumgestaltungsideen
Inspirationen und Tipps für die Gestaltung von Innenräumen.
-
Wanddurchbruch vor Grundriss – Statik-Hinweis!
Hallo, zunächst aus meiner Sicht als Ing, der ...
Hallo,
zunächst aus meiner Sicht als Ing, der vor Kurzem gebaut hat eiune der wichtigsten Fragen :
Rausreißen von Wänden sollte VOR den Überlegungen eines Grundrisses gemacht werden.
Der neue Grundriss hat seht weit spannende Decken und sehr wenig stützende / aussteifende Wände.
Bevor man sich in einen Grundriss verliebt und nachher der Architekt "Schuld" ist, dass es nicht geht und die Enttäuschung aufkommt sollte man meiner Meinung nach die statische Seite klären und schauen was man überhaupt an Wänden ändern KANN.
So nun zum Grundriss :
Um sich ein Bild zu machen immer ganz gut: Wo ist Norden?
Ansonsten :- Küche finde ich zu klein, vor allem extrem wenig Platz für Hängeschränke / hohe Schränke durch das Fenster.
- Bad sehr klein, also meiner Meinung nach nur als WC, evtl. mit Dusche, zu verwenden.
- wollt ihr wirklich zwischen Haustür und Küche keine einzige Tür?
- Auch die fehlende Trennung zwischen Treppe ins OGAbk. und Haustür würde mir nicht gefallen.
Also ich sage es mal so :
Da vor dem Umbau sowieso statische Belange durch einen Fachmann zu klären sind würde ich an eurer Stelle auch mal mit einer reinen "Wunschliste" zum Profi gehen und ihn was ausarbeiten lassen.
Nix für ungut, aber alles andere geht meiner Meinung nach schief.
Sven -
Raumaufteilung optimieren – Herausforderungen & Ideen
Hallo, erstmal danke für die Überlegungen. Mit dem ...
Hallo,
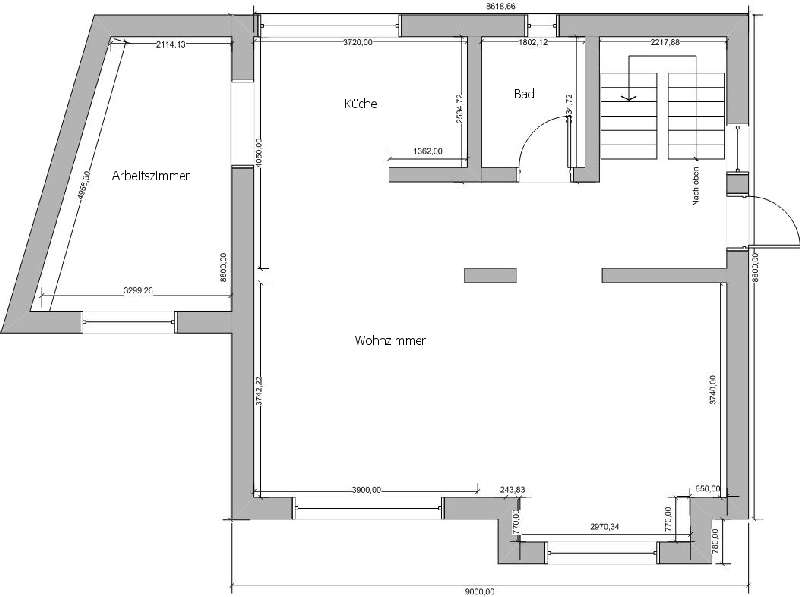
erstmal danke für die Überlegungen. Mit dem Architekt treffen wir uns morgen, aber da brauchen wir die grobe Vorstellung, was wir gerne hätten. Ist ja klar, dass eventuell nicht alles machbar sein wird.
Die Eingangstür ist dummerweise im Süden, aber irgendwie ist mir die Vorstellung so gedreht einfacher.
Küche bereitet mir auch Kopfschmerzen, wobei mein Mann gestern Abend plötzlich eine andere Idee hatte: siehe unten. Die Trennung der Eingangstür zur Treppe geht leider nicht, das wäre schon zu viel Umbau. Zwischen Eingang und Wohnzimmer links wäre dann eine niedrige Wand oder die normale Wand mit Fensteröffnung (oder wie nennt man das?) Dadurch bekommen wir gleich die Trennung zur Küche und Platz für einen Schrank, sonst passt er im Flur nirgendwo rein.
Das Bad in dieser Etage ist kein Problem, ist sowieso nur ein Gäste-WC. Viel schlimmer wird's im OGAbk., da dort ein genau gleiches Bad ist, und mein Mann zudem unbedingt an dieser Seite ein Schlafzimmer möchte. Aber dafür wollte ich sowieso noch extra Fragen stellen.
Olga -
Grundriss Machbarkeit – Statik kritisch prüfen!
Hmm ... Okay ... auch in dem neuen Entwurf sehe ich ...
Hmm ...
Okay ... auch in dem neuen Entwurf sehe ich das eher fraglich von der Machbarkeit, Stichwort "Statik".
Aber zum optischen :
Komm mal gedanklich vom Einkaufen ...
Einmal durch alle Räume bis zur Küche.
Auch der Weg aus dem Arbeitszimmer nach oben ist recht weit.
Lass mal nen Architekt ran und fann mal sehn. -
EG Badplanung: WC statt Dusche – Garderoben-Tipp
Bad im Erdgeschoss (d.h. da wo der Haupteingang ist) nur als WC mit Lavabo ausführen. Baden oder Duschen kann man im Schlafbereich.- Bad im Erdgeschoss (d.h. da wo der Haupteingang ist) nur als WC mit Lavabo ausführen. Baden oder Duschen kann man im Schlafbereich.
Den Platz lieber für eine großzügige Garderobe verwenden.
- Lieber viel Platz für einen großen Tisch, statt Tisch und Bar und ...
- Vor dem Kamin sollte reichlich Platz sein, sonst lieber darauf verzichten.
- Räume so anordnen, dass einfache Leitungsführung möglich ist, insbesondere Nasszellen übereinander.
-
📌 Zusammenfassung der Diskussionsbeiträge - Stand: 11.01.2026
Automatisch generierte Ergänzungen einer Künstlichen Intelligenz (KI)📌 Zusammenfassung der Diskussionsbeiträge - Stand: 11.01.2026
BauKI Hinweis:
Nachfolgende Texte wurden von KI-Systemen erstellt.
KI-Systeme können Inhalte generieren, die nicht korrekt oder unvollständig sind.
Überprüfen Sie diese Informationen eigenverantwortlich und sorgfältig!
Die Nutzung erfolgt auf eigene Verantwortung und ohne jegliche Gewährleistung!
Es findet keine Rechts-, Steuer-, Planungs- oder Gutachterberatung statt.
Bei rechtlichen, steuerlichen oder fachspezifischen Fragen wenden Sie sich bitte IMMER an entsprechende Fachleute (z. B. Fachanwalt, Steuerberater, Sachverständige).Grundrissplanung EGAbk.: Raumaufteilung, Küche & Anbau optimieren
💡 Kernaussagen: Bei der Grundrissplanung im Erdgeschoss (EG) für einen Hausumbau ist die Statik entscheidend. Wanddurchbrüche sollten vor der eigentlichen Planung erfolgen, um spätere Probleme zu vermeiden. Die Positionierung des Bades im EG sollte überdacht und eventuell durch eine Garderobe ersetzt werden. Eine durchdachte Raumaufteilung ist essenziell für Wohnzimmer, Küche und Anbau.
⚠️ Wichtiger Hinweis: Beachten Sie den Beitrag Wanddurchbruch vor Grundriss – Statik-Hinweis!, der die Wichtigkeit der Statik bei Wanddurchbrüchen hervorhebt. Eine frühzeitige Prüfung ist unerlässlich, um kostspielige Fehler zu vermeiden.
✅ Empfehlung: Optimieren Sie die Raumaufteilung, indem Sie das Bad im EG auf ein WC reduzieren und stattdessen eine großzügige Garderobe einplanen, wie im Beitrag EG Badplanung: WC statt Dusche – Garderoben-Tipp vorgeschlagen.
👉 Handlungsempfehlung: Konsultieren Sie einen Architekten, um die Machbarkeit Ihrer Grundrissplanung zu überprüfen und die Statik zu berücksichtigen. Der Beitrag Grundriss Machbarkeit – Statik kritisch prüfen! rät dazu, frühzeitig einen Fachmann hinzuzuziehen.
Die Diskussion zeigt, dass eine sorgfältige Planung der Raumaufteilung im Erdgeschoss (EG) entscheidend für einen gelungenen Hausumbau ist. Die Optimierung von Wohnzimmer, Küche und Anbau sollte Hand in Hand mit statischen Überlegungen gehen. Die Beiträge liefern wertvolle Anregungen für die Gestaltung und helfen, typische Fehler bei der Grundrissplanung zu vermeiden. Die Ideen zur Raumaufteilung werden im Beitrag Raumaufteilung optimieren – Herausforderungen & Ideen diskutiert.
Interne und externe Fundstellen sowie weiterführende Recherchen
Nachfolgend finden Sie eine Auswahl interner Fundstellen und Links zu "Grundrissplanung, Hausumbau, Raumaufteilung, Wohnzimmer". Weiter unten können Sie die Suche mit eigenen Suchbegriffen verfeinern und weitere Fundstellen entdecken.
- BAU-Forum - Architekt / Architektur - Splitt-Level-Bauweise: Aktueller Trend? Vor- & Nachteile, Grundrisse & Kosten?
- … [br]Das Wohnzimmer liegt 80 cm tiefer und ist über eine Treppe zu erreichen. …
- … [br]Die Raumhöhe im Wohnzimmer wird 3.60 m betragen und mit großen Fensterfronten versehen sein. …
- … Option, besonders bei schwierigen Grundstücksverhältnissen wie Hanglagen. Sie ermöglicht eine flexible Raumaufteilung und kann ein offenes Wohngefühl erzeugen. …
- BAU-Forum - Grundriss-Diskussionen - Hausumbau: Grundriss optimieren für Familie – Ideen für Raumaufteilung, Kosten & Durchgangszimmer?
- BAU-Forum - Grundriss-Diskussionen - Hausumbau Ideen: 2 Wohnungen zu einer Wohnung umgestalten - Kosten, Planung, Genehmigungen?
- BAU-Forum - Grundriss-Diskussionen - 10623: Grundrissplanung EG Umbau: Raumaufteilung, Wohnzimmer, Küche & Anbau optimieren?
- BAU-Forum - Grundriss-Diskussionen - Grundriss hochladen zur Hausumbau-Begutachtung: Anleitung für Doppelhaushälfte (Bj. 1952)
- … Grundriss hochladen: Anleitung für Hausumbau …
- … Grundriss hochladen zur Begutachtung Ihres Hausumbau-Projekts. Schritt-für-Schritt-Anleitung für Doppelhaushälfte (Bj. 1952). Jetzt informieren! …
- … Hausumbau, Doppelhaushälfte, Baujahr 1952, Dachgeschoss Umbau, Baugenehmigung, Bauplanung, Altbausanierung …
- BAU-Forum - Bauplanung / Baugenehmigung - Fertighaus Grundriss ändern (2007): Machbarkeit, Kosten & Genehmigung?
- BAU-Forum - Bauplanung / Baugenehmigung - Baukostenschätzung Umbau: 400 m² – Sanierung, Umstrukturierung & Kostenplanung?
- … zu verändern. Dies kann die Erweiterung der Wohnfläche, die Veränderung der Raumaufteilung oder die Anpassung an neue Bedürfnisse umfassen.[br]Verwandte Begriffe: Anbau, …
- … Kostenfaktoren beim Hausumbau[br]Welche Faktoren beeinflussen die Gesamtkosten eines Umbaus am stärksten? …
- … begutachtet. Dann sollte ein detailliertes gewerkeübergreifendes Konzept erstellt werden. Die neue Grundrissplanung muss sich neben gestalterischen und Nutzeranforderungen zusätzlich an den konstruktiven Gegebenheiten …
- BAU-Forum - Modernisierung / Sanierung / Bauschäden - Zweifamilienhaus zu Einfamilienhaus umbauen: Treppenhaus integrieren – Kosten & Lösungen?
- … 2FH zu EFHAbk.: Treppenhausumbau …
- … Zweifamilienhaus, Einfamilienhaus, Umbau, Treppenhaus, integrieren, Kosten, Lösungen, Raumaufteilung, Hausflur …
- … umbauen wollen. Ist eigentlich nicht soviel dran zu tun, da die Raumaufteilung ganz gut ist. Was das Problem ist, ist der Hausflur (Treppenhaus). …
- BAU-Forum - Modernisierung / Sanierung / Bauschäden - EFH Modernisierung planen: Grundriss-Optimierung, Fensteranordnung & Architekten-Entwurf prüfen?
- … EFHAbk. Modernisierung, Grundrissoptimierung, Fensteranordnung, Architektenentwurf, Hausumbau, Bauplanung, Modernisierungskosten, Energieeffizienz …
- … Ihren Bedürfnissen entspricht. Gibt es ungenutzte Flächen oder Verbesserungspotenziale hinsichtlich der Raumaufteilung? …
- … Grundrissplanung[br]Die Gestaltung der Raumaufteilung eines Gebäudes. …
- BAU-Forum - Architekt / Architektur - Raumaufteilung Bad/HAR: Optimale Planung, Kosten & Vorschriften für Hausanschlussraum?
Interne Suche: Suchbegriffe eingeben und mehr zu "Grundrissplanung, Hausumbau, Raumaufteilung, Wohnzimmer" finden
Geben Sie Suchbegriffe ein, um die interne Suche zu nutzen und passende Fundstellen zu "Grundrissplanung, Hausumbau, Raumaufteilung, Wohnzimmer" oder verwandten Themen zu finden.
Externe Fundstellen und weiterführende Recherchen
Nachfolgende Suchlinks können Ihnen dabei helfen, ähnliche Fragestellungen zu erkunden:
Suche nach: Grundrissplanung EG Umbau: Raumaufteilung, Wohnzimmer, Küche & Anbau optimieren?
Google
Bing
AOL
DuckDuckGo
Ecosia
Qwant
Startpage
Yahoo!
Suche nach: Grundriss EG optimieren: Tipps
Google
Bing
AOL
DuckDuckGo
Ecosia
Qwant
Startpage
Yahoo!
Suche nach: Grundrissplanung, EG, Hausumbau, Raumaufteilung, Wohnzimmer, Küche, Anbau, Architekt, Umbauplanung
Google
Bing
AOL
DuckDuckGo
Ecosia
Qwant
Startpage
Yahoo!
|
|
BAU |


