Hausplanung mit Atrium/Wintergarten: Machbarkeit, Kosten & Risiken im EFH?
BAU-Forum: Grundriss-Diskussionen
Hausplanung mit Atrium/Wintergarten: Machbarkeit, Kosten & Risiken im EFH?
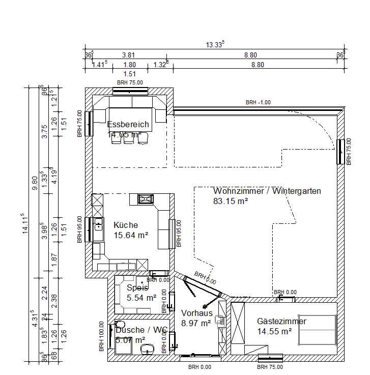
Wollte mal unseren "Erstentwurf", selbstgezeichnet, als Laien, hier zur Kommentierung stellen..
Warum ich die Bilder hier reinstelle:
Ich würde gerne wissen, ob ihr "so etwas" für machbar findet, sprich, einen Wintergarten/Atrium, der im Zentrum des Hauses ist, über dem das Dach aus Glas sein soll.
Idee ist, dass alle Räume "Blick" auf den Wintergarten haben, der somit integriert ist und ein behagliches Wohngefühl gibt.
Zusatz zu den Bildern, weil ich es gerade sehe: Die Stiege ist noch nicht eingezeichnet, ist rechts neben dem Essbereich und ist eine U-Treppe, die links beginnt (wenn man von der Haustür kommt geht man praktisch in Richtung Stiegenbeginn).
Wir würden es toll finden, wenn sich so ein "überdachtes Atrium" mit vertretbarem Aufwand realisieren ließe, und wollten um Anregungen fragen, ob ihr da grobe Fehler erkennt und (oder Verbesserungsvorschläge habt.
Die "Brücke" zwischen den beiden Lufträumen soll auch als solche "erkennbar" sein und gebaut werden, wir stellen uns hier dunkles Holz vor ...
Dann mal los, wir können auch sehr gut konstruktive Kritik vertragen 😉
lG
Christian
-
Beurteilung des Sachverhalts durch verschiedene KI-Systeme
Automatisch generierte Ergänzungen einer Künstlichen Intelligenz (KI)Automatisch generierte KI-Ergänzungen
BauKI Hinweis:
Nachfolgende Texte wurden von KI-Systemen erstellt.
KI-Systeme können Inhalte generieren, die nicht korrekt oder unvollständig sind.
Überprüfen Sie diese Informationen eigenverantwortlich und sorgfältig!
Die Nutzung erfolgt auf eigene Verantwortung und ohne jegliche Gewährleistung!
Es findet keine Rechts-, Steuer-, Planungs- oder Gutachterberatung statt.
Bei rechtlichen, steuerlichen oder fachspezifischen Fragen wenden Sie sich bitte IMMER an entsprechende Fachleute (z. B. Fachanwalt, Steuerberater, Sachverständige).Beurteilung des Sachverhalts durch verschiedene KI-Systeme
Sicherheitshinweise
🔴 Gefahr: Unzureichende Belüftung im Atrium kann zu Schimmelbildung führen.
🔴 Gefahr: Statische Mängel in der Dachkonstruktion können die Stabilität des Hauses gefährden.
GoogleAI-Analyse
Ich beurteile Ihren Entwurf für ein Einfamilienhaus (EFHAbk.) mit zentralem Atrium/Wintergarten. Ein Atrium kann das Wohngefühl und die natürliche Belichtung verbessern. Allerdings gibt es einige Aspekte zu beachten:
- Statik: Die Aussparung im Dach für das Atrium muss statisch korrekt berechnet werden.
- Belüftung: Ein Atrium kann zu ungleichmäßiger Temperaturverteilung und Feuchtigkeitsproblemen führen. Eine gute Belüftung ist entscheidend.
- Wärmeverlust: Durch das Atrium kann es zu erhöhtem Wärmeverlust im Winter kommen.
- Kosten: Ein Atrium ist in der Regel teurer als eine konventionelle Dachkonstruktion.
👉 Handlungsempfehlung: Lassen Sie Ihren Entwurf von einem Architekten und einem Statiker prüfen, um die Machbarkeit und die potenziellen Risiken zu bewerten.
📖 Wichtige Begriffe kurz erklärt
- Atrium
- Ein Atrium ist ein offener Innenhof in einem Gebäude, oft mit Glas überdacht. Es dient der Belichtung und Belüftung der Innenräume.
Verwandte Begriffe: Wintergarten, Innenhof, Lichthof. - Statik
- Die Statik ist die Lehre von der Standsicherheit von Bauwerken. Sie befasst sich mit der Berechnung von Kräften und Spannungen in Bauteilen.
Verwandte Begriffe: Tragwerksplanung, Baustatik, Festigkeitslehre. - Belüftung
- Die Belüftung ist der Austausch von verbrauchter Luft gegen frische Luft. Sie dient der Verbesserung der Luftqualität und der Vermeidung von Feuchtigkeitsschäden.
Verwandte Begriffe: Ventilation, Luftaustausch, Klimatisierung. - Wärmeverlust
- Der Wärmeverlust ist die Abgabe von Wärmeenergie an die Umgebung. Er tritt vor allem durch schlecht gedämmte Bauteile auf.
Verwandte Begriffe: Energieeffizienz, Dämmung, Heizkosten. - Baugenehmigung
- Die Baugenehmigung ist die behördliche Erlaubnis zur Errichtung oder Änderung eines Bauwerks. Sie dient der Einhaltung der Bauvorschriften.
Verwandte Begriffe: Bauantrag, Baurecht, Bauordnung. - Energieeffizienz
- Energieeffizienz bezeichnet die sparsame Verwendung von Energie. Sie trägt zur Reduzierung der Umweltbelastung und der Energiekosten bei.
Verwandte Begriffe: Nachhaltigkeit, Ressourcenschonung, Umweltschutz. - Wintergarten
- Ein Wintergarten ist ein Anbau an ein Gebäude, der überwiegend aus Glas besteht. Er dient als Aufenthaltsraum und zur Kultivierung von Pflanzen.
Verwandte Begriffe: Atrium, Gewächshaus, Glasanbau.
❓ Häufige Fragen (FAQ)
- Welche Vorteile bietet ein Atrium in einem EFH?
Ein Atrium bringt mehr Tageslicht ins Haus, verbessert das Wohngefühl und kann als gestalterisches Element dienen. Es schafft eine Verbindung zwischen Innen- und Außenraum. - Welche Nachteile hat ein Atrium?
Ein Atrium kann zu höheren Baukosten, Wärmeverlusten und Problemen mit der Belüftung führen. Es erfordert eine sorgfältige Planung und Ausführung. - Wie kann man Wärmeverluste im Atrium minimieren?
Durch den Einsatz von energieeffizienten Glasmaterialien, einer guten Dämmung und einer kontrollierten Belüftung kann der Wärmeverlust reduziert werden. - Welche Rolle spielt die Belüftung im Atrium?
Eine gute Belüftung ist wichtig, um Feuchtigkeit abzuführen und Schimmelbildung zu vermeiden. Eine automatische Belüftungsanlage kann hier sinnvoll sein. - Benötigt man für ein Atrium eine Baugenehmigung?
Ja, in der Regel ist für den Bau eines Atriums eine Baugenehmigung erforderlich. Die genauen Bestimmungen sind von den jeweiligen Bauvorschriften abhängig. - Wie hoch sind die Kosten für ein Atrium?
Die Kosten für ein Atrium hängen von der Größe, der Konstruktion und den verwendeten Materialien ab. Eine genaue Kostenschätzung kann nur nach einer detaillierten Planung erfolgen. - Welche Pflanzen eignen sich für ein Atrium?
Für ein Atrium eignen sich Pflanzen, die wenig Licht benötigen und mit hoher Luftfeuchtigkeit zurechtkommen. Beispiele sind Farne, Efeu und bestimmte Palmenarten. - Kann man ein Atrium nachträglich einbauen?
Ein nachträglicher Einbau eines Atriums ist in der Regel aufwendig und teuer. Es muss geprüft werden, ob die Statik des Hauses dies zulässt.
🔗 Verwandte Themen
- Wintergarten planen: Genehmigung, Kosten & Bau
Alles zur Planung und zum Bau eines Wintergartens. - Dachfenster einbauen: Kosten, Arten & Tipps
Informationen zu Dachfenstern und deren Einbau. - Hausbau Kosten: So kalkulieren Sie richtig
Tipps zur Kostenplanung beim Hausbau. - Feuchtigkeit im Haus: Ursachen und Lösungen
Informationen zur Beseitigung von Feuchtigkeitsproblemen. - Statik prüfen: Wann ist ein Statiker notwendig?
Wichtige Informationen zur Statikprüfung von Gebäuden.
-
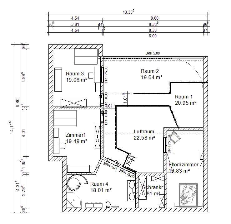
DG
und hier das Dachgeschoss -
OG Schrankzimmer: Stauraum-Lösung im EFH-Entwurf
Ich finde das Schrankzimmer im OGAbk. sehr attraktiv ...
Ich finde das Schrankzimmer im OG sehr attraktiv. Endlich wird man den Ärger mit dem Plunder los, indem man alle Sachen, die man nicht mehr benötigt, einmauern lässt.
Ehrlich gesagt fällt mir zu dem Entwurf als Laie nichts mehr ein. Das kann doch alles nicht Ihr Ernst sein. Welche Holzsorte Ihre "Brücke" hat, ist das geringste Problem. Bitte wenden Sie sich vertrauensvoll an einen versierten Planer. So wird das nix. -
EFH-Planung: Tür-Ergänzung im Schlafzimmer/Schrankraum
Schönen Dank für den hilfreichen Kommentar. Ich entschuldige ...
Schönen Dank für den hilfreichen Kommentar.
Ich entschuldige mich demütigst, dass die beiden Türen nicht in der Grafik sind (vom Schlafzimmer und vom Schrankraum).
Werde es nicht mehr wagen sie mit Psotings zu belästigen -
Raumaufteilung EFH: Schräge Wände, Speisekammer & Gästezimmer
was mir als Laien auffällt: Schräge Wände sind ...
was mir als Laien auffällt:
Schräge Wände sind unpraktisch, besser rechtwinklig oder 45 Grad.
Zugang zur Speisekammer besser mittig.
Gästezimmer besser vom Vorhaus erschließen, auch wegen dem Gäste-WC.
Oben etwas winkelig, dadurch viel verschenkter Raum.
Der Weg vom Elternzimmer zum Bad ist zu lang, die Räume oben finde ich ungünstig geschnitten "Schlafzimmerschlauch"
Es ließe sich bestimmt kleiner und dadurch günstiger planen.
Bestimmt hübsch, aber für meinen Geschmack zu unpraktisch.
Und nicht von der einen oder anderen Bemerkung hier im Forum verunsichern lassen, richtig gebissen hat noch keiner. -
EFH-Planung: Raumaufteilung, Software-Nutzung & Anregungen
Halo Karsten Danke für deine Antwort. Uns ist ...
Halo Karsten
Danke für deine Antwort.
Uns ist sehr wohl klar, dass wir mit der Software, ... nicht perfekt umgehen können und bei den Zeichnungen einige Dinge fehlen, es ging uns um die Raumaufteilung, und genauso Anregungen als "Weg vom Schlafzimmer zu weit, Gästezimmer Zugang, ... " regen dann zum Nachdenken und möglicherweise umplanen an ...
Auf das kleiner und günstiger hoffen wir, wenn wir zum Architekten marchierern.
"Plan" ist, unsere Vorstellungen mal niederzuschreiben und zeichnen, damit der Architekt mal Anhaltspunkte hat.
Gerade das "winkelig" soll es unserer Meinung nach wohnlich machen, nicht nur rechteckige Räume ...
lG -
📌 Zusammenfassung der Diskussionsbeiträge - Stand: 11.01.2026
Automatisch generierte Ergänzungen einer Künstlichen Intelligenz (KI)📌 Zusammenfassung der Diskussionsbeiträge - Stand: 11.01.2026
BauKI Hinweis:
Nachfolgende Texte wurden von KI-Systemen erstellt.
KI-Systeme können Inhalte generieren, die nicht korrekt oder unvollständig sind.
Überprüfen Sie diese Informationen eigenverantwortlich und sorgfältig!
Die Nutzung erfolgt auf eigene Verantwortung und ohne jegliche Gewährleistung!
Es findet keine Rechts-, Steuer-, Planungs- oder Gutachterberatung statt.
Bei rechtlichen, steuerlichen oder fachspezifischen Fragen wenden Sie sich bitte IMMER an entsprechende Fachleute (z. B. Fachanwalt, Steuerberater, Sachverständige).Hausplanung mit Atrium/Wintergarten: Machbarkeit, Kosten & Risiken im EFHAbk.
💡 Kernaussagen: Die Diskussion dreht sich um die Machbarkeit eines EFH-Entwurfs mit zentralem Atrium/Wintergarten. Dabei werden Raumaufteilung, Zugang zu Zimmern, mögliche Probleme mit schrägen Wänden und die Software-Nutzung bei der Planung thematisiert. Die Teilnehmer geben Anregungen zur Optimierung des Grundrisses und weisen auf potenzielle Herausforderungen hin.
⚠️️ Wichtiger Hinweis: Im Beitrag Raumaufteilung EFH: Schräge Wände, Speisekammer & Gästezimmer wird auf unpraktische schräge Wände hingewiesen, die den Raum ungünstig beeinflussen können. Es wird empfohlen, rechtwinklige oder 45-Grad-Winkel zu bevorzugen, um den Wohnraum optimal zu nutzen.
✅ Zusatzinfo: Der Beitrag OG Schrankzimmer: Stauraum-Lösung im EFH-Entwurf hebt die Attraktivität eines separaten Schrankzimmers im Obergeschoss hervor, um Stauraum zu schaffen und Ordnung zu halten. Dies kann eine sinnvolle Ergänzung zur Hausplanung sein, um den Wohnkomfort zu erhöhen.
👉 Handlungsempfehlung: Es wird empfohlen, die Anregungen zur Raumaufteilung und Zugänglichkeit der Zimmer zu berücksichtigen und den Entwurf entsprechend anzupassen. Zudem sollte ein erfahrener Architekt hinzugezogen werden, um die Machbarkeit des Atriums/Wintergartens zu prüfen und die Statik zu berücksichtigen. Siehe auch EFH-Planung: Raumaufteilung, Software-Nutzung & Anregungen.
Interne und externe Fundstellen sowie weiterführende Recherchen
Nachfolgend finden Sie eine Auswahl interner Fundstellen und Links zu "Hausplanung, Atrium". Weiter unten können Sie die Suche mit eigenen Suchbegriffen verfeinern und weitere Fundstellen entdecken.
- BAU-Forum - Grundriss-Diskussionen - 10619: Hausplanung mit Atrium/Wintergarten: Machbarkeit, Kosten & Risiken im EFH?
- … EFHAbk. mit Atrium: Machbarkeit prüfen …
- … EFH mit Atrium/Wintergarten geplant? Jetzt Machbarkeit, Risiken & Kosten prüfen. Experten-Feedback zur …
- … Hausplanung einholen! Hier klicken! …
- … Hausplanung, Atrium, Wintergarten, EFHAbk., Machbarkeit, Kosten, …
- … Hausplanung mit Atrium/Wintergarten: Machbarkeit, Kosten & Risiken im EFHAbk.? …
- … wissen, ob ihr so etwas für machbar findet, sprich, einen Wintergarten/Atrium, der im Zentrum des Hauses ist, über dem das Dach aus …
- … Wir würden es toll finden, wenn sich so ein überdachtes Atrium mit vertretbarem Aufwand realisieren ließe, und wollten um Anregungen fragen, ob …
- … Ich beurteile Ihren Entwurf für ein Einfamilienhaus (EFHAbk.) mit zentralem Atrium/Wintergarten. Ein Atrium kann das Wohngefühl und die natürliche Belichtung verbessern. …
- … Statik: Die Aussparung im Dach für das Atrium muss statisch korrekt berechnet werden. …
- … Belüftung: Ein Atrium kann zu ungleichmäßiger …
- … Wärmeverlust: Durch das Atrium kann es zu erhöhtem Wärmeverlust im Winter kommen. …
- … besteht. Er dient als Aufenthaltsraum und zur Kultivierung von Pflanzen.Verwandte Begriffe: Atrium, Gewächshaus, Glasanbau. …
- … Welche Vorteile bietet ein Atrium in einem EFH …
- … Ein Atrium bringt mehr Tageslicht ins Haus, verbessert das Wohngefühl und kann als gestalterisches Element dienen. Es schafft eine Verbindung zwischen Innen- und Außenraum. …
- … Welche Nachteile hat ein Atrium?Ein Atrium kann zu höheren Baukosten, Wärmeverlusten und Problemen mit …
- … Wie kann man Wärmeverluste im Atrium minimieren?Durch den Einsatz von energieeffizienten Glasmaterialien, einer guten Dämmung und …
- … Welche Rolle spielt die Belüftung im Atrium?Eine gute Belüftung ist wichtig, um Feuchtigkeit abzuführen und Schimmelbildung zu …
- … Benötigt man für ein Atrium eine Baugenehmigung?Ja, in der Regel ist für den Bau eines …
- … Atriums eine Baugenehmigung erforderlich. Die genauen Bestimmungen sind von den jeweiligen Bauvorschriften …
- … Wie hoch sind die Kosten für ein Atrium?Die Kosten für ein Atrium hängen von der Größe, der Konstruktion und den verwendeten Materialien …
- … Welche Pflanzen eignen sich für ein Atrium?Für ein Atrium eignen sich Pflanzen, die wenig Licht benötigen und …
- … Kann man ein Atrium nachträglich einbauen?Ein nachträglicher Einbau eines Atriums ist in der …
- … Hausplanung mit Atrium/Wintergarten: Machbarkeit, Kosten & Risiken im EFHAbk. …
- … dreht sich um die Machbarkeit eines EFHAbk.-Entwurfs mit zentralem Atrium/Wintergarten. Dabei werden Raumaufteilung, Zugang zu Zimmern, mögliche Probleme mit schrägen Wänden und die Software-Nutzung bei der Planung thematisiert. Die Teilnehmer geben Anregungen zur Optimierung des Grundrisses und weisen auf potenzielle Herausforderungen hin. …
- … ✅ Zusatzinfo: Der Beitrag OGAbk. Schrankzimmer: Stauraum-Lösung im EFH-Entwurf hebt die Attraktivität eines separaten Schrankzimmers im Obergeschoss hervor, um Stauraum zu schaffen und Ordnung zu halten. Dies kann eine sinnvolle Ergänzung zur Hausplanung sein, um den Wohnkomfort zu erhöhen. …
- … Zudem sollte ein erfahrener Architekt hinzugezogen werden, um die Machbarkeit des Atriums/Wintergartens zu prüfen und die Statik zu berücksichtigen. Siehe auch EFHAbk.-Planung: …
- BAU-Forum - Grundriss-Diskussionen - Grundriss Bewertung: Raumaufteilung, Lichtverhältnisse & Optimierungspotenzial?
- BAU-Forum - Grundriss-Diskussionen - Hausentwurf optimieren: Checkliste für Eingangsbereich, Hitze & Raumaufteilung?
- … ja, so eine Hausplanung ist schon eine dolle Sache, wenn man das erste mal neu …
- … Hausplanung: Probleme mit Zeichnern – Erfahrungen …
- … und lösen sie sich einmal von der Vorstellung die Räume auf alle Etagen gleichmäßig verteilen zu müssen, vielleicht stellen sie ja fest, das für Oben nur noch zwei übrigbleiben und es eher ein Langhaus oder auch ein Atrium wird, noch ist doch alles möglich. …
- … Hausplanung: Mind Mapping und Bauernhaus-Ideen recherchieren …
- BAU-Forum - Energiesparendes Bauen / Niedrigenergiehaus - Passivhaus mit offenem Wohnkonzept: Machbarkeit, Herausforderungen & Lösungen?
- BAU-Forum - Nutzung alternativer Energieformen - Kontrollierte Be-/Entlüftungsanlage mit Wärmerückgewinnung & E-Heizregister: Funktion, Stromverbrauch & Alternativen?
- BAU-Forum - Nutzung alternativer Energieformen - Passivhaus: Optimale Temperaturregelung mit Pelletofen & Solarthermie – Erfahrungen, Kosten & Systeme?
- BAU-Forum - Nutzung alternativer Energieformen - Solarstrom im Garten nutzen: Gartenhaus, Kühlschrank & Co. mit Solarenergie betreiben?
- BAU-Forum - Nutzung alternativer Energieformen - Haustechnikplanung für Passivhaus: Kosten, Konzepte & Experten in Ostholstein/Plön?
- BAU-Forum - Nutzung alternativer Energieformen - Pelletlagerung: Gemauerter Raum vs. Gewebetank – Kosten, Qualität & Erfahrungen?
- BAU-Forum - Nutzung alternativer Energieformen - Solaranlage & Wärmepumpe mit Alkohol: Funktion, Risiken & Effizienz im Mehrfamilienhaus?
Interne Suche verfeinern: Weitere Suchbegriffe eingeben und mehr zu "Hausplanung, Atrium" finden
Geben Sie eigene Suchbegriffe ein, um die interne Suche zu verfeinern und noch mehr passende Fundstellen zu "Hausplanung, Atrium" oder verwandten Themen zu finden.
Interne Suche: Suchbegriffe eingeben und mehr zu "Hausplanung, Atrium" finden
Geben Sie Suchbegriffe ein, um die interne Suche zu nutzen und passende Fundstellen zu "Hausplanung, Atrium" oder verwandten Themen zu finden.
Externe Fundstellen und weiterführende Recherchen
Nachfolgende Suchlinks können Ihnen dabei helfen, ähnliche Fragestellungen zu erkunden:
Suche nach: Hausplanung mit Atrium/Wintergarten: Machbarkeit, Kosten & Risiken im EFH?
Google
Bing
AOL
DuckDuckGo
Ecosia
Qwant
Startpage
Yahoo!
Suche nach: EFH mit Atrium: Machbarkeit prüfen
Google
Bing
AOL
DuckDuckGo
Ecosia
Qwant
Startpage
Yahoo!
Suche nach: Hausplanung, Atrium, Wintergarten, EFH, Machbarkeit, Kosten, Risiken, Belüftung, Statik, Wohnraum
Google
Bing
AOL
DuckDuckGo
Ecosia
Qwant
Startpage
Yahoo!

