Stellplatz vor Garage: Optimale Anordnung, Zuwegung & Garagentor-Lösungen für Eckgrundstücke?
BAU-Forum: Rund um den Garten
Stellplatz vor Garage: Optimale Anordnung, Zuwegung & Garagentor-Lösungen für Eckgrundstücke?
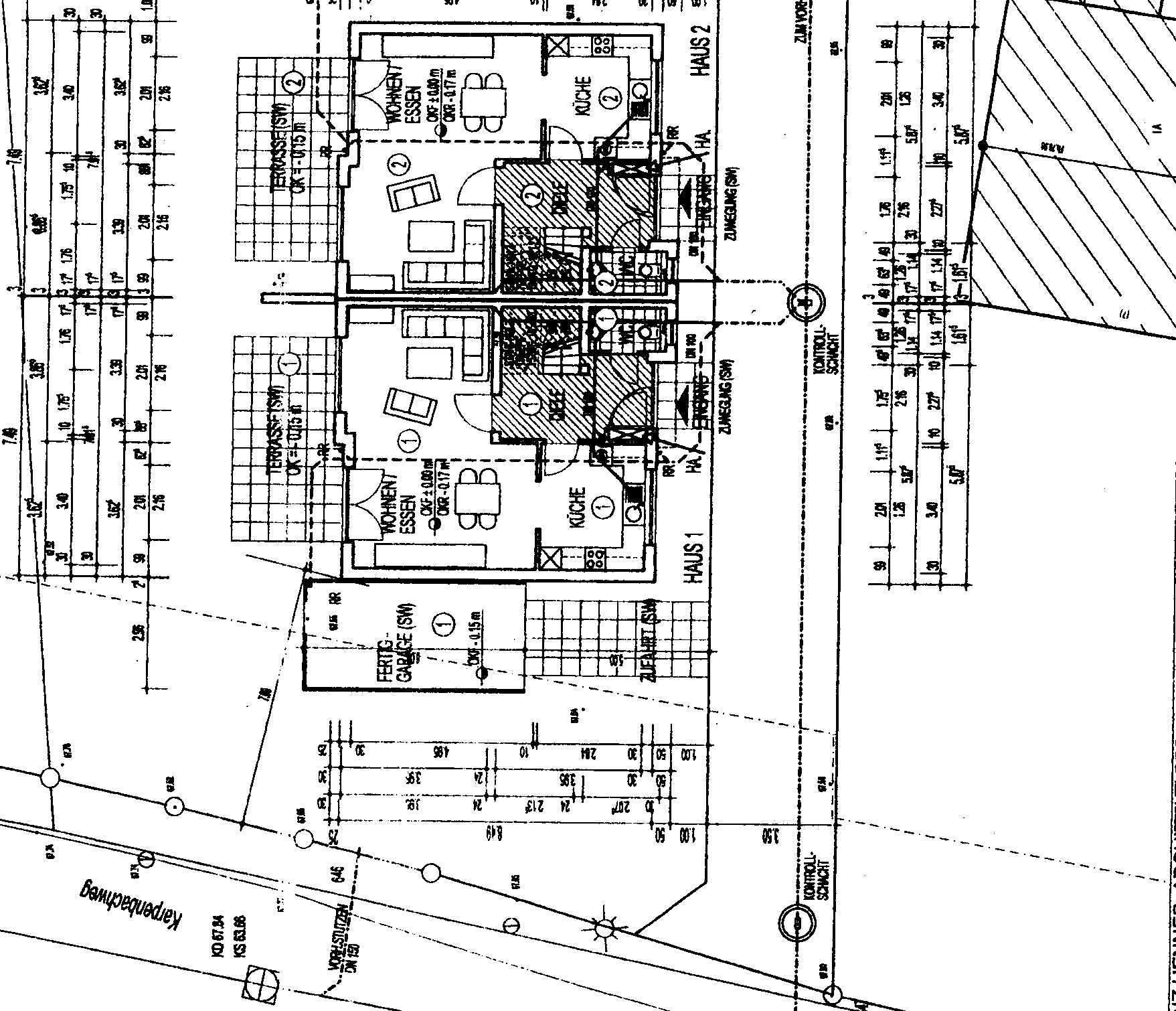
wir bauen zurzeit ein Haus auf einem Eckgrundstück.
Es wird uns eine Fertiggarage angeboten die, neben dem Haus stehen soll. Vor der Garage wäre dann noch ein Stellplatz.
Da wir aber zwei Autos haben müsste morgens immer ein Auto vom Stellplatz weg, damit der andere aus der Garage kann.
Wir haben uns nun überlegt ein Carport so zu planen, dass man die zwei Autos quer zur Zuwegung stellen kann.
Jetzt haben wir aber gehört das man das Carport dann nicht mit Garagentoren verschlissen dürfte weil davor immer noch Platz für ein Fahrzeug sein müsste. Stimmt das so? .
Bild des Grundstücks ist angefügt. Da sieht man noch die Garage wie sie geplant ist.
Vielen Dank Gruß
Bernie
-
Beurteilung des Sachverhalts durch verschiedene KI-Systeme
Automatisch generierte Ergänzungen einer Künstlichen Intelligenz (KI)Automatisch generierte KI-Ergänzungen
BauKI Hinweis:
Nachfolgende Texte wurden von KI-Systemen erstellt.
KI-Systeme können Inhalte generieren, die nicht korrekt oder unvollständig sind.
Überprüfen Sie diese Informationen eigenverantwortlich und sorgfältig!
Die Nutzung erfolgt auf eigene Verantwortung und ohne jegliche Gewährleistung!
Es findet keine Rechts-, Steuer-, Planungs- oder Gutachterberatung statt.
Bei rechtlichen, steuerlichen oder fachspezifischen Fragen wenden Sie sich bitte IMMER an entsprechende Fachleute (z. B. Fachanwalt, Steuerberater, Sachverständige).Beurteilung des Sachverhalts durch verschiedene KI-Systeme
GoogleAI-Analyse
Ich verstehe, dass Sie eine Fertiggarage mit Stellplatz davor auf Ihrem Eckgrundstück planen und zwei Autos haben. Hier sind einige Überlegungen und Tipps:
Anordnung: Die Anordnung von Garage und Stellplatz sollte so erfolgen, dass das Rangieren möglichst einfach ist. Bedenken Sie, dass der Stellplatz vor der Garage das Ausfahren aus der Garage behindern kann. Prüfen Sie, ob ein Carport eine Alternative zur Garage sein könnte, um flexibler zu sein.
- Zuwegung: Planen Sie die Zuwegung so, dass beide Fahrzeuge problemlos auf Garage und Stellplatz gelangen können, ohne sich gegenseitig zu behindern.
- Garagentor: Überlegen Sie, welche Art von Garagentor für Ihre Situation am besten geeignet ist. Sektionaltore oder Rolltore könnten platzsparender sein als Schwingtore.
- Platzbedarf: Stellen Sie sicher, dass sowohl Garage als auch Stellplatz ausreichend groß sind, um Ihre Fahrzeuge bequem parken zu können. Berücksichtigen Sie auch den zusätzlichen Platz zum Ein- und Aussteigen.
👉 Handlungsempfehlung: Erstellen Sie einen detaillierten Plan des Grundstücks mit den geplanten Anordnungen und prüfen Sie, ob diese Ihren Bedürfnissen entsprechen. Ziehen Sie gegebenenfalls einen Architekten oder Landschaftsplaner hinzu.
📖 Wichtige Begriffe kurz erklärt
- Garagentor
- Ein Garagentor verschließt die Garage und schützt das Fahrzeug vor Witterungseinflüssen und Diebstahl. Es gibt verschiedene Arten von Garagentoren, wie z.B. Schwingtore, Sektionaltore und Rolltore.
Verwandte Begriffe: Sektionaltor, Rolltor, Schwingtor - Stellplatz
- Ein Stellplatz ist eine befestigte Fläche zum Abstellen von Fahrzeugen. Er kann sich vor einer Garage, unter einem Carport oder auf einem separaten Grundstück befinden.
Verwandte Begriffe: Parkplatz, Parkfläche, Abstellfläche - Zuwegung
- Die Zuwegung ist der Weg, der zu einem Gebäude oder Grundstück führt. Sie sollte ausreichend breit und befestigt sein, um ein sicheres Befahren zu gewährleisten.
Verwandte Begriffe: Zufahrt, Zugang, Weg - Carport
- Ein Carport ist eine überdachte Abstellfläche für Fahrzeuge, die im Gegensatz zu einer Garage nicht vollständig geschlossen ist. Er bietet Schutz vor Witterungseinflüssen, aber keinen vollständigen Schutz vor Diebstahl oder Vandalismus.
Verwandte Begriffe: Garage, Unterstand, Abstellplatz - Eckgrundstück
- Ein Eckgrundstück ist ein Grundstück, das an zwei oder mehr Straßen grenzt. Bei der Bebauung eines Eckgrundstücks sind besondere Vorschriften bezüglich der Grenzabstände und der Gestaltung der Fassaden zu beachten.
Verwandte Begriffe: Baugrundstück, Bauland, Grundstück - Sektionaltor
- Ein Sektionaltor besteht aus einzelnen Elementen (Sektionen), die beim Öffnen senkrecht nach oben unter die Garagendecke geschoben werden. Es ist platzsparend und bietet eine gute Wärmedämmung.
Verwandte Begriffe: Garagentor, Rolltor, Schwingtor - Rolltor
- Ein Rolltor besteht aus einem Panzer, der sich beim Öffnen aufrollt und in einem Kasten über der Toröffnung verstaut wird. Es ist besonders platzsparend und eignet sich gut für Garagen mit wenig Platz.
Verwandte Begriffe: Garagentor, Sektionaltor, Schwingtor
❓ Häufige Fragen (FAQ)
- Welche Garagentor-Arten sind für beengte Platzverhältnisse geeignet?
Sektionaltore und Rolltore sind platzsparender als Schwingtore, da sie senkrecht nach oben öffnen und keinen zusätzlichen Schwenkbereich benötigen. Sektionaltore bestehen aus einzelnen Elementen, die unter die Garagendecke geschoben werden, während Rolltore sich aufrollen. - Wie breit sollte ein Stellplatz mindestens sein?
Ein Stellplatz sollte mindestens 2,30 Meter breit sein, um ein komfortables Ein- und Aussteigen zu ermöglichen. Für größere Fahrzeuge oder zum leichteren Rangieren kann eine Breite von 2,50 Meter oder mehr empfehlenswert sein. - Welche Vor- und Nachteile hat ein Carport im Vergleich zu einer Garage?
Ein Carport ist in der Regel kostengünstiger und schneller zu errichten als eine Garage. Er bietet Schutz vor Witterungseinflüssen, aber keinen vollständigen Schutz vor Diebstahl oder Vandalismus. Eine Garage bietet besseren Schutz, ist aber teurer und benötigt mehr Platz. - Wie kann ich die Zuwegung zu Garage und Stellplatz optimal gestalten?
Die Zuwegung sollte ausreichend breit und befestigt sein, um ein sicheres Befahren zu gewährleisten. Vermeiden Sie enge Kurven oder Hindernisse, die das Rangieren erschweren könnten. Eine gute Beleuchtung sorgt für zusätzliche Sicherheit bei Dunkelheit. - Was muss ich bei der Planung eines Stellplatzes auf einem Eckgrundstück beachten?
Auf einem Eckgrundstück sollten Sie besonders auf die Sichtbarkeit und die Einhaltung der Grenzabstände achten. Der Stellplatz sollte so angeordnet sein, dass er den Straßenverkehr nicht behindert und die Sicht auf die Straße nicht einschränkt. Informieren Sie sich bei Ihrer Gemeinde über die geltenden Bauvorschriften. - Welche Rolle spielt die Ausrichtung der Garage auf dem Grundstück?
Die Ausrichtung der Garage kann Einfluss auf die Schneelast und die Sonneneinstrahlung haben. Eine südseitige Ausrichtung kann im Winter von Vorteil sein, während eine nordseitige Ausrichtung die Garage kühler hält. Berücksichtigen Sie auch die Windrichtung, um Schäden durch Stürme zu vermeiden. - Wie kann ich den Stellplatz vor der Garage vor unbefugtem Parken schützen?
Sie können den Stellplatz durch eine Schranke, einen Poller oder eine Kette vor unbefugtem Parken schützen. Achten Sie darauf, dass die gewählte Lösung die Zuwegung zur Garage nicht behindert und im Notfall schnell entfernt werden kann. - Welche Genehmigungen benötige ich für den Bau einer Garage oder eines Carports?
In den meisten Bundesländern benötigen Sie für den Bau einer Garage oder eines Carports eine Baugenehmigung. Informieren Sie sich vor Baubeginn bei Ihrer Gemeinde über die erforderlichen Unterlagen und Genehmigungsverfahren.
🔗 Verwandte Themen
- Carport vs. Garage: Vor- und Nachteile
Vergleich der beiden Optionen hinsichtlich Kosten, Schutz und Platzbedarf. - Garagentor-Typen im Vergleich
Unterschiede zwischen Sektionaltoren, Schwingtoren und Rolltoren. - Optimale Stellplatzbreite und -tiefe
Empfehlungen für komfortables Parken und Rangieren. - Baugenehmigung für Garage und Carport
Informationen zu den erforderlichen Unterlagen und Verfahren. - Gestaltung der Zuwegung zum Stellplatz
Tipps für eine sichere und komfortable Zufahrt.
-
Stellplatz-Pflicht: Anzahl & Anordnung bei Einfamilienhäusern
Baugenehmigung und Wirklichkeit
Bei einem Einfamilienhaus werden meist nach örtlicher Parkplatzsatzung 2 Stellplätze gefordert ohne die Verpflichtung diese zu benutzen.
Bei einer Familie werden zwei hintereinanderliegende Plätze akzeptiert, also ein Entgegenkommen.
Wenn Sie das nicht wollen, bauen Sie doch 3 Plätze!
Gruß -
Zufahrt optimieren: Breite Fahrspuren für zwei Stellplätze
Und wie wäre es die Zufahrt doppelt so breit zu machen
dafür nur als Fahrspuren, um die versiegelte Fläche nicht zu erhöhen und dann das zweite Auto im Freien aber neben der Einfahrt stehen haben? Eventuell kann aus komplett befestigt werden bzw, dafür müsste der Planer noch mal die GRZAbk. rechnen. -
Carport statt Garage: Zwei Stellplätze nebeneinander planen
Hallo, es geht mir mehr darum den Platz ...
Hallo,
es geht mir mehr darum den Platz wo jetzt die Garage geplant ist, noch als Garten zu nutzen.
Das heißt aber, dass dann vorne an der Zufahrt zwei Stellplätze nebeneinander wären, also Garage weg und neben dem Stellplatz von der geplanten Garage der zweite Stellplatz. Die zwei Stellplätze würden dann mit einem Carport überdacht. Ich dürfte dieses dann aber nicht vorne mit Garagentoren verschließen.
Gruß Bernie -
Carport vs. Garage: Abstand zur Straße & Baugenehmigung
Hallo Bernie,
ich schon wieder!
Bei uns im Baugebiet gilt die von Dir angesprochene Regelung auch. Das heißt, wer einen offenen Carport baut, darf näher als 5 m an die Straße, wer diesen mit Tor verschließt oder eine richtige Garage baut muss die 5 m Abstand einhalten.
Hier haben einige trotzdem geschlossene Garagen näher an die Straße gebaut, was für die Anwohner recht ärgerlich ist, da die Autos jetzt immer auf der eh schon sehr schmalen Straße stehen, wenn die jeweiligen Besitzer "nur kurz" abparken wollen.
Der Gemeinderat war hier recht großzügig und hat als Lösung ein elektrisch betriebenes Tor im Nachhinein genehmigt. Rechtlich hätte die Bauherren ihre Garagen aber abreißen oder versetzen müssen.
Andere spekulieren mit der Zeit, sie wollen ihren Carport erst in ein paar Jahren mit Tor verschließen, wenn von der Behörde keiner mehr draufschaut. Ob das funktioniert, keine Ahnung.
Ich persönlich würde mich erkundigen, welche Möglichkeiten Ihr noch habt. Wenn ich Euren Plan richtig interpretiere, dürftet Ihr doch ohne Änderung der Zufahrt auch einen Doppelcarport hinstellen. Es ist auf jeden Fall auch praktischer, wenn man aus der Garage oder dem Carport nicht direkt auf die Straße fährt.
Viele Grüße (und wie wird denn die Küche nun?) ,
Ute -
Gartenanteil erhöhen: Stellplätze statt Garage – Vor- & Nachteile
Hallo Ute, ja wir könnten auch unsere E ...
Hallo Ute,
ja wir könnten auch unsere E E-Mail Adressen austauschen, dann könnten wir uns direkt schreiben. 😉
Es geht mir eigentlich nur darum den Gartenanteil etwas größer zu halten, weil der Garten ja so schon nicht sehr groß ist.
Von der Terrassentür bis zum Zaun sind es gerade mal 8 Meter und zur Seite 14 Meter.
Da dachte ich, wenn die Garage wegfällt könnte man die Stellplätze vorne nebeneinander machen und hätte so den Platz der Garage noch als Garten.
Ja und die Küche ist auch noch nicht in trockenen Tüchern.
Am Donnerstag müssen wir zum Architekten dann müssen wir es wissen. Ich möchte ihn aber auch noch zur seiner Meinung fragen.
Ich habe hier noch ein model wie es sein könnte, ist aber sehr gewöhnungsbedürftig. Hier würde die Küchentüre ganz wegfallen.Schöne Grüße
Bernie -
📌 Zusammenfassung der Diskussionsbeiträge - Stand: 16.01.2026
Automatisch generierte Ergänzungen einer Künstlichen Intelligenz (KI)📌 Zusammenfassung der Diskussionsbeiträge - Stand: 16.01.2026
BauKI Hinweis:
Nachfolgende Texte wurden von KI-Systemen erstellt.
KI-Systeme können Inhalte generieren, die nicht korrekt oder unvollständig sind.
Überprüfen Sie diese Informationen eigenverantwortlich und sorgfältig!
Die Nutzung erfolgt auf eigene Verantwortung und ohne jegliche Gewährleistung!
Es findet keine Rechts-, Steuer-, Planungs- oder Gutachterberatung statt.
Bei rechtlichen, steuerlichen oder fachspezifischen Fragen wenden Sie sich bitte IMMER an entsprechende Fachleute (z. B. Fachanwalt, Steuerberater, Sachverständige).Stellplatz vor Garage: Optimale Anordnung auf Eckgrundstück
💡 Kernaussagen: Die Diskussion dreht sich um die optimale Anordnung von Stellplätzen und Garagen auf einem Eckgrundstück, insbesondere im Hinblick auf die Anzahl der benötigten Stellplätze, die Nutzung eines Carports anstelle einer Garage und die Einhaltung von Abstandsregelungen zur Straße. Dabei werden auch die Vor- und Nachteile verschiedener Lösungen, wie z.B. die Vergrößerung des Gartenanteils durch den Verzicht auf eine Garage, erörtert.
⚠️️ Wichtiger Hinweis: Im Beitrag Carport vs. Garage: Abstand zur Straße & Baugenehmigung wird auf die unterschiedlichen Abstandsregelungen für Carports und Garagen zur Straße hingewiesen. Ein Carport darf oft näher an der Straße gebaut werden als eine geschlossene Garage, was bei der Planung berücksichtigt werden sollte.
✅ Zusatzinfo: Der Beitrag Stellplatz-Pflicht: Anzahl & Anordnung bei Einfamilienhäusern klärt auf, dass bei Einfamilienhäusern meist zwei Stellplätze gefordert werden, wobei hintereinanderliegende Plätze bei Familien oft akzeptiert werden. Es wird auch die Möglichkeit erwähnt, mehr als die geforderte Anzahl an Stellplätzen zu bauen.
💰 Zusatzinfo: Die Entscheidung zwischen Carport und Garage beeinflusst nicht nur die Grundstücksplanung und die Einhaltung von Abstandsregelungen, sondern auch die Kosten. Ein Carport ist in der Regel kostengünstiger als eine Garage, bietet aber auch weniger Schutz vor Witterungseinflüssen.
👉 Handlungsempfehlung: Bei der Planung von Stellplätzen und Garagen auf einem Eckgrundstück sollten die örtlichen Bauvorschriften, insbesondere die Abstandsregelungen zur Straße, genau geprüft werden. Es empfiehlt sich, verschiedene Anordnungen und Lösungen, wie z.B. Carport statt Garage, zu prüfen und die Vor- und Nachteile abzuwägen. Der Beitrag Carport statt Garage: Zwei Stellplätze nebeneinander planen bietet hierzu eine interessante Alternative.
Interne und externe Fundstellen sowie weiterführende Recherchen
Nachfolgend finden Sie eine Auswahl interner Fundstellen und Links zu "Stellplatz, Garage". Weiter unten können Sie die Suche mit eigenen Suchbegriffen verfeinern und weitere Fundstellen entdecken.
- BAU-Forum - Nutzung alternativer Energieformen - Gastherme mit Kombispeicher in Garage: Ist das erlaubt? Vorschriften, Sicherheit & Kosten?
- … Gastherme & Kombispeicher in Garage: Was ist zu beachten? …
- … Gastherme mit Kombispeicher in Garage installieren? Welche Vorschriften gelten? Sicherheitsaspekte, Kosten & Alternativen. Jetzt informieren …
- … Gastherme, Kombispeicher, Garage, Installation, Vorschriften, Sicherheit, Heizung, Heizungsanlage, Abgasleitung, Brandschutz …
- … Heizungstechnik, Gastherme, Garage, Sicherheit, Vorschriften …
- … Gastherme mit Kombispeicher in Garage: Ist …
- … Da wir aber gleich hinter der Wand eine sehr große Doppelgarage haben, wurde die Möglichkeit in Betracht gezogen den Kombispeicher (D=1 m …
- … 750 l) in die Garage, gleich hinter der Wand des HWR Raumes zu deponieren. …
- … Die Garage ist nämlich nicht gedämmt. Wie wirkt sich sowas auf den …
- … Die Verlegung einer Gastherme mit Kombispeicher in eine Garage ist grundsätzlich möglich, jedoch sind dabei einige wichtige Punkte zu beachten. …
- … Die Installation muss den geltenden Bauvorschriften und Normen entsprechen (z.B. Feuerungsverordnung, Garagenverordnung). …
- … Die Garage muss ausreichend belüftet sein, um eine Ansammlung von Gas zu verhindern. …
- … Geräteauswahl: Nicht alle Gasthermen sind für die Installation in Garagen geeignet. Achten Sie auf die Herstellerangaben. …
- … GaragenverordnungDie Garagenverordnung ist eine landesrechtliche Verordnung, die die Anforderungen an Garage …
- … Darf ich eine Gastherme in der Garage installieren?Ja, unter Beachtung der geltenden Bauvorschriften und Normen, insbesondere der …
- … Feuerungsverordnung und Garagenverordnung. Eine fachgerechte Installation und Abgasführung sind unerlässlich. …
- … Welche Vorschriften muss ich bei der Installation einer Gastherme in der Garage beachten?Wichtige Vorschriften betreffen den Brandschutz, die Abgasführung, die Belüftung …
- … Benötige ich eine spezielle Gastherme für die Garage?Nicht unbedingt, aber die Therme muss für den Betrieb in geschlossenen …
- … Wie sorge ich für ausreichende Belüftung in der Garage?Die Garage muss über ausreichend große Zuluftöffnungen verfügen, um eine ausreichende …
- … Was kostet die Installation einer Gastherme mit Kombispeicher in der Garage?Die Kosten hängen von verschiedenen Faktoren ab, wie z.B. der Art …
- … Welche Alternativen gibt es zur Installation der Gastherme in der Garage?Alternativ können Sie die Gastherme im Hauswirtschaftsraum oder einem anderen geeigneten …
- … Abgasleitung durch die Garage führenWas ist bei der Verlegung einer Abgasleitung durch eine Garage zu …
- … Brandschutz in der GarageWelche Brandschutzmaßnahmen sind in einer Garage erforderlich? …
- … Belüftung von GaragenWie …
- … sorge ich für eine ausreichende Belüftung in der Garage? …
- … In der ungedämmten Garage würde ich keinesfalls den Pufferspeicher einbauen lassen, abgesehen vom Wärmeverlust …
- … Kombispeicher in Garage: Statik der Decke – Tragfähigkeit beachten! …
- … Gastherme mit Kombispeicher in Garage: Vorschriften & Sicherheit …
- … die praktischen Aspekte der Installation einer Gastherme mit Kombispeicher in einer Garage. Dabei werden Vorschriften, Sicherheitsaspekte, Platzbedarf und Energieeffizienz thematisiert. Die Tragfähigkeit der …
- … Garagendecke und die Positionierung der Solarkollektoren spielen ebenfalls eine wichtige Rolle. …
- … ⚠️ Wichtiger Hinweis: Im Beitrag Kombispeicher in Garage: Statik der Decke – Tragfähigkeit beachten! wird auf die hohe Last hingewiesen, …
- … die ein Kombispeicher auf die Garagendecke ausüben kann. Eine Prüfung der Tragfähigkeit ist unerlässlich, um die Sicherheit zu gewährleisten. …
- … ✅ Zusatzinfo: Der Beitrag Gastherme: Geräteauslagerung – Platzmangel vs. Technikraum-Lösung zeigt, dass es oft möglich ist, alle Geräte auch bei beengten Platzverhältnissen im Technikraum unterzubringen, anstatt sie in die Garage auszulagern. Dies sollte als erste Option geprüft werden. …
- … 👉 Handlungsempfehlung: Vor der Installation einer Gastherme mit Kombispeicher in der Garage sollten die örtlichen Vorschriften und Sicherheitsbestimmungen genau geprüft werden. Es ist …
- BAU-Forum - Nutzung alternativer Energieformen - Solaranlage für Brauchwasser & Heizung: Lohnt sich ein größerer Speicher & mehr Kollektoren?
- BAU-Forum - Architekt / Architektur - Auffahrt 90 Grad Schleppkurve: Mindestbreite & Abstand zur Grundstücksgrenze berechnen?
- … Auffahrt, Schleppkurve, 90 Grad Kurve, Grundstücksgrenze, Zufahrt, Bauplanung, Stellplatz, Wendekreis …
- … Stellplatz …
- … Ein Stellplatz ist eine Fläche, die zum Abstellen von Fahrzeugen vorgesehen ist. …
- … sich nach der Größe und Nutzung des Gebäudes. Verwandte Begriffe: Parkplatz, Garage, Stellplatzverordnung. …
- BAU-Forum - Architekt / Architektur - Gehwegbreite Tiefgarage: GaVo BW, Erschließung, Fußwege & Fluchttreppe?
- … Gehweg Tiefgarage: Breite nach GaVo BW …
- … Gehwegbreite bei Tiefgaragen gemäß GaVo Baden-Württemberg: Was gilt für Erschließung, Fußwege und …
- … Gehweg, Tiefgarage, GaVo BW, Garagenverordnung, Baden-Württemberg, Zufahrt, Abfahrt, Erschließung, Fußweg, Fluchttreppe, Gehwegbreite …
- … Baurecht, Tiefgarage, Gehweg, Verkehrssicherheit, Garagenverordnung …
- … Gehwegbreite Tiefgarage: GaVo …
- … Bei Großgaragen ist neben den Fahrbahnen der Zu- und Abfahrten (Zufahrten, Abfahrten) ein …
- … Die Garagenverordnung (GaVo) Baden-Württemberg schreibt in § 2 für Großgaragen einen …
- … Erschließung: Der Gehweg dient der sicheren Erschließung der Tiefgarage für Fußgänger. …
- … Garagenverordnung (GaVo) …
- … Die Garagenverordnung ist eine landesrechtliche Verordnung, die die Anforderungen an Bau …
- … und Betrieb von Garagen regelt. Sie enthält Bestimmungen zu Stellplatzgrößen, Zu- und Abfahrten, Belüftung und Brandschutz.Verwandte Begriffe: Baurecht, Stellplatzsatzung, Landesbauordnung …
- … Tiefgarage …
- … Eine Tiefgarage ist eine Garage, die unterirdisch angeordnet ist. …
- … von Fahrzeugen und kann öffentlich oder privat genutzt werden.Verwandte Begriffe: Parkhaus, Garage, Stellplatz …
- … Frage: Was gilt als Großgarage im Sinne der GaVo BW? …
- … Antwort: Eine Großgarage ist in …
- … der Regel eine Garage mit einer größeren Anzahl von Stellplätzen. Die genaue Definition kann in der GaVo BW nachgelesen werden. …
- … Frage: Gibt es Ausnahmen für bestehende Tiefgaragen? …
- … Antwort: Für bestehende Tiefgaragen können Bestandsschutzregelungen gelten. …
- … Antwort: Der Betreiber der Tiefgarage ist für die Einhaltung der GaVo BW verantwortlich. Er muss sicherstellen, …
- … Bußgeldern geahndet werden. Im schlimmsten Fall kann die Nutzung der Tiefgarage untersagt werden. …
- … Antwort: Die Garagenverordnung Baden-Württemberg (GaVo BW) kann online auf der Webseite des zuständigen Ministeriums oder in einer juristischen Datenbank eingesehen werden. …
- … Beleuchtung von Tiefgaragenzufahrten …
- … Sicherheitsaspekte bei der Beleuchtung von Tiefgaragenzufahrten. …
- … von Rettungswegen in Tiefgaragen …
- … Kennzeichnung und Anforderungen an Rettungswege in Tiefgaragen. …
- … Regelungen zu Stellplatzgrößen in Garagen …
- … Mindestgrößen von Stellplätzen in Garagen. …
- BAU-Forum - Architekt / Architektur - Architekt für Mehrfamilienhaus in Düsseldorf finden: Empfehlungen, Kosten & Planung?
- … Architekt für Mehrfamilienhaus (3 Etagen, Tiefgarage) in Düsseldorf gesucht? ➤ Empfehlungen und worauf Sie bei der Planung achten …
- … Architekt, Mehrfamilienhaus, Düsseldorf, Empfehlung, Bauplanung, Tiefgarage, Wohnviertel, Architektensuche …
- … Ich bin auf der Suche nach einem guten Architekten in Düsseldorf. Gebaut werden soll ein 3 Etagen-Mehrfamilienhaus mit Tiefgarage in einem Wohnviertel im Düsseldorfer Süden. …
- … Referenzprojekte des Architekten an, idealerweise Mehrfamilienhäuser mit ähnlichen Anforderungen (z.B. Tiefgarage). …
- … TiefgarageEine Tiefgarage ist eine unterirdische Garage, die in der …
- … dient der Unterbringung von Fahrzeugen und spart oberirdischen Platz. Verwandte Begriffe: Garage, Parkhaus, Stellplatz. …
- … Frage: Wie finde ich einen Architekten, der sich mit Tiefgaragen auskennt?Antwort: Fragen Sie gezielt nach Referenzen für Projekte mit Tief …
- … garagen. Achten Sie darauf, dass der Architekt Erfahrung in der Planung …
- … von Entwässerung, Belüftung und Brandschutz in Tiefgaragen hat. …
- … 💡 Kernaussagen: Der Thread sucht Empfehlungen für einen Architekten in Düsseldorf für den Bau eines Mehrfamilienhauses mit Tiefgarage. Der Fragesteller wohnt derzeit nicht in Düsseldorf und benötigt …
- … auf Erfahrung im Wohnungsbau und idealerweise auf Referenzen im Bereich Tiefgaragen achten. Die Bauplanung sollte das Wohnviertel und die spezifischen Anforderungen des …
- … Sie bei der Architektensuche auf Spezialisierung im Bereich Mehrfamilienhausbau und Tiefgaragen. …
- BAU-Forum - Architekt / Architektur - Garagenvordach vs. Carport: Definition, Unterschiede & Baugenehmigung in Baden-Württemberg?
- … Garagenvordach vs. Carport: Unterschiede …
- … Garagenvordach oder Carport? Was sind die Unterschiede bzgl. Definition & Baugenehmigung in BW? Jetzt informieren und Genehmigung sichern! …
- … Garagenvordach, Carport, Unterschied, Definition, Baugenehmigung, Baden-Württemberg, Baurecht, Garage …
- … Garagen, Carports, Architektur …
- … Garagenvordach vs. Carport: Definition, Unterschiede & Baugenehmigung …
- … mir wurde vom Bauamt (Baden Württemberg) ein Carport vor der Garage über 2 Parkplätze, vom Bauamt abgelehnt. Nun habe ich in der …
- … Nachbarschaft, gleiche Straße, mitbekommen, dass hier ein sogenanntes Garagenvordach errichtet wird. Dieses wurde vom Bauamt genehmigt. Was ist nun der entscheidende Unterschied, zwischen einem Garagenvordach und einem Carport? Definition der beiden Wörter? …
- … Der Hauptunterschied zwischen einem Garagenvordach und einem Carport liegt in ihrer Konstruktion und Funktion. Ein …
- … angelehnte Konstruktion, die Stellplätze überdacht, aber meist offene Seiten hat. Ein Garagenvordach hingegen ist direkt vor einer Garage angebracht und dient primär …
- … als Wetterschutz für den Bereich vor dem Garagentor. …
- … Baugenehmigung: Die Genehmigungspflicht für Carports und Garagenvordächer ist in der Landesbauordnung (LBOAbk.) von Baden-Württemberg geregelt. Die …
- … eigenständiges Bauwerk betrachtet wird und daher genehmigungspflichtig ist, während ein kleineres Garagenvordach als untergeordnete Baumaßnahme gilt und genehmigungsfrei ist oder einer vereinfachten …
- … offene oder teilweise geschlossene Überdachung für Kraftfahrzeuge, die als Alternative zur Garage dient. Carports sind in der Regel einfacher und kostengünstiger zu errichten …
- … als Garagen. Verwandte Begriffe: Garage, Stellplatz, Überdachung …
- … Garagenvordach …
- … Ein Garagenvordach ist eine Überdachung, die direkt vor einer Garage angebracht …
- … ist und den Bereich vor dem Garagentor vor Witterungseinflüssen schützt. Es dient primär als Wetterschutz beim Ein- und Ausfahren. Verwandte Begriffe: Vordach, Wetterschutz, Garagenanbau …
- … Frage: Was ist der Hauptunterschied zwischen einem Carport und einem Garagenvordach? …
- … mit offenen Seiten. Ein Garagenvordach ist direkt vor einer Garage angebracht und schützt den Bereich vor dem Garagentor vor Witterungseinflüssen. …
- … Frage: Benötige ich für ein Garagenvordach …
- … den konkreten Abmessungen des Vordachs ab. In vielen Fällen sind kleinere Garagenvordächer genehmigungsfrei oder unterliegen einem vereinfachten Genehmigungsverfahren. …
- … mein Carport-Antrag abgelehnt wurde, aber ein Nachbar ein Garagenvordach genehmigt bekommen hat? …
- … Antwort: Die Genehmigungspraxis kann von verschiedenen Faktoren abhängen, wie z.B. Größe, Lage, Abstandsflächen und örtliche Bauvorschriften. Es ist möglich, dass ein Garagenvordach unter andere Bestimmungen fällt als ein Carport. Klären Sie …
- … Frage: Kann ich ein Garagenvordach nachträglich an eine bestehende Garage anbauen? …
- … Frage: Welche Rolle spielen Abstandsflächen bei der Genehmigung von Carports und Garagenvordächern? …
- … Frage: Was passiert, wenn ich ein Garagenvordach ohne Genehmigung errichte? …
- … Antwort: Die Errichtung eines Garagenvordachs ohne …
- … Unterschiedliche Bauweisen von Garagenvordächern …
- … Überblick über verschiedene Materialien und Konstruktionsarten für Garagenvordächer. …
- … Versicherung von Carports und Garagenvordächern …
- … Hinweise zur Absicherung von Carports und Garagenvordächern gegen Schäden …
- BAU-Forum - Architekt / Architektur - Grenzgarage als Dachterrasse nutzen: Rechtliche Lage, Genehmigung & Bayern?
- … Dachterrasse auf Garage: Recht? …
- … Dachterrasse auf Grenzgarage in Bayern? Ist das rechtens? Infos zu Genehmigung, Abstandsflächen & …
- … Grenzgarage, Dachterrasse, Baurecht, Nachbarrecht, Bayern, Genehmigung, Abstandsflächen, Garagenrecht, Nutzungsänderung …
- … Baurecht, Nachbarrecht, Garagenrecht …
- … Grenzgarage als Dachterrasse …
- … Terrasse auf Grenzgarage …
- … zu uns, und benötigten unsere Unterschrift bzgl. des Flachdaches ihrer Grenzgarage. …
- … Auf dem Bauplan stand: Errichtung eines EFHA mit Garage und Carport …
- … (Anordnung aus unserer Sicht: Grenzgarage, Carport, Wohnhaus) …
- … - Ist eine Dachterrasse auf einer Grenzgarage erlaubt? …
- … Ich verstehe, dass Sie Bedenken bezüglich der Nutzung der Garagendachfläche Ihrer Nachbarn als Terrasse haben. Grundsätzlich ist die Nutzung einer …
- … Garagendachfläche als Terrasse eine Nutzungsänderung, die genehmigungspflichtig sein kann. Dies hängt …
- … Bebauungsplan: Gibt es Festsetzungen zur Nutzung von Garagendächern? …
- … GrenzgarageEine Grenzgarage ist eine Garage, die direkt an der …
- … Grundstücksgrenze errichtet wird. Für Grenzgaragen gelten besondere baurechtliche Vorschriften.Verwandte Begriffe: Garage, Carport, Stellplatz …
- … auf einer Garage eine Baugenehmigung?Antwort: Das hängt von der jeweiligen Landesbauordnung und den örtlichen Bebauungsplänen ab. In vielen Fällen ist eine Baugenehmigung erforderlich, da es sich um eine Nutzungsänderung handelt. Klären Sie dies beim zuständigen Bauamt. …
- … Frage: Was ist, wenn die Garage direkt an der Grundstücksgrenze steht?Antwort: Garagen dürfen unter …
- … bestimmten Voraussetzungen direkt an der Grundstücksgrenze errichtet werden. Die Nutzung des Garagendachs als Terrasse kann jedoch zusätzliche Anforderungen an den Brandschutz und …
- … Frage: Welche Rolle spielt der Bebauungsplan bei der Nutzung von Garagendächern?Antwort: Der Bebauungsplan kann Festsetzungen zur Nutzung von Garagendächern …
- … enthalten. Er kann beispielsweise vorschreiben, dass Garagendächer begrünt werden müssen oder dass eine Nutzung als Terrasse unzulässig ist. …
- … Frage: Was bedeutet Nutzungsänderung?Antwort: Eine Nutzungsänderung liegt vor, wenn ein Gebäude oder ein Teil davon für einen anderen Zweck genutzt wird als bisher. Die Nutzungsänderung einer Garagendachfläche in eine Terrasse ist in der Regel genehmigungspflichtig. …
- … Rechtmäßigkeit der Dachterrasse zu prüfen?Antwort: Sie benötigen den Bauplan der Garage, den Bebauungsplan für das Gebiet und ggf. die Baugenehmigung für die …
- … Baugenehmigung für GaragenInformationen zu den Voraussetzungen und dem Verfahren für die Erteilung einer …
- … Baugenehmigung für Garagen. …
- … Dachbegrünung von GaragenDie Vorteile und Möglichkeiten der Dachbegrünung von Garagen. …
- … Grenzgarage Bayern: BayBO – Keine Abstandsfläche erforderlich! …
- … Garagen sind …
- … Garagen einschließlich deren Nebenräume, überdachte Tiefgaragenzufahrten und Aufzüge zu …
- … Tiefgaragen mit einer Gesamtnutzfläche …
- … Demnach ist eine Terrasse Grenzgarage grundsätzlich unzulässig. …
- … garage als Dachterrasse in Bayern: Baurecht & Genehmigung …
- … um die rechtliche Zulässigkeit und Genehmigung einer Dachterrasse auf einer Grenzgarage in Bayern. Es werden Aspekte des Baurechts, insbesondere die BayBO (Bayerische …
- … ⚠️ Wichtiger Hinweis: Gemäß Grenzgarage Bayern: BayBO – Keine Abstandsfläche erforderlich! sind Garagen gemäß BayBO unter …
- … eingereichten Baupläne sind entscheidend. Eine nachträgliche Nutzungsänderung, wie die Umwandlung des Garagendachs in eine Dachterrasse, bedarf in der Regel einer erneuten Genehmigung. …
- … zuständigen Bauamt über die spezifischen Bestimmungen und Genehmigungspflichten für Dachterrassen auf Garagen in Bayern zu informieren. Prüfen Sie die Baugenehmigung der Garage und …
- BAU-Forum - Architekt / Architektur - Brandschutz Luke Doppelgarage: Anforderungen, Vorschriften & Kosten im Überblick
- … Brandschutz Luke in Doppelgarage: Vorschriften …
- … Brandschutz Luke in Doppelgarage: Welche Vorschriften gelten? Was kostet eine Brandschutzluke? Jetzt informieren …
- … Brandschutz Luke, Doppelgarage, Brandschutzvorschriften, Feuerschutz, Lukendeckel, Brandschutz Garage, Baden-Württemberg, Lagerraum …
- … Brandschutz, Garage, Bauvorschriften …
- … Brandschutz Luke Doppelgarage: Anforderungen, Vorschriften & …
- … Und zwar haben wir ein Zweifamilienhaus mit Doppelgarage gebaut (Baden Württemberg). …
- … Garage. Da es Unstimmigkeiten mit dem Architekt gibt, kann ich den grad …
- … Und zwar ist die Garage wie folgt: …
- … - Doppelgarage ganz ganz knapp unter 100 m² …
- … Die Garage ist nicht an unser eigenes Haus angebaut, aber sozusagen direkt an …
- … Der zweite Stellplatz soll übrigens vermietet werden (falls das eine Rolle spielt). …
- … dass es um die Brandschutzanforderungen für eine Luke in einer Doppelgarage in Baden-Württemberg geht, insbesondere im Hinblick auf einen Lagerraum im Dachgeschoss. …
- … von verschiedenen Faktoren ab, wie z.B. der Gebäudeklasse, der Nutzung der Garage (z.B. als Lagerraum) und den Abstandsflächen zu Nachbargebäuden. In Baden-Württemberg sind …
- … und die zugehörigen Verwaltungsvorschriften sowie ggf. weitere spezielle Vorschriften (z.B. für Garagen) relevant. …
- … Feuerwiderstandsklasse hängt von den oben genannten Faktoren ab. Die Außenwände der Garage aus Hochlochziegel und die Stahlbetondecke tragen grundsätzlich zum Brandschutz bei, die …
- … Frage: Welche Feuerwiderstandsklasse (EI) ist für eine Brandschutzluke in einer Doppelgarage erforderlich?Die erforderliche Feuerwiderstandsklasse hängt von der Gebäudeklasse, der Nutzung der …
- … Garage und den Abstandsflächen zu Nachbargebäuden ab. Eine EI30 oder EI90 Luke …
- … Frage: Spielen die Außenwände der Garage (Hochlochziegel) eine Rolle beim Brandschutz?Ja, die Außenwände aus Hochlochziegel tragen …
- … Frage: Gibt es spezielle Vorschriften für Garagen in Baden-Württemberg?Ja, in Baden-Württemberg gibt es spezielle Vorschriften für Garage …
- … Brandschutz in GaragenWelche Brandschutzmaßnahmen sind in Garagen erforderlich? …
- … Brandschutz Luke Doppelgarage: Anforderungen und Kosten …
- … Ausführung einer Brandschutzluke in einer Doppelgarage in Baden-Württemberg. Dabei werden Kostenunterschiede zwischen ein- und zweiseitigen Brandschutzluken sowie die Berücksichtigung von Durchdringungen in der Decke thematisiert. Die Einhaltung der Brandschutzvorschriften ist essentiell, um die Sicherheit des Gebäudes zu gewährleisten. …
- … 👉 Handlungsempfehlung: Es wird empfohlen, Angebote von verschiedenen Anbietern einzuholen und die Brandschutzvorschriften für Garagen in Baden-Württemberg genau zu prüfen. Eine Beratung durch einen …
- … im Bereich Brandschutz kann helfen, die optimale Lösung für die Doppelgarage zu finden und kostspielige Fehler zu vermeiden. …
- BAU-Forum - Architekt / Architektur - Grundriss Bezeichnung "Anlage": Was bedeutet das? Bedeutung & Interpretation
- … unbedingt Teil der Hauptstruktur ist. Dies kann beispielsweise eine Gartenanlage, ein Stellplatz, eine Terrasse, ein Geräteschuppen oder eine ähnliche Einrichtung sein. …
- … aber nicht unbedingt Teil des Hauptgebäudes ist, wie z.B. ein Garten, Stellplatz oder eine Terrasse.Verwandte Begriffe: Außenbereich, Freifläche, Nebengebäude …
- … StellplatzEine Fläche, die zum Abstellen von Fahrzeugen vorgesehen ist.Verwandte Begriffe: Parkplatz, Garage, Carport …
- BAU-Forum - Architekt / Architektur - Garagenzufahrt Steigungswinkel >30%: Zulässig? Architekt haftbar? Kosten & Verordnungen
- … Garagenzufahrt: Maximale Steigung? Architektenhaftung? …
- … Garagenzufahrt zu steil? Welche Steigung ist zulässig? Architekt haftbar? Jetzt informieren & Kostenrisiko minimieren! …
- … Garagenzufahrt, Steigungswinkel, Architekt, Haftung, Baugenehmigung, Verordnung, Garagenbau, Bauplanung, Kosten …
- … Architektur, Baurecht, Garagenbau, Haftungsrecht, Bauplanung …
- … Garagenzufahrt Steigungswinkel >30%: Zulässig? Architekt haftbar? Kosten & Verordnungen …
- … unser Architekt hat unsere Garage so geplant, dass wir einen Steigungswinkel von über 30 % haben …
- … - und somit die Garage nicht wie geplant befahren können. Wir mussten die Zufahrt komplett umbauen, was Immense Kosten zur folge hatte (mal abgesehen von der Ansicht des Hauses). Wir haben mit einem Bauunternehmen gebaut, welches den Architekten gestellt hat. Der Architekt war vor Ort und hat das Grundstück gesehen. Wir haben mit ihm die Planung erstellt und auch die Zufahrt zur Garage, wie wir dort rein möchten) besprochen. Die erste Planung …
- … keinem Ton erwähnt, dass wir nicht mehr wie geplant in die Garage kommen. Die Unterlagen zu Genehmigung zeigen auch unsere Zufahrt - die …
- … Gibt es für Baden Württemberg Verordnungen, wie die max. Steigung zur Garage (Privatgarage) sein darf? Ich habe das Gefühl, dass die …
- … Haftet der Architekt nicht dafür, wenn er eine Planung für eine Garage erstellt, wenn der Zugang zu dieser wie vom Bauherrn geplant (und …
- … ? Kritisch: Eine zu steile Garagenzufahrt birgt Unfallgefahr. Vermeiden Sie das Befahren, bis die Situation geklärt …
- … Ein Steigungswinkel von über 30% für eine Garagenzufahrt ist in der Regel nicht zulässig und kann die Nutzbarkeit der Garage erheblich beeinträchtigen. Die maximal zulässige Steigung ist in den jeweiligen …
- … Landesbauordnungen und Garagenverordnungen der Bundesländer geregelt. Diese Verordnungen legen fest, welche Anforderungen an Garagenzufahrten gestellt werden, um eine sichere und komfortable Nutzung zu …
- … ? Gefahr: Eine zu steile Garagenzufahrt kann zu gefährlichen Situationen führen, insbesondere bei Nässe oder Glätte. Fahrzeuge können beim Befahren oder Verlassen der Garage ins Rutschen geraten, was zu Unfällen und Beschädigungen führen kann. …
- … des Architekten hängt von verschiedenen Faktoren ab. Wenn der Architekt die Garagenzufahrt entgegen den geltenden Vorschriften und Normen geplant hat, liegt ein …
- … ? Handlungsempfehlung: Lassen Sie die Planung der Garagenzufahrt von einem unabhängigen Sachverständigen überprüfen und klären Sie die Haftungsfrage …
- … Entfernung einer Strecke. Er wird in Prozent oder Grad angegeben. Bei Garagenzufahrten ist der Steigungswinkel relevant, um eine sichere und komfortable Befahrung …
- … Garagenverordnung …
- … Die Garagenverordnung (GarVO) ist eine Verordnung, die spezifische Anforderungen an den …
- … Bau und Betrieb von Garagen stellt. Sie regelt unter anderem die zulässige Größe, die Belüftung und die Brandschutzmaßnahmen. Die GarVO ist Bestandteil des Baurechts.Verwandte Begriffe: Stellplatzverordnung, Baurecht, Brandschutz. …
- … Frage: Welche maximale Steigung ist für Garagenzufahrten zulässig? …
- … Die maximal zulässige Steigung für Garagenzufahrten ist in …
- … den Landesbauordnungen und Garagenverordnungen der Bundesländer geregelt. In der Regel liegt sie zwischen 12% und 15%. Es ist wichtig, die spezifischen Vorschriften des jeweiligen Bundeslandes zu beachten. …
- … Frage: Haftet der Architekt für eine fehlerhafte Planung der Garagenzufahrt? …
- … Vorschriften und Normen verstoßen hat. Dies gilt insbesondere dann, wenn die Garagenzufahrt aufgrund der fehlerhaften Planung nicht nutzbar ist und zusätzliche Kosten …
- … Frage: Was kann man tun, wenn die Garagenzufahrt zu steil ist? …
- … Wenn die Garagenzufahrt zu steil ist, …
- … Frage: Welche Rolle spielt die Baugenehmigung bei der Garagenzufahrt? …
- … der Garagenzufahrt den geltenden Vorschriften entspricht. Wenn die Garagenzufahrt ohne Baugenehmigung oder abweichend von der Genehmigung gebaut wurde, kann dies zu Problemen führen. …
- … Frage: Kann man die Kosten für den Umbau der Garagenzufahrt vom Architekten zurückfordern? …
- … Planung haftbar ist, kann man die Kosten für den Umbau der Garagenzufahrt vom Architekten zurückfordern. Dies setzt jedoch voraus, dass der Planungsfehler …
- … Garagenbau: Genehmigungspflicht und Vorschriften …
- … Informationen zu den baurechtlichen Anforderungen und Genehmigungsverfahren für den Bau von Garagen. …
- … Barrierefreie Garagenzufahrten: Anforderungen und Gestaltung …
- … Hinweise zur Gestaltung von Garagenzufahrten, die …
- … Baurecht BW: Garagenzufahrt – Anwaltliche Klärung empfohlen! …
- … Garagenzufahrt Steigungswinkel: Architektenhaftung & Baugenehmigung …
- … 💡 Kernaussagen: Bei einer Garagenzufahrt …
- … Architekten ist zu prüfen, insbesondere wenn Planungsfehler vorliegen. Die Einhaltung der Garagenverordnung (GaVO) des jeweiligen Bundeslandes ist entscheidend. Ein Fachanwalt für Baurecht …
- … ⚠️ Wichtiger Hinweis: Laut Beitrag von Baurecht BW: Garagenzufahrt – Anwaltliche Klärung empfohlen! ist die Klärung der Zuständigkeiten und vertraglichen …
- … Baurecht unerlässlich, um die Haftung des Architekten bei einer zu steilen Garagenzufahrt zu beurteilen. …
- … ✅ Zusatzinfo: Die Garagenverordnung (GaVO) von Baden-Württemberg regelt …
- … die zulässigen Steigungswinkel und weitere baurechtliche Aspekte von Garagenzufahrten. Es ist wichtig, diese Verordnung im Detail zu prüfen, um …
Interne Suche verfeinern: Weitere Suchbegriffe eingeben und mehr zu "Stellplatz, Garage" finden
Geben Sie eigene Suchbegriffe ein, um die interne Suche zu verfeinern und noch mehr passende Fundstellen zu "Stellplatz, Garage" oder verwandten Themen zu finden.
Interne Suche: Suchbegriffe eingeben und mehr zu "Stellplatz, Garage" finden
Geben Sie Suchbegriffe ein, um die interne Suche zu nutzen und passende Fundstellen zu "Stellplatz, Garage" oder verwandten Themen zu finden.
Externe Fundstellen und weiterführende Recherchen
Nachfolgende Suchlinks können Ihnen dabei helfen, ähnliche Fragestellungen zu erkunden:
Suche nach: Stellplatz vor Garage: Optimale Anordnung, Zuwegung & Garagentor-Lösungen für Eckgrundstücke?
Google
Bing
AOL
DuckDuckGo
Ecosia
Qwant
Startpage
Yahoo!
Suche nach: Stellplatz vor Garage: Anordnung & Garagentor-Optionen
Google
Bing
AOL
DuckDuckGo
Ecosia
Qwant
Startpage
Yahoo!
Suche nach: Stellplatz, Garage, Eckgrundstück, Zuwegung, Garagentor, Anordnung, Grundstücksplanung, Carport, Garagentore
Google
Bing
AOL
DuckDuckGo
Ecosia
Qwant
Startpage
Yahoo!