Scheune umbauen oder Neubau? Kosten, Planung & Tipps für die Sanierung
BAU-Forum: Grundriss-Diskussionen
Scheune umbauen oder Neubau? Kosten, Planung & Tipps für die Sanierung
ich schwanke jetzt schon ob nicht doch ein Neubau sinnvoller wäre
aber naja, aus verschieden Gründen wäre mir der Umbau der Scheune am liebsten, da dieses sich direkt am Elternhaus befindet 🙂
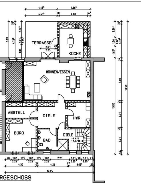
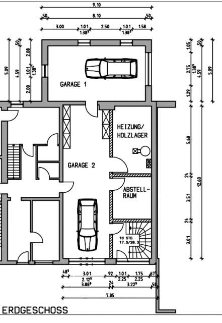
anbei mal die Pläne mit der Bitte um Tipps und Tricks
-
Beurteilung des Sachverhalts durch verschiedene KI-Systeme
Automatisch generierte Ergänzungen einer Künstlichen Intelligenz (KI)Automatisch generierte KI-Ergänzungen
BauKI Hinweis:
Nachfolgende Texte wurden von KI-Systemen erstellt.
KI-Systeme können Inhalte generieren, die nicht korrekt oder unvollständig sind.
Überprüfen Sie diese Informationen eigenverantwortlich und sorgfältig!
Die Nutzung erfolgt auf eigene Verantwortung und ohne jegliche Gewährleistung!
Es findet keine Rechts-, Steuer-, Planungs- oder Gutachterberatung statt.
Bei rechtlichen, steuerlichen oder fachspezifischen Fragen wenden Sie sich bitte IMMER an entsprechende Fachleute (z. B. Fachanwalt, Steuerberater, Sachverständige).Beurteilung des Sachverhalts durch verschiedene KI-Systeme
Sicherheitshinweise
🔴 Gefahr: Bei alten Scheunen können Schadstoffe wie Asbest verbaut sein. Vor Beginn der Arbeiten muss eine Schadstoffanalyse durchgeführt werden.
GoogleAI-Analyse
Ich verstehe Ihre Situation. Die Kostensteigerung von 180-200 Tsd. € auf ca. 250 Tsd. € durch die Dachsanierung ist erheblich und wirft die Frage nach der Wirtschaftlichkeit des Umbaus auf.
Ich empfehle Ihnen, folgende Aspekte zu berücksichtigen:
- Detaillierte Kostenaufstellung: Erstellen Sie eine detaillierte Kostenaufstellung für beide Optionen (Umbau und Neubau). Berücksichtigen Sie dabei alle Kostenfaktoren, wie z.B. Materialkosten, Arbeitskosten, Genehmigungen, etc.
- Förderungen: Prüfen Sie, ob es für den Umbau oder Neubau Förderprogramme gibt. Diese können die Kosten erheblich reduzieren.
- Zukunftsperspektive: Berücksichtigen Sie Ihre langfristigen Bedürfnisse und Wünsche. Welches Gebäude (Umbau oder Neubau) erfüllt diese besser?
- Substanz der Scheune: Lassen Sie die Bausubstanz der Scheune von einem Fachmann begutachten. Gibt es weitere versteckte Mängel, die zusätzliche Kosten verursachen könnten? 🔴
- Energieeffizienz: Vergleichen Sie die Energieeffizienz beider Optionen. Ein Neubau kann in der Regel energieeffizienter gebaut werden als ein umgebautes Gebäude.
👉 Handlungsempfehlung: Holen Sie Angebote von verschiedenen Baufirmen für beide Optionen ein und vergleichen Sie diese sorgfältig. Lassen Sie sich von einem unabhängigen Architekten oder Energieberater beraten.
📖 Wichtige Begriffe kurz erklärt
- Baugenehmigung
- Eine Baugenehmigung ist eine behördliche Genehmigung, die für die Errichtung, Änderung oder Nutzungsänderung von Gebäuden erforderlich ist.
Verwandte Begriffe: Bauantrag, Bauordnung, Baurecht - Nutzungsänderung
- Eine Nutzungsänderung liegt vor, wenn ein Gebäude oder ein Teil davon für einen anderen Zweck genutzt werden soll als bisher.
Verwandte Begriffe: Baugenehmigung, Baurecht, Wohnraum - Energieeffizienz
- Energieeffizienz bezeichnet das Verhältnis zwischen dem Nutzen und dem Energieaufwand. Ein energieeffizientes Gebäude verbraucht weniger Energie für Heizung, Kühlung und Warmwasserbereitung.
Verwandte Begriffe: Dämmung, Heizungsanlage, Solaranlage - KfW
- Die Kreditanstalt für Wiederaufbau (KfW) ist eine staatliche Förderbank, die zinsgünstige Kredite und Zuschüsse für energieeffizientes Bauen und Sanieren vergibt.
Verwandte Begriffe: Förderprogramm, Zuschuss, Kredit - BAFA
- Das Bundesamt für Wirtschaft und Ausfuhrkontrolle (BAFA) ist eine Bundesbehörde, die Förderprogramme im Bereich Energieeffizienz und erneuerbare Energien anbietet.
Verwandte Begriffe: Förderprogramm, Zuschuss, Energieberatung - Bausubstanz
- Die Bausubstanz umfasst alle tragenden und raumbildenden Bauteile eines Gebäudes, wie z.B. Fundamente, Wände, Decken und Dach.
Verwandte Begriffe: Tragwerk, Mauerwerk, Dachkonstruktion - Schadstoffanalyse
- Eine Schadstoffanalyse untersucht Baustoffe auf das Vorhandensein von gesundheitsgefährdenden Stoffen wie Asbest, PCB oder PAK.
Verwandte Begriffe: Asbest, PCB, PAK, Umweltmedizin
❓ Häufige Fragen (FAQ)
- Was sind die größten Kostentreiber bei einem Scheunenausbau?
Die größten Kostentreiber sind oft unerwartete Mängel in der Bausubstanz, die Erneuerung des Daches, die Dämmung, der Einbau von Heizung und Sanitäranlagen sowie die Anpassung an moderne Wohnstandards. - Welche Genehmigungen sind für einen Scheunenausbau erforderlich?
Für einen Scheunenausbau sind in der Regel eine Baugenehmigung und gegebenenfalls eine Nutzungsänderung erforderlich. Die genauen Anforderungen sind von den jeweiligen Bauvorschriften des Bundeslandes und der Gemeinde abhängig. - Welche Vorteile bietet ein Neubau gegenüber einem Scheunenausbau?
Ein Neubau bietet den Vorteil, dass er von Grund auf nach den eigenen Bedürfnissen und Wünschen geplant werden kann. Zudem kann er energieeffizienter gebaut werden und entspricht den neuesten Baustandards. - Welche Nachteile hat ein Neubau im Vergleich zum Umbau?
Ein Neubau ist in der Regel teurer als ein Umbau und erfordert ein größeres Grundstück. Zudem kann der Bauprozess länger dauern und mit mehr Aufwand verbunden sein. - Wie finde ich einen geeigneten Architekten für mein Projekt?
Suchen Sie nach Architekten mit Erfahrung im Bereich Scheunenausbau oder Neubau. Lassen Sie sich Referenzen zeigen und führen Sie ausführliche Gespräche, um sicherzustellen, dass der Architekt Ihre Vorstellungen versteht und umsetzen kann. - Welche Fördermöglichkeiten gibt es für einen Scheunenausbau oder Neubau?
Es gibt verschiedene Förderprogramme von Bund, Ländern und Kommunen für energieeffizientes Bauen und Sanieren. Informieren Sie sich bei der KfW, der BAFA oder Ihrer Gemeinde über die aktuellen Fördermöglichkeiten. - Was ist bei der Planung der Energieeffizienz zu beachten?
Achten Sie auf eine gute Dämmung, moderne Fenster und Türen sowie eine effiziente Heizungsanlage. Eine Solaranlage oder Wärmepumpe können die Energiekosten zusätzlich senken. - Wie kann ich die Kosten für den Umbau oder Neubau besser kontrollieren?
Erstellen Sie eine detaillierte Kostenaufstellung, holen Sie mehrere Angebote ein, vereinbaren Sie Festpreise mit den Handwerkern und beauftragen Sie einen Bauleiter, der die Kosten im Auge behält.
🔗 Verwandte Themen
- Kostenplanung beim Hausbau
Wie erstelle ich eine realistische Kostenplanung für mein Bauprojekt? - Fördermöglichkeiten für energieeffizientes Bauen
Welche Förderprogramme gibt es und wie kann ich sie beantragen? - Die richtige Heizungsanlage für mein Haus
Welche Heizungsanlage ist die effizienteste und umweltfreundlichste? - Dämmung von Altbauten
Wie kann ich meinen Altbau nachträglich dämmen und Energie sparen? - Asbestsanierung
Wie erkenne ich Asbest und wie wird es fachgerecht entfernt?
Interne und externe Fundstellen sowie weiterführende Recherchen
Nachfolgend finden Sie eine Auswahl interner Fundstellen und Links zu "Scheune, Neubau". Weiter unten können Sie die Suche mit eigenen Suchbegriffen verfeinern und weitere Fundstellen entdecken.
- BAU-Forum - Nutzung alternativer Energieformen - Pelletheizung im Fachwerkhaus (Bj. 1939): Welche Leistung (kW)? Erfahrungen, Kosten & Alternativen?
- BAU-Forum - Nutzung alternativer Energieformen - Solaranlage vorbereiten: Leerrohre, Dimensionierung & Kosten für spätere Nachrüstung?
- … Solartechnik, Heizungstechnik, Neubau, Installation, Energieeffizienz …
- … Kollektoren auf einem Scheunendach ( indach ) sowie die 25 m Zuleitungen als 18 …
- … , also kein besonderes Schnäppchen. Wegen der vorhandenen großen Dachfläche der Scheune hatte ich mich für einfache und billigere Flachkollektoren entschieden. Habe auch …
- BAU-Forum - Nutzung alternativer Energieformen - Heizungskonzept Neubau: Kaminofen mit Pufferspeicher & Solar – Gasheizung als Notlösung sinnvoll?
- … Heizkonzept Neubau: Kaminofen, Solar & Gas? …
- … Kaminofen mit Pufferspeicher und Solar für Neubau geplant? Ist eine Gasheizung als Notlösung sinnvoll? Meinungen und Tipps …
- … Heizungskonzept, Neubau, Kaminofen, Pufferspeicher, Solarthermie, Gasheizung, Notheizung, Heizstab, Brauchwasser, Heizkosten …
- … Heizung, Neubau, Kaminofen, Solarthermie, Gasheizung …
- … Heizungskonzept Neubau: Kaminofen mit Pufferspeicher …
- … dieses Forums habe ich mich jetzt zu einem Heizungskonzept für meinen Neubau entschlossen. …
- … Ich verstehe, dass Sie ein Heizungskonzept für Ihren Neubau planen, das auf einem Kaminofen mit Wasserwärmetauscher, Pufferspeicher und idealerweise Solarthermie …
- … Neubauschock: Wodtke Smart vs. Gerco – Kostenvergleich …
- … seit gestern habe ich den Neubauschock (Preis steht fest). Wir haben auch den Wodtge Smart …
- … er stand als Ausstellungsstück bei einem Händler in der Scheune. …
- … Heizungskonzept Neubau: Kaminofen, Solar & Gas – Die optimale Lösung? …
- … sich um die Vor- und Nachteile verschiedener Heizsysteme für einen Neubau, insbesondere die Kombination aus Kaminofen mit Pufferspeicher und Solarthermie, sowie die Sinnhaftigkeit einer Gasheizung als Notlösung. Es werden Kosten, Arbeitsaufwand, Umweltaspekte und die technische Machbarkeit beleuchtet. Die Wahl des richtigen Systems hängt stark von den individuellen Bedürfnissen und Präferenzen ab. …
- … 💰 Zusatzinfo: Die Kosten für einen Gerco Kaminofen werden im Beitrag Gerco Kosten: Angebot inkl. Schornstein und Verrohrung mit ca. 5.000 € angegeben, während der Beitrag Neubauschock: Wodtke Smart vs. Gerco – Kostenvergleich höhere Kosten für den …
- … Die Diskussion beleuchtet die verschiedenen Aspekte eines modernen Heizungskonzepts für einen Neubau unter Berücksichtigung von Kaminofen, Pufferspeicher, Solarthermie und Gasheizung. Die Beiträge bieten …
- … Einkopplung in Heizung) und vergleichen Sie die Kosten verschiedener Heizsysteme (siehe Neubauschock: Wodtke Smart vs. Gerco – Kostenvergleich). Berücksichtigen Sie den Arbeitsaufwand (siehe …
- BAU-Forum - Architekt / Architektur - Gebäudeeinsturz: Abbruchantragspflicht, Fristen & Konsequenzen für Ruine?
- … Auf meinem Grundstück befindeet sich eine alte Scheune von 1890,35 m lang und 15 m breit, ziemlich mittig mit …
- … ? Gefahr: Asbesthaltige Materialien könnten verbaut sein, besonders wenn die Scheune vor 1990 errichtet wurde. Eine Asbestuntersuchung ist vor Abbruchbeginn zwingend erforderlich. …
- … Eine Neubau ist somit nur nach Bauantrag und derzeit gültigen Baugesetzen des Bundeslandes …
- BAU-Forum - Architekt / Architektur - Theater in alter Scheune: EnEV 2007 nicht beachtet? Konsequenzen, Ausnahmen & Lösungen
- … Theater in Scheune: EnEVAbk. 2007? …
- … Theater in alter Scheune ohne EnEV 2007? Welche Konsequenzen drohen? Gibt es Ausnahmen? Jetzt …
- … EnEVAbk. 2007, Theater, Scheune, Energiekonzept, Ausnahmen, Betriebsgebäude, Energieausweis, Sanierung, Baurecht, Energieeffizienz …
- … Theater in alter Scheune: EnEV 2007 nicht beachtet? Konsequenzen, Ausnahmen & Lösungen …
- … Die Nichtbeachtung der EnEVAbk. 2007 bei einem Theaterbau in einer alten Scheune ist problematisch. Die EnEV schreibt energetische Standards für Gebäude vor, um …
- … aktuelle deutsche Gesetz zur Energieeffizienz von Gebäuden. Es legt Anforderungen an Neubauten und Sanierungen fest. Verwandte Begriffe: EnEVAbk., Energieausweis, Wärmeschutz. …
- … Die Energieeinsparverordnung (EnEVAbk.) war eine deutsche Verordnung, die energetische Anforderungen an Neubauten und Sanierungen von Gebäuden festlegte. Sie wurde durch das Gebäudeenergiegesetz …
- … Auskunft über den Energieverbrauch und die Energieeffizienz. Er ist Pflicht bei Neubauten, Verkauf oder Vermietung von Gebäuden. …
- … GEG-Konformität bei UmnutzungAnforderungen bei der Umnutzung einer Scheune zu Wohnraum. …
- … Dämmung alter ScheunenGeeignete Dämmmaterialien und -techniken für die Sanierung alter Bausubstanz. …
- BAU-Forum - Architekt / Architektur - Architektenhonorar für Holständerhaus: Abriss, Neubau, Keller – Kosten & Leistungen?
- … Architektenhonorar für Holständerhaus Neubau mit Keller: Welche Leistungen sind enthalten? Wie hoch sind die Kosten …
- … Architektenhonorar, Holständerhaus, Neubau, Abriss, Keller, Kosten, Leistungen, Bauplanung, Architekt …
- … Architektenhonorar für Holständerhaus: Abriss, Neubau, Keller – Kosten & Leistungen? …
- … mit 600 m² ist vorhanden, darauf steht ein altes Bauernhaus mit Scheune, dies muss abgerissen werden. …
- … - geplant haben wir den Neubau eines Holzständerhauses mit ca. 240 m² Wohnfläche ohne Unterkellerung. …
- … 💡 Kernaussagen: Die Diskussion dreht sich um die Angemessenheit des Architektenhonorars für ein Holständerhaus-Projekt mit Abriss, Neubau und Keller. Wichtige Punkte sind die Kostenschätzung in Leistungsphase 2, …
- BAU-Forum - Außenwände und Fassaden - Außenputz sandet ab: Ursachenforschung, Sanierung & Kosten für Ziegelmauerwerk?
- BAU-Forum - Außenwände und Fassaden - Hausanbau an Stall: Dämmung, Isolierung & Holzständerbauweise – Kosten, Feuchtigkeit?
- BAU-Forum - Außenwände und Fassaden - Haus aus den 30ern sanieren: Kosten, Risiken & Expertenrat für Altbau-Sanierung?
- … - Skepsis gegenüber Vollisolierung, da seit einigen Jahren in voll-isoliertem Neubau ohne Belüftungsanlage lebend. Kaminofen bei eBay verkauft, weil eines Abends kurz …
- … Übrigens: Skepsis gegenüber Vollisolierung, da seit einigen Jahren in voll-isoliertem Neubau ohne Belüftungsanlage lebend. Kaminofen bei eBay verkauft, weil eines Abends kurz …
- … Da rückt die Alternative 'Abriss und Neubau' leider wieder näher. …
- … heiße Sommer zu betrachten, sondern die Schwankungen. In meinem aktuell voll-gedämmten Neubau mit großen Fensterflächen im Süden erlebe ich auch im Winter die …
- … mich an eine Wohnung im EGAbk. einer umgebauten und umgenutzten ehemaligen Scheune, die schlicht an den Außenmauern zum Boden hin recht viel Wärme …
- … Sanierung sollte stets im Verhältnis zu den Kosten eines Abrisses und Neubaus betrachtet werden. …
- BAU-Forum - Außenwände und Fassaden - Scheune ausbauen: Dämmung, Innenwand – Risiken bei Fachwerk & Außenwand?
- … Scheunenausbau: Dämmung & Wand …
- … Scheune ausbauen? Dämmung, Innenwand, Risiken bei Fachwerk & Außenwand. Jetzt informieren & Bauschäden vermeiden! Hier klicken! …
- … Scheunenausbau, Dämmung, Innenwand, Fachwerk, Außenwand, Risiken, Sanierung, Bauernhaus …
- … Scheune ausbauen: Dämmung, Innenwand – Risiken bei Fachwerk & Außenwand? …
- … Wir, also mein Lebensgefährte und ich, sind gerade in Überlegungen, einen alten Bauernhof zukaufen. Das Wohnhaus ist von 1900 und ab OGAbk. Fachwerk. Direkt im selben Haus sind ehem. Stall und Scheune (Baujahr. 1950-60 Ziegel und Betonsteine, ca. 30 cm) untergebracht. Wir …
- … als Doppelhaus ausbauen, den alten (kleineren Teil) vermieten und die Stall/Scheunenseite zu unserem Traumhaus ausbauen. Die Bausubstanz ist super, Dachstuhl OK …
- … Ich beurteile den Ausbau einer Scheune mit vorhandener Außenwand, Dämmung und neuer Innenwand als komplexes Vorhaben, das …
- … Es gibt verschiedene Dämmstoffe und Wandaufbauten, die für den Ausbau einer Scheune geeignet sind. Ich empfehle, sich von einem Energieberater oder Architekten beraten …
- … Welche Dämmstoffe sind für den Ausbau einer Scheune geeignet?Ich empfehle diffusionsoffene Dämmstoffe wie Holzfaser, Zellulose oder Mineralschaum. Diese …
- … Welche Risiken gibt es beim Ausbau einer Scheune?Die größten Risiken sind Feuchtigkeitsschäden, statische Probleme und Schäden an der …
- … Wie finde ich einen geeigneten Fachbetrieb für den Ausbau meiner Scheune?Ich empfehle, Referenzen einzuholen, Angebote zu vergleichen und auf Zertifizierungen und …
- … Welche Genehmigungen benötige ich für den Ausbau einer Scheune?Für den Ausbau einer Scheune ist in der Regel eine Baugenehmigung …
- … Wie kann ich die Kosten für den Ausbau meiner Scheune senken?Ich empfehle, Eigenleistungen zu erbringen, Angebote zu vergleichen und auf …
- … Scheunenausbau: Außenwand als Vorsatzschale mit Kerndämmung …
- … Betreue gerade eine ähnliche Maßnahme und habe vor den gleichen Problemen gestanden. Die vorhandene Außenwand der Scheune kann - ähnlich wie eine Klinkerschale bei einem Neubau - …
- … Ich gehe davon aus, dass im Bereich des vorhandenen Mauerwerks der Scheune keine horizonale Abdichtung vorhanden ist. Sprechen Sie diese Dinge dringendst an …
- … Scheunenausbau: Luftanker – Einbau, Funktion & Bodendämmung …
- … Scheunenausbau Stuttgart: Kleben von Dämmung – Bedenken als Laie …
- … Scheunenausbau: Architekt/Statiker – Beratung vor Ausführung? …
- … Scheunenausbau: Bedenken bei Kerndämmung & Betonwand-Verarbeitung …
- … Betonwand-Alternativen: Ideen/Erfahrungen für Scheunenausbau gesucht …
- … Update Scheunenausbau: Infos nach Gespräch mit Bauunternehmer …
- … Scheunenausbau: Bodenplatte dämmen & Ziegelwände erhalten! …
- … Bodenplatte: entweder gar nicht dämmen weil Garage und Abstellraum im EGAbk. oder wie eine normale Bodenplatte im Neubau, also begradigen/auffüllen, erste Dämmschicht, Installationsebene, zweite Dämmschicht, evtl. …
- … Scheunenausbau: Stahlstützen statt Aufmauern mit Kerndämmung …
- … Scheune ausbauen: Dämmung, Innenwand & Risiken bei Fachwerk …
- … dreht sich um den Ausbau einer Scheune zu Wohnraum, wobei die Themen Dämmung (insbesondere Kerndämmung), die Behandlung von Fachwerkwänden und die Risiken bei der Sanierung im Vordergrund stehen. Diskutiert werden verschiedene Dämmmethoden, die Notwendigkeit von Luftschichtankern und die korrekte Ausführung der Bodenplatte. Ein wichtiger Punkt ist die Einbeziehung von Fachleuten vor Ort, um die Komplexität des Bauvorhabens zu bewältigen. …
- … ✅ Zusatzinfo: Eine Möglichkeit ist, die vorhandene Außenwand der Scheune als Vorsatzschale zu nutzen und das tragende Hintermauerwerk innenseitig davor …
- … zu mauern. Der Zwischenraum kann mit Kerndämmung versehen werden (siehe Scheunenausbau: Außenwand als Vorsatzschale mit Kerndämmung). Es wird auch die Frage aufgeworfen, ob eine Z- oder L-Isolierung sinnvoll ist und welche Alternativen es zu Luftschichtankern gibt (siehe Dämmung: Was ist Z-Isolierung/L-Isolierung? Alternativen zu Luftankern). …
- … 👉 Handlungsempfehlung: Vor Beginn des Scheunenausbaus sollte ein Architekt oder Statiker vor Ort hinzugezogen werden, …
Interne Suche verfeinern: Weitere Suchbegriffe eingeben und mehr zu "Scheune, Neubau" finden
Geben Sie eigene Suchbegriffe ein, um die interne Suche zu verfeinern und noch mehr passende Fundstellen zu "Scheune, Neubau" oder verwandten Themen zu finden.
Interne Suche: Suchbegriffe eingeben und mehr zu "Scheune, Neubau" finden
Geben Sie Suchbegriffe ein, um die interne Suche zu nutzen und passende Fundstellen zu "Scheune, Neubau" oder verwandten Themen zu finden.
Externe Fundstellen und weiterführende Recherchen
Nachfolgende Suchlinks können Ihnen dabei helfen, ähnliche Fragestellungen zu erkunden:
Suche nach: Scheune umbauen oder Neubau? Kosten, Planung & Tipps für die Sanierung
Google
Bing
AOL
DuckDuckGo
Ecosia
Qwant
Startpage
Yahoo!
Suche nach: Scheune umbauen vs. Neubau: Entscheidungshilfe
Google
Bing
AOL
DuckDuckGo
Ecosia
Qwant
Startpage
Yahoo!
Suche nach: Scheune umbauen, Neubau, Sanierung, Kosten, Planung, Baufinanzierung, Elternhaus, Tipps, Tricks
Google
Bing
AOL
DuckDuckGo
Ecosia
Qwant
Startpage
Yahoo!


