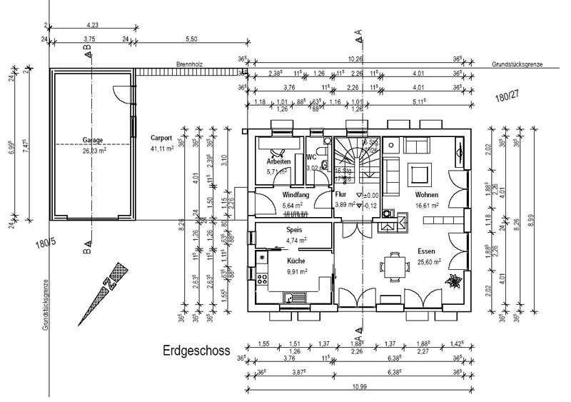
bin grad am Erarbeiten eines Planes für mein kommendes Einfamilienhaus. Denke, beim angehängten Plan (Erdgeschoss) ist das Wohnzimmer eindeutig zu klein geraten. Bin jetzt am Überlegen, wie ich die Aufteilung optimieren kann. Tausch Küche in Wohnzimmer. Mit der Frage, ob ein Wohnzimmer im Westen und Küche im Süden nicht ungemütlich ist. Bin auf weitere Anregungen/Verbesserungen gespannt.
Weitere Infos:
- geplanter Bau kommendes Jahr (evtl. früher)
- 2 Personen (+ was noch kommen mag)
- 1. Stock beinhaltet Bad und 3 Schlafzimmer inkl. 1 Ankleide
- Keller ist ausgebaut
- Dachgeschoss soll später auch ausgebaut werden
Bin danbar für jede hilfreiche und nützliche Anregung.
Grüße
Wolfgang
