ich habe eine Frage zu unserer (aus zweiter Hand) erworbenen Doppelhaushälfte in Hamburg. Wegen eines kommenden dritten Kindes tragen wir uns mit Ausbau-Gedanken, u.a. war die Idee, einen Wintergarten in unseren Vorgarten zu setzen und das Wohnzimmer zu teilen, um einen Raum zu gewinnen. Nun würde ich gerne wissen, ob dies rechtlich theoretisch auf unserem kleinen (schlauchförmigen) Grundstück machbar ist und wie groß dieser sein darf? Mir ist bewusst, dass mein Doppelhaushälfte-Nachbar natürlich auch gefragt werden muss.
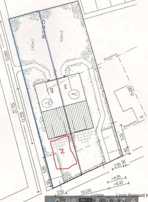
Das Grundstück ist insgesamt 575 m² groß und ideell geteilt, siehe Datei Baugrenze. Dort ist auch die mögliche Lage des Wintergartens eingezeichnet. Die schmale Seite geht zur Straße, die lange Seite wird von einem nur für Fußgänger betretbaren Stichweg zwischen unserem und dem Nachbargrundstück begrenzt. Das Haus liegt in einem reinen Wohngebiet.
Ist die mögliche Fläche für eine zusätzliche Bebauung zu gering? Unsere Wohnfläche beträgt 110,07 m².
Bei Durchsicht der Dokumente ist mir aufgefallen, dass das Doppelhaus gar nicht in der eingezeichneten Baugrenze liegt, wie ist dies zu erklären?
Anbei ein paar Dokumente, darunter der alte (bevor das Grundstück geteilt wurde) Bebauungsplan plus der neue Lageplan.
Danke schon mal und viele Grüße!



