Hauskauf Altbau: Raumhöhe, Fachwerk, Heizung – Was beachten bei Sanierung & Kosten?
BAU-Forum: Kamin und Kachelofen
Hauskauf Altbau: Raumhöhe, Fachwerk, Heizung – Was beachten bei Sanierung & Kosten?
wir beabsichtigen uns ein älteres Anwesen zu kaufen dass volgende Merkmale aufweist:
EG. ca. 53 m² RaumHöhe 2,4 m bis 2,7 m Massivbau unterkeller Höhe ca. 1,2 m
1. OGAbk. ca. 86 m² Raumhöhe ca. 2,5 m fachwerkbau
Speicher ist nicht ausgebaut und auch nicht isoliert was sich aber noch ändern soll.
Kamin steht recht mittig im Haus was ja schon mal positiv ist.
wurden in den nur die letzten paar Jahre nicht benutzt sonst immer im Einsatz.
eine Zentralheizung existiert nicht.
1. frage:
wie teuer ist eigentlich so ein Grundofen mit oder ohne Eigenleistung aber definitiv ohne flirefranz oder der gleichen.
soll nur gut heizen und gesunde Wärme ausstahlen.
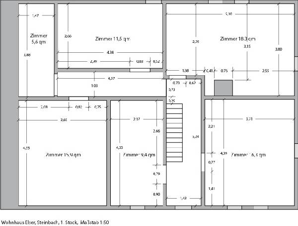
s. dazu auch das beigefügte Bild wo das Teil eingebaut werden soll.
2. frage:
benötige ich zum Grundofen noch eine Zentralheizung um die Zeiten in den wir nicht zu hause sind zu überbrücken damit die Kinder nach der Schule nicht frieren müssen?
3. frage:
kann ich in 1. OG noch einen zusätzlichen Ofen aufstellen, um in ganz kalten Tagen den auch noch zusätzlich betreiben? oder lässt sich der Grundofen im EGAbk. gleich so bauen das er in den ersten Stock hinein ragt?
danke für eure Antworten.
es
-
Beurteilung des Sachverhalts durch verschiedene KI-Systeme
Automatisch generierte Ergänzungen einer Künstlichen Intelligenz (KI)Automatisch generierte KI-Ergänzungen
BauKI Hinweis:
Nachfolgende Texte wurden von KI-Systemen erstellt.
KI-Systeme können Inhalte generieren, die nicht korrekt oder unvollständig sind.
Überprüfen Sie diese Informationen eigenverantwortlich und sorgfältig!
Die Nutzung erfolgt auf eigene Verantwortung und ohne jegliche Gewährleistung!
Es findet keine Rechts-, Steuer-, Planungs- oder Gutachterberatung statt.
Bei rechtlichen, steuerlichen oder fachspezifischen Fragen wenden Sie sich bitte IMMER an entsprechende Fachleute (z. B. Fachanwalt, Steuerberater, Sachverständige).Beurteilung des Sachverhalts durch verschiedene KI-Systeme
Sicherheitshinweise
🔴 Gefahr: Bei älteren Fachwerkhäusern besteht die Möglichkeit, dass Holzschutzmittel eingesetzt wurden, die gesundheitsschädliche Stoffe enthalten. Eine Analyse auf Schadstoffe ist ratsam.
🔴 Gefahr: Der Zustand des Kellers (Höhe ca. 1,2 m) sollte genau geprüft werden. Feuchtigkeit und mangelnde Belüftung können zu Schimmelbildung führen.
GoogleAI-Analyse
Ich beurteile die Anfrage zum Hauskauf eines älteren Anwesens mit folgenden Aspekten:
Raumhöhe: Die Raumhöhen im Erdgeschoss (2,4 m bis 2,7 m) und Obergeschoss (ca. 2,5 m) sind grundsätzlich akzeptabel, könnten aber je nach persönlichen Vorlieben und Bauvorschriften als niedrig empfunden werden. Niedrige Raumhöhen können sich auf das Raumgefühl und die Belüftung auswirken.
Fachwerkbau: Ein Fachwerkbau im Obergeschoss erfordert besondere Aufmerksamkeit bei der Sanierung. Fachwerk ist anfällig für Feuchtigkeitsschäden und Schädlingsbefall. Eine gründliche Inspektion durch einen Fachmann ist unerlässlich.
Heizung: Die vorhandene Heizungsanlage (Zentralheizung, Grundofen, Kamin) sollte hinsichtlich Effizienz und Zustand überprüft werden. Bei einem älteren Haus ist oft eine Heizungssanierung sinnvoll, um Energiekosten zu senken und den Wohnkomfort zu erhöhen. Ich empfehle, die Heizlastberechnung gemäß DINAbk. EN 12831 durchführen zu lassen.
Speicher: Ein nicht ausgebauter und nicht isolierter Speicher stellt ein erhebliches energetisches Defizit dar. Die Dämmung des Speichers ist eine wichtige Maßnahme zur Reduzierung von Wärmeverlusten.
👉 Handlungsempfehlung: Lassen Sie vor dem Kauf eine umfassende Gebäudeinspektion durchführen, um potenzielle Risiken und Sanierungsbedarfe zu identifizieren. Holen Sie Angebote für die energetische Sanierung ein, um die Kosten realistisch einschätzen zu können.
📖 Wichtige Begriffe kurz erklärt
- Fachwerkbau
- Eine Bauweise, bei der das tragende Gerüst aus Holz besteht und die Zwischenräume mit Lehm, Ziegeln oder anderen Materialien ausgefüllt sind. Fachwerkbauten sind anfällig für Feuchtigkeitsschäden und erfordern eine regelmäßige Wartung.
Verwandte Begriffe: Holzbau, Gefache, Ausfachung - Heizlastberechnung
- Ein Verfahren zur Bestimmung des Wärmebedarfs eines Gebäudes unter Berücksichtigung von Faktoren wie Größe, Dämmung und Klima. Die Heizlastberechnung ist die Grundlage für die Auslegung der Heizungsanlage.
Verwandte Begriffe: Wärmebedarf, Heizleistung, DIN EN 12831 - Grundofen
- Ein gemauerter Ofen, der die Wärme speichert und langsam an den Raum abgibt. Grundöfen zeichnen sich durch eine hohe Effizienz und eine angenehme Strahlungswärme aus.
Verwandte Begriffe: Speicherofen, Kachelofen, Strahlungswärme - Energetische Sanierung
- Maßnahmen zur Verbesserung der Energieeffizienz eines Gebäudes, z.B. durch Dämmung, Fensteraustausch oder Heizungserneuerung. Die energetische Sanierung kann den Energieverbrauch und die Heizkosten senken.
Verwandte Begriffe: Wärmedämmung, Energieausweis, KfW-Förderung - Brennwertkessel
- Ein Heizkessel, der die Wärme aus den Abgasen nutzt, um den Wirkungsgrad zu erhöhen. Brennwertkessel sind besonders effizient und umweltschonend.
Verwandte Begriffe: Heizkessel, Wirkungsgrad, Abgaswärme - Wärmepumpe
- Eine Heizungsanlage, die Umweltwärme (z.B. aus Luft, Erdreich oder Grundwasser) nutzt, um ein Gebäude zu beheizen. Wärmepumpen sind besonders umweltschonend, benötigen aber Strom für den Betrieb.
Verwandte Begriffe: Umweltwärme, Heizung, COP - DIN EN 12831
- Eine europäische Norm, die das Verfahren zur Heizlastberechnung von Gebäuden beschreibt. Die Norm legt die Grundlagen für die Ermittlung des Wärmebedarfs und die Auslegung der Heizungsanlage fest.
Verwandte Begriffe: Heizlast, Wärmebedarf, Norm
❓ Häufige Fragen (FAQ)
- Welche Raumhöhe ist in Deutschland üblich?
Die Mindestraumhöhe in Wohnräumen beträgt in den meisten Bundesländern 2,40 m. Höhere Raumhöhen werden oft als angenehmer empfunden und können den Wert der Immobilie steigern. Bei Altbauten können jedoch auch niedrigere Raumhöhen vorkommen. - Was ist bei der Sanierung eines Fachwerkhauses zu beachten?
Fachwerkhäuser erfordern spezielle Kenntnisse bei der Sanierung. Wichtig ist, die Konstruktion nicht durch ungeeignete Materialien zu beschädigen. Eine fachgerechte Abdichtung und Belüftung sind entscheidend, um Feuchtigkeitsschäden zu vermeiden. Ich empfehle, einen erfahrenen Fachwerksanierer zu beauftragen. - Wie kann ich den Speicher nachträglich dämmen?
Es gibt verschiedene Möglichkeiten, einen Speicher nachträglich zu dämmen. Beliebt sind Dämmstoffe wie Mineralwolle, Glaswolle oder Zellulose. Die Dämmung kann entweder zwischen den Sparren oder auf dem Speicherboden erfolgen. Achten Sie auf eine ausreichende Dämmstärke, um die Energieeffizienz zu verbessern. - Welche Heizungsart ist für einen Altbau geeignet?
Die Wahl der Heizungsart hängt von verschiedenen Faktoren ab, wie z.B. dem Zustand der Bausubstanz, den verfügbaren Energieträgern und den persönlichen Vorlieben. Moderne Brennwertkessel, Wärmepumpen oder Pelletheizungen können eine gute Wahl sein. Eine individuelle Beratung durch einen Heizungsfachmann ist empfehlenswert. - Wie hoch sind die Sanierungskosten für einen Altbau?
Die Sanierungskosten für einen Altbau können stark variieren. Sie hängen vom Umfang der Sanierungsmaßnahmen, dem Zustand des Gebäudes und den gewählten Materialien ab. Eine detaillierte Kostenschätzung ist unerlässlich, um das Budget realistisch zu planen. - Was bedeutet der Begriff 'Heizlastberechnung'?
Die Heizlastberechnung ist ein Verfahren zur Bestimmung des Wärmebedarfs eines Gebäudes. Sie berücksichtigt Faktoren wie die Größe der Räume, die Dämmung, die Fensterflächen und die geografische Lage. Die Heizlastberechnung ist die Grundlage für die Auslegung der Heizungsanlage. - Welche Fördermöglichkeiten gibt es für die Altbausanierung?
Für die Altbausanierung gibt es verschiedene Fördermöglichkeiten von Bund, Ländern und Kommunen. Gefördert werden beispielsweise energetische Sanierungsmaßnahmen, der Einbau erneuerbarer Energien oder der altersgerechte Umbau. Informieren Sie sich über die aktuellen Förderprogramme bei der KfW oder dem BAFA. - Was ist ein Grundofen?
Ein Grundofen ist ein gemauerter Ofen, der die Wärme über einen längeren Zeitraum speichert und langsam an den Raum abgibt. Er zeichnet sich durch eine hohe Effizienz und eine angenehme Strahlungswärme aus. Grundöfen sind besonders in Altbauten beliebt.
🔗 Verwandte Themen
- Feuchtigkeit im Altbau erkennen und beseitigen
Tipps zur Erkennung von Feuchtigkeitsschäden und Maßnahmen zur Beseitigung. - Dämmung von Altbauten: Welche Materialien sind geeignet?
Informationen über verschiedene Dämmstoffe und ihre Eignung für Altbauten. - Heizungserneuerung im Altbau: Welche Optionen gibt es?
Überblick über verschiedene Heizsysteme und ihre Vor- und Nachteile. - Fördermöglichkeiten für die Altbausanierung
Informationen über aktuelle Förderprogramme und Antragsverfahren. - Schadstoffbelastung in Altbauten: Was ist zu beachten?
Hinweise zur Erkennung und Beseitigung von Schadstoffen in Altbauten.
-
Angebot Grundofen: Erfassungsbogen & Merkblatt für Planung
Gerne erstellen wir Ihnen ein Angebot ...
Gerne erstellen wir Ihnen ein Angebot dazu würden wir Ihnen gerne unseren Erfassungsbogen sowie unser Merkblatt zukommen lassen. Für eine perfekte Planung- und Angebotserstellung benötigen wir mehr Daten. Sie können über unsere Homepage Kontakt mit uns aufnehmen.
Grüße aus Memmingen
Walter Haussmann
OSA-Vertriebs-GmbH -
Zusatzinfo: Kontaktaufnahme für Altbau-Sanierung
Kontakt
Sie haben Post.
MfG
es -
Heizlast Altbau: Grundofen als Alleinheizung ungeeignet
Ihr Haus
lässt sich mit einem einzigen Grundofen (ohne Absorber) definitiv nicht beheizen.
Sie brauchen in jedem Fall eine Heizungsinstallation. Wenn diese als Flächenheizungen ausgeführt werden dann kann der Grundofen mit Absorbern die Erwärmung des Heizwassers übernehmen. -
Alternative Heizung: Pelletsofen zur Unterstützung im Altbau?
-
Heizungsanlage Altbau: Grundofen statt Öl- oder Gasbrenner
Das heißt das nicht unbedingt.
Die Heizungsinstallation brauchen Sie mindestens in den Räumen die vom Grundofen nicht direkt beheizt werden können.
Das warme Wasser kann durchaus der Grundofen liefern.
Einen Öl- oder Gasbrenner (Ölbrenner, Gasbrenner) brauchen Sie daher nicht. -
Grundofen Kosten: Preisfaktoren & Individualisierung – Checkliste
Grundofen - Ihre 3 Antworten!
1. Preis: um genauer ein Preis zu sagen, bräuchte man mehr Infos. Zum Beispiel, ob der Grundofen mit Glasheiztür oder Gusstür, schwarze oder Edelstahl, rund oder flach, ausgelegt werden soll? Welche Leistung der Speicherkern aufbringen soll? usw. Ob der Ofen mit Vollmontage, Teilmontage oder als Bausatz angeboten werden soll?
Man müsste eigentlich den Ofen auf Papier bringen und eine genaue Kalkulation durchführen. Dazu hätte ich auch, wie Herr Hausmann eine Checkliste. Das ist kostenlos und unverbindlich.
2. Zusatzheizung ODER Vollheizung: wie schon Herr Kern erwähnt hatte, kann man mit einem Grundofen keine abgetrennte Räume, bzw. verschiedene Etagen beheizen. Wohin der Grundofen hinstrahlen kann, wird es auch warm. Mit einem Grundofen heizen Sie nicht die Raumluft auf wie mit einem Warmluftkachelofen. Prinzip Sonne!
3. An dem gleichen Schornstein im OGAbk. dürfen Sie noch weitere Öfen mit feste Brennstoff aufstellen (lassen), wenn die Öfen Bauart 1 aufweisen (selbsschließende Ofentür). Wir haben nur solche.
Ein Angebot ist von mir immer kostenlos und unverbindlich. Ein Besuch vor Ort ist ebenfalls kostenlos und der Grundofen wird seit Jahrzehnt immer noch persönlich aus Meisterhand gebaut.
Fordern Sie meine Kreativität! -
📌 Zusammenfassung der Diskussionsbeiträge - Stand: 13.01.2026
Automatisch generierte Ergänzungen einer Künstlichen Intelligenz (KI)📌 Zusammenfassung der Diskussionsbeiträge - Stand: 13.01.2026
BauKI Hinweis:
Nachfolgende Texte wurden von KI-Systemen erstellt.
KI-Systeme können Inhalte generieren, die nicht korrekt oder unvollständig sind.
Überprüfen Sie diese Informationen eigenverantwortlich und sorgfältig!
Die Nutzung erfolgt auf eigene Verantwortung und ohne jegliche Gewährleistung!
Es findet keine Rechts-, Steuer-, Planungs- oder Gutachterberatung statt.
Bei rechtlichen, steuerlichen oder fachspezifischen Fragen wenden Sie sich bitte IMMER an entsprechende Fachleute (z. B. Fachanwalt, Steuerberater, Sachverständige).Hauskauf Altbau: Heizung, Raumhöhe & Sanierung – Was ist wichtig?
💡 Kernaussagen: Bei der Sanierung eines Altbaus sind Raumhöhe, Fachwerk und die Heizungsanlage wichtige Aspekte. Ein Grundofen allein reicht oft nicht zur Beheizung des gesamten Hauses aus. Die Kombination mit einer Flächenheizung und Absorbern kann jedoch eine effiziente Lösung sein. Die Kosten für einen Grundofen hängen stark von der Individualisierung ab.
⚠️️ Wichtiger Hinweis: Laut Heizlast Altbau: Grundofen als Alleinheizung ungeeignet ist ein einziger Grundofen in der Regel nicht ausreichend, um ein ganzes Haus zu beheizen. Eine zusätzliche Heizungsinstallation ist erforderlich, besonders in Räumen, die der Grundofen nicht direkt erreicht.
✅ Empfehlung: Der Beitrag Heizungsanlage Altbau: Grundofen statt Öl- oder Gasbrenner erklärt, dass ein Grundofen durchaus das warme Wasser liefern kann, wodurch ein Öl- oder Gasbrenner möglicherweise überflüssig wird. Dies kann die Energieeffizienz des Altbaus erheblich verbessern.
💰 Kosten: Die Kosten für einen Grundofen variieren stark, wie in Grundofen Kosten: Preisfaktoren & Individualisierung – Checkliste erläutert wird. Faktoren wie Türart (Glas oder Guss), Material (schwarz oder Edelstahl), Form (rund oder flach) und Leistungsfähigkeit des Speicherkerns spielen eine Rolle. Auch der Montagegrad (Vollmontage, Teilmontage oder Bausatz) beeinflusst den Preis.
👉 Handlungsempfehlung: Um ein konkretes Angebot für einen Grundofen zu erhalten, empfiehlt es sich, den Erfassungsbogen und das Merkblatt von OSA-Vertriebs-GmbH anzufordern (siehe Angebot Grundofen: Erfassungsbogen & Merkblatt für Planung). Dies ermöglicht eine präzise Planung und Angebotserstellung unter Berücksichtigung der spezifischen Gegebenheiten des Altbaus.
🔧 Praktische Umsetzung: Eine mögliche Alternative oder Ergänzung zum Grundofen könnte ein Pelletofen sein, wie in Alternative Heizung: Pelletsofen zur Unterstützung im Altbau? angesprochen. Dieser könnte das Obergeschoss zusätzlich beheizen und somit die Heizlast verteilen. Es ist ratsam, verschiedene Heizoptionen zu prüfen, um die optimale Lösung für den Altbausubstanz und die individuellen Bedürfnisse zu finden.
Interne und externe Fundstellen sowie weiterführende Recherchen
Nachfolgend finden Sie eine Auswahl interner Fundstellen und Links zu "Hauskauf, Altbau". Weiter unten können Sie die Suche mit eigenen Suchbegriffen verfeinern und weitere Fundstellen entdecken.
- BAU-Forum - Architekt / Architektur - Hauskauf mit Renovierungsbedarf: Vorgehen, Kosten & Sicherheitsreserve für 1969er Bau?
- … Hauskauf: Renovierungskosten & Vorgehen …
- … Hauskauf, Renovierung, Altbau, Kosten, Sicherheitsreserve, Verkehrswertgutachten, Bausubstanzgutachten, Finanzierung …
- … Altbausanierung, Finanzierung …
- … Hauskauf mit Renovierungsbedarf: Vorgehen, Kosten & Sicherheitsreserve für 1969er …
- … PS: Ich selbst würde schätzen, dass 800 /m² für Renovierung zzgl. Hauskaufpreis als absoluter Endpreis für uns machbar wäre. …
- … Klären Sie mit Ihrer Bank, wie viel Kredit Sie für den Hauskauf und die Renovierung erhalten können. Berücksichtigen Sie dabei auch die Nebenkosten …
- … des Hauskaufs (Grunderwerbsteuer, Notarkosten etc.) und eine ausreichende Sicherheitsreserve. …
- … FördermittelFördermittel sind finanzielle Zuschüsse oder zinsgünstige Kredite, die von staatlichen Stellen oder anderen Organisationen für bestimmte Zwecke gewährt werden, z.B. für die Altbausanierung. Verwandte Begriffe: Zuschuss, Kredit, Subvention. …
- … AltbausanierungDie Altbausanierung …
- … Frage: Welche Fördermittel gibt es für die Altbausanierung?Antwort: Es gibt verschiedene Fördermittel von Bund, Ländern und Kommunen …
- … für die Altbausanierung. Diese können als Zuschüsse oder zinsgünstige Kredite gewährt werden. Informieren Sie sich bei der KfW oder der BAFA. …
- … Frage: Was ist bei der Finanzierung einer Hausrenovierung zu beachten?Antwort: Klären Sie mit Ihrer Bank, wie viel Kredit Sie für den Hauskauf und die Renovierung erhalten können. Berücksichtigen Sie dabei auch die …
- … Nebenkosten des Hauskaufs und eine ausreichende Sicherheitsreserve. …
- … Baugutachten vor dem HauskaufWarum ein Baugutachten vor dem Kauf sinnvoll ist und welche …
- … Finanzierung einer AltbausanierungWelche Finanzierungsmodelle und Fördermöglichkeiten es gibt. …
- … Energetische Sanierung – KfW-Förderung für Altbau-Modernisierung …
- … Hauskauf mit Renovierungsbedarf: Vorgehen, Kosten & Sicherheitsreserve für 1969er Bau …
- … 💡 Kernaussagen: Bei einem Hauskauf mit Renovierungsbedarf ist eine detaillierte Planung unerlässlich. Eine energetische Sanierung …
- … attraktive Förderungen ermöglichen. Dies wird im Beitrag Energetische Sanierung – KfW-Förderung für Altbau-Modernisierung detailliert beschrieben. …
- BAU-Forum - Architekt / Architektur - Hauskauf: Kosten für Gutachter? Welche Art der Begutachtung bei Altbau (1950)?
- … Gutachterkosten Hauskauf: Altbau-Check …
- … Hauskauf geplant? Infos zu Gutachterkosten, Arten der Begutachtung & worauf Sie bei einem Altbau (Bj. 1950) achten müssen. Jetzt informieren! …
- … Hauskauf, Gutachter, Kosten, …
- … Altbau, Begutachtung, Mängel, Bausubstanz, Dachstuhl, Kellerwände …
- … Immobilien, Gutachten, Altbau …
- … Hauskauf: Kosten …
- … für Gutachter? Welche Art der Begutachtung bei Altbau (1950)? …
- … ? Gefahr: Bei Altbauten können versteckte Mängel wie Asbest oder Schimmel vorhanden sein. …
- … Um die Kosten für einen Gutachter bei einem Hauskauf zu bestimmen, sind verschiedene Faktoren zu berücksichtigen. Dazu gehören die Größe …
- … Bei einem Altbau sind besonders folgende Punkte zu beachten: ? Gefahr: Mängel an Kellerwänden, Holzdecken, …
- … Frage: Welche Arten von Gutachten gibt es für einen Hauskauf?Antwort: Es gibt verschiedene Arten von Gutachten, darunter Verkehrswertgutachten, Kurzgutachten und …
- … Frage: Warum ist ein Gutachten bei einem Altbau wichtig?Antwort: Bei Altbauten können versteckte Mängel wie Asbest, Schimmel …
- … Risiken und Kosten zu bewerten. Dies ermöglicht eine fundierte Entscheidung beim Hauskauf. …
- … Checkliste Hauskauf: Worauf Sie achten müssenEine detaillierte Checkliste für den Hauskauf, um …
- … Finanzierung Hauskauf: Tipps und TricksInformationen zur Finanzierung eines Hauskaufs, einschließlich Fördermöglichkeiten und Kreditvergleich. …
- … Altbau sanieren: Kosten und FördermöglichkeitenInformationen zu den Kosten und Fördermöglichkeiten bei der Sanierung eines Altbaus. …
- … Gutachterkosten: Individuelle Angebote für Altbau-Begutachtung …
- … Hauskauf: Gutachter für Altbau (1950) – Kosten & Arten …
- … 💡 Kernaussagen: Bei einem Hauskauf, besonders …
- … bei einem Altbau von 1950, ist die Wahl des richtigen Gutachters entscheidend. Die Kosten für ein Gutachten hängen stark von den individuellen Wünschen und dem Umfang der gewünschten Begutachtung ab. Es empfiehlt sich, vorab eigene Vorstellungen zu Um- oder Ausbauten zu formulieren, um gezielte Angebote von Gutachtern einzuholen. Die frühzeitige Einbindung eines Gutachters kann vor unerwarteten Mängeln und Risiken schützen. …
- … 💰 Kosten: Die Honorare für Gutachter variieren je nach Beratungsbedarf und Umfang der Begutachtung. Gutachterkosten: Individuelle Angebote für Altbau-Begutachtung rät, mehrere Angebote einzuholen, um die Kosten zu vergleichen …
- … ⚠️ Wichtiger Hinweis: Vor dem Hauskauf sollte die Bausubstanz gründlich geprüft werden, insbesondere bei Altbauten. Achten Sie auf potenzielle Mängel im Dachstuhl und an …
- … sinnvolle Investition, um Risiken zu minimieren und eine fundierte Entscheidung beim Hauskauf zu treffen. Die Expertise des Gutachters kann vor teuren Überraschungen bewahren …
- BAU-Forum - Außenwände und Fassaden - Risse in Klinkerfassade: Ursachen, Risiken & Sanierungskosten für Haus von 1968?
- … Klinkerfassade, Risse, Fassadenrisse, Setzrisse, Sanierung, Ursachen, Risiken, Hauskauf …
- … Setzungen: Unterschiedliche Setzungen von Altbau und Anbau können zu Spannungen und Rissen führen. …
- … 🔴 Klinkerfassade: Hauskauf ohne Fachmann – Grob fahrlässig! …
- … am falschen Ende. Einen Hauskauf mit Hilfe eines Internetforum abwickeln zu wollen ist bei einer so wichtigen Lebensentscheidung und der daraus folgenden finanziellen Verpflichtungen grob fahrlässig. …
- … 💡 Kernaussagen: Die Diskussion dreht sich um die Beurteilung von Rissen in einer Klinkerfassade eines Hauses aus dem Jahr 1968. Es wird betont, wie wichtig die Einschätzung durch einen Fachmann vor dem Hauskauf ist, um Risiken und Sanierungskosten korrekt einzuschätzen. Setzrisse nach so …
- … 🔴 Wichtiger Hinweis: Im Beitrag 🔴 Klinkerfassade: Hauskauf ohne Fachmann – Grob fahrlässig! wird eindringlich davor gewarnt, sich bei einer …
- … so wichtigen Entscheidung wie einem Hauskauf ausschließlich auf Informationen aus einem Internetforum zu verlassen. Die finanziellen Verpflichtungen …
- BAU-Forum - Außenwände und Fassaden - Asbestsanierung Okal-Haus (Bj. 74): Kosten pro m² für Fassade & Holzverschalung?
- … Asbestsanierung, Okal Haus, Asbestzementplatten, Fassade, Kosten, Sanierung, Holzverschalung, Altbau, Schadstoffe …
- … Asbestsanierung, Fassadensanierung, Altbausanierung, Schadstoffsanierung, Immobilienkauf …
- … Asbest erkennen im AltbauHinweise und typische Anwendungsbereiche von Asbest in älteren Gebäuden. …
- … Asbestsanierung: Beratungspflichten & Risiken beim Hauskauf …
- … Wer ohne einen sachverständigen Berater zum Hauskauf schreitet, der ist leichtsinnig. Das finanzielle Risiko ist viel größer als …
- … (z.B. Formaldehyd-Belastung) zu ermitteln. Beachten Sie die Hinweise zur Beratungspflicht beim Hauskauf im Beitrag Asbestsanierung: Beratungspflichten & Risiken beim Hauskauf. …
- BAU-Forum - Außenwände und Fassaden - Lücke zwischen Doppelhaushälften: Ursachen, Risiken & Sanierungskosten?
- BAU-Forum - Außenwände und Fassaden - U-Wert Außenwand berechnen: Dämmung lohnt sich? Kosten, Aufbau & Anleitung
- BAU-Forum - Außenwände und Fassaden - Fenstererneuerung Altbau: WDVS sinnvoll? Fassadenänderung, Kosten & Wandaufbau prüfen!
- … Fenstererneuerung Altbau: WDVSAbk.? …
- … Fenstererneuerung im Altbau (Bj. 1955): Ist ein WDVS sinnvoll? Was bei Fassadenänderung, Kosten & …
- … Fenstererneuerung, Altbau, WDVSAbk., Fassadenänderung, Wandaufbau, Kosten, Wärmedämmung, Fenster vergrößern, Baugenehmigung, Fassadensanierung …
- … Fenster, Altbausanierung, Wärmedämmung, Fassade, Baurecht …
- … Fenstererneuerung Altbau: WDVS sinnvoll? Fassadenänderung, …
- … Ich empfehle bei der Fenstererneuerung im Altbau (Baujahr 1955) folgende Punkte zu beachten: …
- … Fensteraustausch im Altbau: Worauf achten?Informationen zu den Besonderheiten beim Fensteraustausch in älteren Gebäuden. …
- … Energieberatung Altbau: Individuelle Beratung statt BAFA-Förderung …
- … RAL-Montage: Planer für Fenstererneuerung im Altbau beauftragen …
- … Kostenfalle Altbau: Renovierungskosten vs. Energiesparmaßnahmen …
- … Viele Menschen stürzen sich in Schulden beim Hauskauf, dann nochmal in die kommenden, zweifelhaften Energiesparmaßnahmen. …
- … Heizkostenoptimierung: Heizungsform bei Altbausanierung beachten …
- … WDVSAbk. im Altbau: U-Wert, Materialwahl & Schimmelrisiko prüfen! …
- … Energieberater Altbau: U-Wert-Ermittlung mit Wärmebildkamera! …
- … EnEVAbk. Kritik: Wirtschaftlichkeit von WDVSAbk. im Altbau fraglich …
- … WDVSAbk.-Dämmstoffdicken: Zerstörung der Bausubstanz im Altbau? …
- … Gesamtkonzept: Architekt für Altbau-Sanierung & WDVSAbk.-Planung …
- … Heizkosten Altbau: Jahresverbrauch Vorbesitzer prüfen! …
- … WDVSAbk. Hinterfragen: Alfred Eisenschink zur Ökofalle im Altbau …
- … Fenstererneuerung im Altbau: WDVSAbk. sinnvoll? Kosten, Fassadenänderung & Wandaufbau …
- … um die Sinnhaftigkeit eines WDVSAbk. (Wärmedämmverbundsystems) bei der Fenstererneuerung in einem Altbau von 1955. Es werden die Kosten, mögliche Fassadenänderungen und der Wandaufbau …
- … Energieberater ist ratsam, um fundierte Entscheidungen treffen zu können (siehe Energieberater Altbau: U-Wert-Ermittlung mit Wärmebildkamera!). …
- … den Einbau neuer Fenster empfohlen (siehe RAL-Montage: Planer für Fenstererneuerung im Altbau beauftragen). Es gibt unterschiedliche Meinungen zur Wirtschaftlichkeit von WDVSAbk., wobei einige …
- … und langen Amortisationszeiten kritisieren (siehe EnEVAbk. Kritik: Wirtschaftlichkeit von WDVSAbk. im Altbau fraglich). Die Dena-Sanierungsstudie und die Kritik der GdW (Bundesverband deutscher Wohnungs- …
- … 👉 Handlungsempfehlung: Es wird empfohlen, ein Gesamtkonzept für die Altbausanierung zu erarbeiten und einen Architekten für die Planung und Ausschreibung …
- … zu beauftragen (siehe Gesamtkonzept: Architekt für Altbau-Sanierung & WDVSAbk.-Planung). Vor der Entscheidung für oder gegen ein WDVS …
- BAU-Forum - Außenwände und Fassaden - Risse in Fassade: Ursachen, Risiken & Kosten für Sanierung? Statiker notwendig?
- BAU-Forum - Außenwände und Fassaden - Deckenschubrisse im Putz: Ursachen, Gefahren & Sanierungskosten beim Hauskauf?
- … Deckenschubrisse, Putzrisse, Hauskauf, Baugutachter, Sanierungskosten, Ursachen, Deckenrisse, Statik …
- … im Putz: Ursachen, Gefahren & Sanierungskosten beim Hauskauf? …
- … wir sammeln gerade Informationen für eine Hauskaufentscheidung. Wir sind absolute Einsteiger in dieses Thema. Ein Problem …
- … Soll ich vor dem Hauskauf zwingend einen Gutachter bestellen? …
- … Deckenschubrisse im Putz als potenziell kritisch, besonders im Hinblick auf einen Hauskauf. Es ist wichtig, die Ursachen und Auswirkungen genau zu analysieren. …
- … 👉 Handlungsempfehlung: Lassen Sie die Risse vor dem Hauskauf von einem Fachmann begutachten, um die Ursache und das Ausmaß der …
- … Einschätzung der notwendigen Sanierungsmaßnahmen geben. Dies ist besonders wichtig vor einem Hauskauf. …
- … Baugutachten vor dem HauskaufWarum ein Baugutachten sinnvoll ist und worauf man achten sollte. …
- … Probleme bei AltbautenErkennung und Behebung von statischen Mängeln in älteren Gebäuden. …
- … Update: Statik-Details zum Hauskauf beim Architekten erfragen …
- … 👉 Handlungsempfehlung: Vor dem Hauskauf sollte unbedingt ein Baugutachter hinzugezogen werden, um die Ursachen der Deckenschubrisse …
- BAU-Forum - Außenwände und Fassaden - Schwarze Fassadenplatten am Haus (Bj. 1980): Material erkennen & Risiken einschätzen?
- … schwarze Fassadenplatten, Fassadenverkleidung, Baujahr 1980, Materialanalyse, Asbest, Schiefer, Faserzement, Fassadensanierung, Hauskauf …
- … Fassade, Baustoffe, Sanierung, Immobilienkauf, Altbausanierung …
- … Förderprogramme für energetische SanierungÜberblick über aktuelle Fördermöglichkeiten für die Sanierung von Altbauten. …
- … Schadstoffuntersuchung beim HauskaufWarum eine Schadstoffuntersuchung vor dem Kauf sinnvoll …
- … 👉 Handlungsempfehlung: Vor dem Hauskauf sollte eine Materialanalyse der Fassadenverkleidung durchgeführt werden, um das Vorhandensein von …
Interne Suche verfeinern: Weitere Suchbegriffe eingeben und mehr zu "Hauskauf, Altbau" finden
Geben Sie eigene Suchbegriffe ein, um die interne Suche zu verfeinern und noch mehr passende Fundstellen zu "Hauskauf, Altbau" oder verwandten Themen zu finden.
Interne Suche: Suchbegriffe eingeben und mehr zu "Hauskauf, Altbau" finden
Geben Sie Suchbegriffe ein, um die interne Suche zu nutzen und passende Fundstellen zu "Hauskauf, Altbau" oder verwandten Themen zu finden.
Externe Fundstellen und weiterführende Recherchen
Nachfolgende Suchlinks können Ihnen dabei helfen, ähnliche Fragestellungen zu erkunden:
Suche nach: Hauskauf Altbau: Raumhöhe, Fachwerk, Heizung – Was beachten bei Sanierung & Kosten?
Google
Bing
AOL
DuckDuckGo
Ecosia
Qwant
Startpage
Yahoo!
Suche nach: Hauskauf Altbau: Raumhöhe, Heizung, Sanierung
Google
Bing
AOL
DuckDuckGo
Ecosia
Qwant
Startpage
Yahoo!
Suche nach: Hauskauf, Altbau, Raumhöhe, Fachwerk, Heizung, Sanierung, Kosten, Eigenleistung, Energieeffizienz, Kaminofen
Google
Bing
AOL
DuckDuckGo
Ecosia
Qwant
Startpage
Yahoo!


