Wir wollen in etwa 2-3 Jahren auf einem vorhandenen Baugrundstück (Region Hannover/Baurecht NDS) bauen.
Noch ist keine Entscheidung gefallen ob Massiv oder als Holzrahmenbau gebaut werden soll, wobei ich eher zu letzterem tendiere
Folgende Vorgaben bestehen von Seiten der Stadt:
- 1 1/2 geschossige Bebauung
- Baugrenze wie in der Skizze eingezeichnet (dunkelgrüner Bereich im Unteren Teil darf nicht bebaut werden
- Versickerung des Niederschlagswassers
- Aufgrund der Grundflächenzahl dürfte theoretisch (nach Voranfrage beim Bauamt) der gesamte Bereich oberhalb der Baugrenze (abzAbk.üglich 3 m Grenzabstand natürlich) bebaut /versiegelt werden.
- rotes Dach
- roter Klinker oder weißer-Sandfarbener Putz
- Sattel- oder Krüppelwalmdach, Neigung ca. 38-45 °, beide Seiten identische Neigung)
- Nachweis von 1,75 Stellplätzen pro Wohneinheit
- Grundstück liegt in einer Einflugschneise, daher müssen Wohn und Schlafräume über automatische Belüftung verfügen.
Also soweit nichts besonders problematisches
Unsere eigenen Anforderungen sind:
- Das EGAbk. soll eine vollständige, bedingt Rolligeeignete 2-Zimmerwohnung mit HWR darstellen
- Schlafbereich räumlich vom Wohnen getrennt (Vorflur als Zugang zum Bad gleichzeitig Ankleidebereich)
- Wohnfläche EG <= 100 m²
- vorhandene Einbauküche soll übernommen werden
- unter dem Dach sollen 2 Kinderzimmer, ein kleines Arbeitszimmer und ein etwas größeres Bad entstehen, dieser Bereich kann später als eigenständige Einliegerwohnung umgebaut werden)
- Doppelcarport mit Abstellraum (ca. 6x8 m)
- große Einzelgarage (soll auch zum Basteln/als Kellerersatz dienen 😉 ) von etwa 4,5x7,5 m
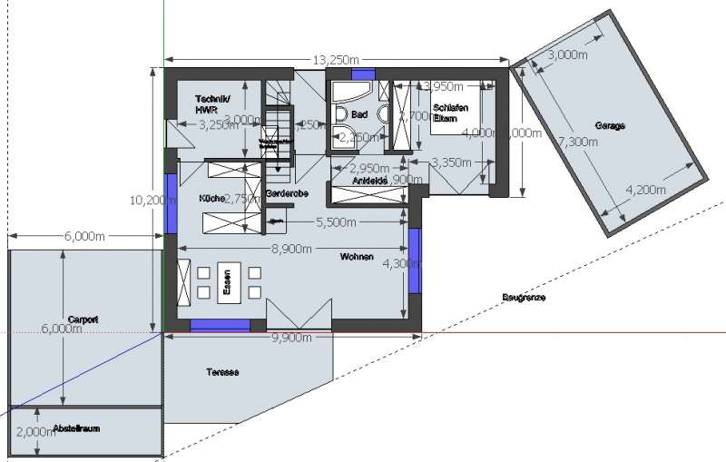
Da inzwischen die CAD-Bastelleien etwas ausgereiftere Formen annehmen würde ich gerne mal ein paar unvoreingenommene Meinungen hören.
Deshalb nachfolgend mal eine Ansicht des Erdgeschosses oder der groben Grundstücksplanung:
Grundriss EG (genordet):
[IMG]
Grundstück (Ansicht Vogelperspektive):
[IMG]
Würde mich über Ihre Kritik freuen, insbesondere mache ich mir etwas Sorgen wegen des Technik/Hauswirtschaftsraumes
Etwas getrickst habe ich beim HWR ja schon indem dort ein Durchbruch in den toten Raum unter der Treppe geplant ist woduch eine Nische für Trockner und Waschmaschine entsteht
Dennoch kommt mir der HWR mit seinen 3x3,25 m Grundfläche schon fast etwas zu klein vor da dort neben der Therme samt großem Pufferspeicher (Solarthermie), dem Gasanschluss und dem Sicherungskasten auch noch die Zentrale der kontrollierten Be- und Entlüftungsanlage (Belüftungsanlage, Entlüftungsanlage) untergebracht werden müssen.
Hierfür stehen etwa 3,25 Meter Wandfläche zur Verfügung (geschätzte Tiefe etwa 1,2 m?!). Kommt man mit diesem Platz aus?
Freue mich auf eure, hoffentlich konstrruktive, Kritik.
Gruß A.K.



