wir bauen gerade ein Einfamilienhaus und planen nun den Garten / Pflasterflächen ...
Im B-Plam steht folgendes:
Als zulässiges Höchstmaß der baulichen Nutzung wird gemäß § 19 (4) Baunutzungsverordnung (BauNVOAbk.) eine Grundflächenzahl von GRZAbk. 0,30 festgesetzt. Diese GRZ ermöglicht jeweils in Relation zur Größe der Grundstücke eine angemessene Bebauung mit Häusern von zwischen 120 und 200 m² Größe. Die Zahl der Vollgeschosse wird auf max. 1 begrenzt. So können die von jungen Familien bevorzugten Einfamilienhäuser entstehen, die im Programm "Junges Wohnen" vorgesehen sind.
Eine Überschreitung der GRZ ist nach den Bestimmungen des § 19 (4) der Baunutzungsverordnung (BauNVO) grundsätzlich (um maximal 50 %) zur Errichtung der
notwendigen Zufahrten, Stellplätze und Nebenanlagen zulässig und im Rahmen der Baugenehmigungsverfahren zu behandeln. Darüber hinaus fließen Carports, Garagen und Nebenanlagen, die mit begrünten Dächern ausgeführt werden, nicht in die GRZ-Berechnung nach § 19 (4) Baunutzungsverordnung (BauNVO) ein.
Teilversiegelte Zufahrten und nicht überdachte Stellplätze, deren Versiegelungsgrad 60 % nicht übersteigt, werden mit dem Faktor 0,5 auf die GRZ angerechnet.
Eckdaten:
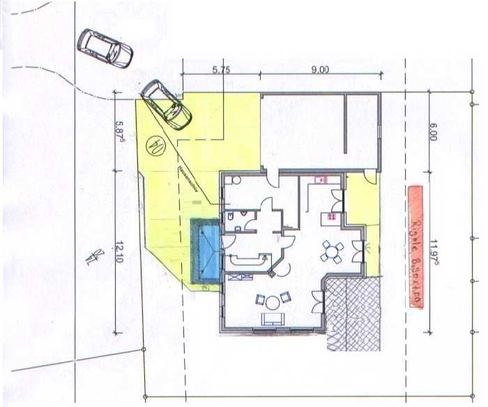
- Grundstücksgröße 560 m²
- Fläche Haus 110 m²
- Fläche Garage 54 m²
=> somit liegt der GRZ-Wert bei 0,29 (also noch gerade innerhalb der 0,3)
Damit wir aber in die Garage Ein- und Ausfahren (Einfahren, Ausfahren) können, müssen wir vor dem Haus/Garage ca. 80 m² pflastern.
=> Gehen wir richtig der Annahme, dass diese Fläche nur mit 50 % angerechnet wird, wenn der Versiegelungsgrad unter 60 % liegt?
=> wann wir ein Versiegelungsgrad von unter 60 % erreicht? Kann man hier einen ganz normalen Pflaster nehmen oder muss hier ein spezieller Öko-Pflaster genommen werden?
=> Berechnung bis hier: 164 m² (Haus/Garage) + 40 m² (Pflaster) = 204 m² => entspricht 0,364 GRZ (max. 0,45 erlaubt)
Hinter dem Haus wollen wir auch noch etwas pflastern bzw. Terrassen-Platten anbringen. Die Gesamtfläche soll sich ca. auf 40 m² belaufen.
=> wenn wir das System richtig durchschaut haben, dann muss diese Fläche mit 100 % angerechnet werden, da nur teilversiegelte Zufahrten und nicht überdachte Stellplätze ggf. mit dem Faktor 0,5 anzurechnen sind, oder?
=> Berechnung: 204 m² + 40 m² = 244 m² (=> 0,436 GRZ)
Könnt ihr uns bitte mitteilen, ob unsere Annahmen korrekt sind und wann der Versiegelungsgrad von 60 % unterschritten wird.
Vielen Dank!
Gruß
Karin & Thomas
