wir sind in der Absicht, in Köln / NRW unser bestehendes Haus im Erdgeschoss Behindertengerecht auszubauen. Wir haben bereits in einer Bürgerberatung des örtlichen Bauamtes vorab versucht zu klären, wie die Erfolgschancen aussehen, haben aber teilweise unterschiedliche Aussagen erhalten, welche final erst im Baugenehmigungsverfahren geklärt werden können. Wir haben theoretisch ein Plan A um den es hier in meiner Anfrage gehen soll.
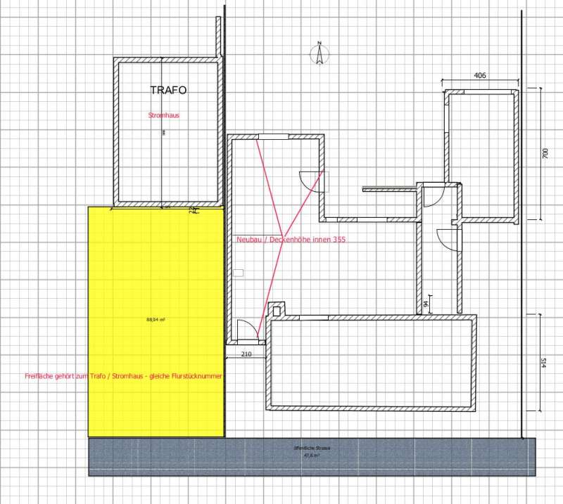
1) Unser Grundstück grenzt an ein Grundstück einer Wohnungsbaugesellschaft. Dieses Flurstück wurde in den 60 ern mit einem Stromverteilerhaus bebaut was ohne die Einhaltung einer Abstandsfläche an unser Grundstück gebaut wurde. So wie ich erfahren habe zählt so ein Objekt ebenfalls zu einem Privilegierten Gebäude - wie z.B. eine Garage, Gewächshaus etc. Dies habe ich jedoch aus hören sagen erfahren und daher die erste Frage: Ist es ein Privilegiertes Gebäude, da es sich ggf. auf die nachfolgenden Fragen auswirkt.
2) Es bestehen keine Baulasten auf den Gebäuden was für die Wohnungsbaugesellschaft wichtig ist, um uns die entsprechende Angrenzer-Zustimmung zu Unterschreiben. Da das Stromhaus nun vor ca. 60 Jahren erbaut wurde, existiert dazu keine Angrenzer-Zustimmung unsererseits aus damaliger Zeit. Nun habe ich vom Amt 2 Versionen einer Vorlage zu einer Angrenzer-Zustimmung bekommen. In einer Version, gestehe ich dem Nachbarn Zug um Zug zu, sollte er einmal anbauen / umbauen, dass er ebenfalls im vorderen Bereich seines Grundstücks (das Stromhaus liegt ca. 9 Meter hinter einer Freifläche von der öffentlichen Straße aus ) ein Grenzanbau direkt an mein Grundstück erlaube ohne die Einhaltung von Abstandsflächen. In der anderen Version der Angrenzer-Zustimmung des Bauamtes zur steht dieser Text nicht drin. Da wir nur im Erdgeschoss anbauen und bei einer späteren eventuellen Erweiterung des Wohnhauseses der Wohnungsbaugenossenschaft, welches neben dem Stromhaus steht, würde mir im oberen Geschoss durch ein Anbau derer, alles Licht im Wohnraum der oberen Etagen genommen. Welche Version soll / muss / kann ich nutzen?
3 ) In unserem Plan wird ca. 5 Meter nach hinten in Richtung Garten gebaut, der von der Straße nicht einsehbar ist. Das Stromhaus hat eine Deckenhöhe von 2,65 m die wir um ca. 1 Meter überragen würden, um im Wohnbereich keine Treppen etc. zu haben (Behindertengerecht . Sprich die innere Deckenhöhe wäre ca. 1 Meter höher als der Abschluss des Stromhauses. Dazu würde dann natürlich noch ein Dach dazu zukommen.
Ich bedanke mich im Voraus für die Antworten auf meine Fragen. Wahrscheinlich werden sich noch weitere Fragen aus den Antworten resultieren.
Im Anhang habe ich einen Plan hochgeladen in der Hoffnung dass dieser Verständlich ist.
Wie gesagt bereits jetzt schon vielen Dank für Ihre / Eure Antworten
Gruß
