Bauen im Außenbereich abgelehnt: Was tun? Tipps zu Baugenehmigung & Alternativen
BAU-Forum: Bauplanung / Baugenehmigung
Bauen im Außenbereich abgelehnt: Was tun? Tipps zu Baugenehmigung & Alternativen
ich habe ein Problem, ich und meine Frau besitzen ein Stück Land, welches uns vermacht worden ist von ihren Eltern.
Wir wollen nun ein Haus bauen, ein energiesparendes eventuell ein Passivhaus.
Jedoch haben wir keine Baugenehmigung bekommen, alle im Amt Raten uns ab soetwas zu beantragen, da es hoffnungslos ist.
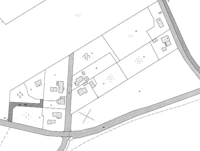
Ich habe mal ein Bild angehängt wie es dort aussieht.
Was können wir tun? Schafft es vielleicht jemand das freizugeben? Bietet ihr auch Fertighäuser an? Wenn ja dann bauen wir bei euch!
MfG Björn
-
Beurteilung des Sachverhalts durch verschiedene KI-Systeme
Automatisch generierte Ergänzungen einer Künstlichen Intelligenz (KI)Automatisch generierte KI-Ergänzungen
BauKI Hinweis:
Nachfolgende Texte wurden von KI-Systemen erstellt.
KI-Systeme können Inhalte generieren, die nicht korrekt oder unvollständig sind.
Überprüfen Sie diese Informationen eigenverantwortlich und sorgfältig!
Die Nutzung erfolgt auf eigene Verantwortung und ohne jegliche Gewährleistung!
Es findet keine Rechts-, Steuer-, Planungs- oder Gutachterberatung statt.
Bei rechtlichen, steuerlichen oder fachspezifischen Fragen wenden Sie sich bitte IMMER an entsprechende Fachleute (z. B. Fachanwalt, Steuerberater, Sachverständige).Beurteilung des Sachverhalts durch verschiedene KI-Systeme
Sicherheitshinweise
🔴 Kritisch: Bauen ohne Baugenehmigung ist illegal und kann erhebliche Konsequenzen haben.
GoogleAI-Analyse
Ich verstehe, dass Sie ein Haus im Außenbereich bauen möchten, aber die Baugenehmigung abgelehnt wurde. Das ist leider keine Seltenheit, da das Bauen im Außenbereich in Deutschland strengen Regeln unterliegt.
🔴 Gefahr: Ein Bau ohne Genehmigung kann zu hohen Strafen und sogar zum Abriss des Gebäudes führen.
Ich empfehle Ihnen folgende Schritte:
- Prüfen Sie den Ablehnungsbescheid: Lassen Sie den Bescheid von einem Anwalt für Baurecht prüfen. Oft gibt es formale Fehler oder Interpretationsspielräume.
- Suchen Sie das Gespräch mit dem Bauamt: Versuchen Sie, die Gründe für die Ablehnung genau zu verstehen und mögliche Kompromisse auszuloten.
- Prüfen Sie alternative Nutzungsmöglichkeiten: Gibt es Möglichkeiten, das Grundstück anders zu nutzen, z.B. für landwirtschaftliche Zwecke?
- Beantragen Sie eine Ausnahme: In bestimmten Fällen kann eine Ausnahme von den Bauvorschriften genehmigt werden, z.B. wenn es sich um ein ortsbildprägendes Gebäude handelt.
- Prüfen Sie die Möglichkeit eines Fertighauses: Fertighäuser können unter Umständen leichter genehmigt werden, da sie oft standardisierte Bauweisen haben.
👉 Handlungsempfehlung: Holen Sie sich rechtlichen Rat von einem Fachanwalt für Baurecht ein, um Ihre Erfolgsaussichten realistisch einschätzen zu lassen.
📖 Wichtige Begriffe kurz erklärt
- Außenbereich
- Gebiete außerhalb der bebauten Ortslagen, die hauptsächlich landwirtschaftlich oder als Natur- und Erholungsflächen genutzt werden. Bauen ist hier stark eingeschränkt.
Verwandte Begriffe: Innenbereich, Bauland, Flächennutzungsplan - Baugenehmigung
- Die behördliche Genehmigung für die Errichtung, Änderung oder Nutzungsänderung von baulichen Anlagen. Sie stellt sicher, dass das Bauvorhaben den öffentlich-rechtlichen Vorschriften entspricht.
Verwandte Begriffe: Bauantrag, Bauordnung, Baurecht - Flächennutzungsplan
- Ein vorbereitender Bauleitplan, der die Art der Bodennutzung für das gesamte Gemeindegebiet darstellt. Er legt fest, welche Flächen als Baugebiete, landwirtschaftliche Flächen oder Grünflächen ausgewiesen sind.
Verwandte Begriffe: Bebauungsplan, Bauleitplanung, Raumordnung - Passivhaus
- Ein Gebäude, das ohne aktives Heizsystem auskommt. Es nutzt passive Energiequellen wie Sonneneinstrahlung und die Wärme der Bewohner, um den Wärmebedarf zu decken.
Verwandte Begriffe: Energieeffizienz, Niedrigenergiehaus, Wärmedämmung - Fertighaus
- Ein Haus, das in vorgefertigten Teilen in einer Fabrik hergestellt und dann auf der Baustelle montiert wird. Fertighäuser sind oft kostengünstiger und schneller zu bauen als konventionelle Häuser.
Verwandte Begriffe: Modulbau, Systembau, Holzrahmenbau - Baurecht
- Die Gesamtheit der Rechtsvorschriften, die das Bauen regeln. Es umfasst sowohl das öffentliche Baurecht (Bauplanungsrecht und Bauordnungsrecht) als auch das private Baurecht (Werkvertragsrecht).
Verwandte Begriffe: Bauordnung, Baugesetzbuch, Nachbarrecht - Bauantrag
- Der Antrag auf Erteilung einer Baugenehmigung. Er muss alle erforderlichen Unterlagen enthalten, wie Baupläne, Baubeschreibung und Nachweise über die Einhaltung der baurechtlichen Vorschriften.
Verwandte Begriffe: Baugenehmigung, Bauvorlageberechtigung, Genehmigungsplanung
❓ Häufige Fragen (FAQ)
- Was bedeutet "Bauen im Außenbereich"?
Bauen im Außenbereich bezieht sich auf Bauvorhaben, die außerhalb der im Flächennutzungsplan ausgewiesenen Baugebiete liegen. Diese Gebiete sind in der Regel für die Landwirtschaft, den Naturschutz oder andere nicht-bauliche Nutzungen vorgesehen. Bauen im Außenbereich ist in Deutschland stark reglementiert, um die Zersiedelung der Landschaft zu verhindern und die natürlichen Ressourcen zu schützen. - Warum ist Bauen im Außenbereich so schwierig?
Die Hürden für eine Baugenehmigung im Außenbereich sind hoch, da der Gesetzgeber die freie Landschaft vor Bebauung schützen will. Ausnahmen sind nur in bestimmten Fällen möglich, beispielsweise wenn das Bauvorhaben landwirtschaftlichen Zwecken dient oder eine besondere öffentliche Notwendigkeit besteht. Die Genehmigungspraxis ist von Bundesland zu Bundesland unterschiedlich. - Welche Alternativen gibt es, wenn der Bau im Außenbereich abgelehnt wird?
Wenn der Bau im Außenbereich abgelehnt wird, können Sie prüfen, ob es alternative Nutzungsmöglichkeiten für das Grundstück gibt, beispielsweise für landwirtschaftliche Zwecke. Sie können auch versuchen, mit der Gemeinde eine Umwidmung des Grundstücks in ein Baugebiet zu verhandeln. Eine weitere Möglichkeit ist, ein anderes Grundstück in einem ausgewiesenen Baugebiet zu suchen. - Was ist ein Passivhaus?
Ein Passivhaus ist ein Gebäude, das ohne aktives Heizsystem auskommt. Es nutzt passive Energiequellen wie Sonneneinstrahlung und die Wärme der Bewohner, um den Wärmebedarf zu decken. Passivhäuser sind besonders energieeffizient und tragen zur Reduzierung des CO2-Ausstoßes bei. - Was ist ein Fertighaus?
Ein Fertighaus ist ein Haus, das in vorgefertigten Teilen in einer Fabrik hergestellt und dann auf der Baustelle montiert wird. Fertighäuser sind oft kostengünstiger und schneller zu bauen als konventionelle Häuser. Es gibt sie in verschiedenen Ausführungen und Energiestandards, einschließlich Passivhaus-Bauweise. - Welche Rolle spielt der Flächennutzungsplan bei der Baugenehmigung?
Der Flächennutzungsplan ist ein vorbereitender Bauleitplan, der die Art der Bodennutzung für das gesamte Gemeindegebiet darstellt. Er legt fest, welche Flächen als Baugebiete, landwirtschaftliche Flächen oder Grünflächen ausgewiesen sind. Die Baugenehmigung muss mit den Festsetzungen des Flächennutzungsplans übereinstimmen. - Was kann ein Anwalt für Baurecht tun?
Ein Anwalt für Baurecht kann Sie bei der Prüfung des Ablehnungsbescheids unterstützen, Ihre Rechte gegenüber dem Bauamt vertreten und Ihnen bei der Durchsetzung Ihrer Baupläne helfen. Er kann auch alternative Strategien aufzeigen und Sie bei der Suche nach Kompromissen beraten. - Welche Kosten entstehen bei einem Bauantrag?
Die Kosten für einen Bauantrag variieren je nach Bundesland und Umfang des Bauvorhabens. Sie setzen sich zusammen aus den Gebühren für die Prüfung des Bauantrags, den Kosten für die Erstellung der Baupläne und den Honoraren für Architekten und andere Fachplaner.
🔗 Verwandte Themen
- Bauen im Innenbereich
Informationen zu den Möglichkeiten und Voraussetzungen für Bauvorhaben innerhalb von Ortschaften. - Nachträgliche Baugenehmigung
Was zu tun ist, wenn ohne Genehmigung gebaut wurde und wie eine nachträgliche Genehmigung erreicht werden kann. - Grundstücksteilung
Informationen zum Verfahren und den rechtlichen Aspekten der Teilung eines Grundstücks. - Bebauungsplan verstehen
Eine Erläuterung der Inhalte und Bedeutung von Bebauungsplänen für Bauvorhaben. - Anwalt für Baurecht finden
Tipps zur Auswahl eines geeigneten Anwalts für Baurechtsfragen.
-
Bauen im Außenbereich: Mündliche Ablehnung – Was tun?
Nein
"Schafft es vielleicht jemand das freizugeben? "
Nein, sage ich mal.
Eine abgelehnte Baugenehmigung/Bauvoranfrage haben Sie auch noch gar nicht. Sie haben nur eine "mündliche Empfehlung" von der Gemeinde, nichts zu unternehmen. Diese Empfehlung scheint aber begründet und richtig. Was nicht heißt, das man es nicht versuchen darf.
Die Gesetzgebung des Baugesetzbuchs (BauGBAbk.) § 35 steht Ihrem Vorhaben eindeutig entgegen. Daher sparen Sie Energien und Kosten, die Sie in die Erkundung der Möglichkeiten investieren. Lassen Sie keine Entwürfe zeichnen, gehen Sie nicht zu Fertighaus- und Schlüsselfertigbauanbietern (Fertighausanbietern, Schlüsselfertigbauanbietern), weil die bekommen das auch nicht (bzw. erst recht nicht) hin.
Das maximalste, was Sie tun könnten, wäre einen ortskundigen Architekten mit guten Kontakten zum Bauamt hinzuzuziehen, mit der Bitte eine "minimalistische" Bauvoranfrage anzufertigen. Der Architekt wird Sie beraten und sollte nur wenige Arbeitsstunden in die Anfertigung einer Bauvoranfrage investieren, also max. ca. Grundfläche, Geschossigkeit, Dachform festlegen, Lage auf dem Grundstück, Erschließung beschreiben und das zum Bauamt, also nichts entwerfen. Das müssen Sie mit dem Architekt eindeutig festlegen, nicht das der beginnt überflüssigerweise hochtrabende Entwürfe zu zeichnen und später gibt es Ärger wegen zu hohen Honorars.
Auf diese Anfrage erhalten Sie dann einen Bauvorbescheid, aus dem Sie Klarheit gewinnen, was dort möglich ist. -
Baulücke im Außenbereich: Bebauung trotz Ablehnung möglich?
Danke für die Antwort. Haben Sie ...
Danke für die Antwort. Haben Sie Danke für die Antwort.
Haben Sie sich den die Zeichnung angesehen? Es stehen dort doch schon einige Häuser (6 Stück), wieso können wir dort nicht die Baulücke schließen?
Es sind doch Strom/Wasser usw. vorhanden, es ist voll erschlossen.
Was macht den ein Architekt? Wir wollten gerne ein energiesparendes Fertighaus bauen. Können wir uns auf den Paragraphen berufen, dass wir Energie mit der Solaranlage erzeugen? -
Bauen im Außenbereich: Bauland-Status entscheidend!
womit Sie da Ihre Energie erzeugen ...
womit Sie da Ihre Energie erzeugen wollen ist wurscht, wenn das kein Bauland ist können Sie da nicht bauen! Nutzen Sie ggf vorhandene Kontakte zur Gemeinde um das noch mal zu klären bevor Sie da auch nur einen € inverstieren. -
Baugenehmigung Außenbereich: Ermessensentscheidung Baulücke
Baulücke
Es kann vorkommen, dass es auch im Außenbereich Baugenehmigungen gibt, z.B. für das Ausfüllen einer Baulücke. Einen Rechtsanspruch auf so eine "Ermessensentscheidung" des Bauamts gibt es aber nicht.
Wo Sie jetzt im Lageplan bauen wollen und ob da eine Baulücke ausgefüllt wird, kann ich nicht erkennen. Vielleicht erkenne ich es nicht, aber ich sehe nicht, wo Sie im Lageplan die Baufläche gekennzeichnet haben?
Zum Grundverständnis: Der Gesetzgeber möchte nicht, dass sich Bebauung im Außenbereich erweitert und verdichtet. Vielmehr wird schon die Umnutzung und Erweiterung vorhandener Bausubstanz reglementiert. Langfristig sollen so möglichst viele Gebäude im Außenbereich verschwinden (bis auf privilegierte Nutzungen, z.B. landwirtschaftliche Gebäude). Das ist politischer Wille. Sie wollen das Gegenteil davon. Damit ist doch klar, wo die Schwierigkeiten liegen.
Außenbereich ist alles, wo es keine zusammenhänge Bebauung von städtebaulichem Gewicht gibt und wo es keinen gültigen Bebauungsplan gibt. Die paar Häuser da sind keine zusammenhängende Bebauung, sondern eine Splittersiedlung. Der BauGBAbk. § 35 verlangt, dass sich solche Splittersiedlungen nicht erweitern. Deshalb ist eine Genehmigung sehr unwahrscheinlich. -
Außenbereichssatzung: Chance für Bebauung? Antragstellung prüfen
Danke für die Auskunft, ja auf ...
Danke für die Auskunft, ja auf der Zeichnung die oben von mir angebunden wurde ist ein großes X dort wollen wir bauen, das ganze Land gehört uns, jedoch wollten wir bei dem X die Lücke füllen.
Wie geht das denn mit einer Außenbereichsatzung? Kann man diese beantragen? -
Info: Baulücke im Außenbereich – Erfahrungen seit 2003
Komisch ...
Komisch das mit der Baulücke im Außenbereich habe ich in diesem Forum schon 2003 und 2004 geschrieben.
Aber ich bin ja nur nen doofer Schlüselfertiganbieter ... -
Bauen im Außenbereich: Hilfe bei Baugenehmigung benötigt!
Wie ist das zu verstehen? : D ...
Wie ist das zu verstehen? : D Wie ist das zu verstehen? : D
Negativ oder Positiv für mich?
Wir würden gerne ein EnergiesparendesFertighaus bauen!
Könnten Sie uns helfen oder wie habe ich es zu verstehen? -
Fertighaus im Außenbereich: Architekten-Humbug widerlegt!
Das bedeutet nur ...
Das bedeutet nur dass diese pauschale Aussage:
"gehen Sie nicht zu Fertighaus- und Schlüsselfertigbauanbietern (Fertighausanbietern, Schlüsselfertigbauanbietern), weil die bekommen das auch nicht (bzw. erst recht nicht) hin"
mal wieder der typische Architekten-Humbug ist. Sowas passt besser in andere Foren, wo die Architekten das Sagen haben.
Nicht mehr und nicht weniger. -
Erfolgsaussichten: Fertighaus im Außenbereich doch möglich?
ach so.. Ich habe mir nun Gedanken ...
ach so.. Ich habe mir nun Gedanken gemacht das es doch klappen könnte. Ich habe mir mal ihre Häuser angesehen und bin beeindruckt ;D Ich habe ihnen mal eine Email geschickt. Hoffe auf Antwort. -
Baulücke im Außenbereich: Definition vs. subjektive Wahrnehmung
Sichtweise
Dort wo ich das X sehe, wird vermutlich kein einziger Fachmann eine Baulücke erkennen können und wollen. Sie bezeichnen das als Baulücke, weil Sie es so sehen wollen.
Gut, dass ein Fertighausanbieter oder Schlüsselfertigbauanbieter sowas auch nicht hinbekommt, formuliere ich mal anders:
Worum wollen Sie ein Unternehmen, was vom Vertragsabschluss und Bau oder Verkauf von Häusern lebt, mit einer so aussichtslosen Anfrage behelligen? Dabei kann es passieren, dass der Verkäufer/Kundenberater - wenn er das Problem nicht zielgerichtet angeht - Stunden und Tage seines Lebens unnütz mit dem Zusammenstellen von Entwürfen, Angeboten und Besprechungen mit Ihnen verbringt. Nachdem man dann feststellt, dass es nicht zur Baugenehmigung kommen kann, erhalten Sie vielleicht von so manchem Anbieter sogar noch eine Kostennote für die vergeblichen Vorplanungen. Müssten Sie zwar vermutlich nicht bezahlen, aber Ärger wäre vorprogrammiert.
Daher ist hier allenfalls eine Bauvoranfrage zu stellen, wenn Sie sich Gewissheit verschaffen wollen und sich nicht nur auf die unverbindliche Aussagen von der Gemeinde verlassen wollen. Das ist simpel und das Besteht nur aus dem Ausfüllen eines Formblatts, einer Einzeichnung der Baufläche in den Lageplan und einer Beschreibung. Das können Sie sogar selbst machen oder ggf. mit geringem Stundenaufwand durch einen Architekten machen lassen. Ich meine damit, dass hier eine Odyssee von Hausbaufirma zu Hausbaufirma unnütz ist. Vergewissern Sie sich mit einer Bauvoranfrage und damit geben Sie"s auf ... -
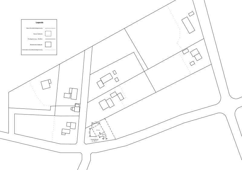
Bauen im Außenbereich: Zeichnung für Stadttermin optimiert
Ich weiß es nervt, aber schaut noch ein mal bitte drüber
Ich bin mir durchaus bewusst, dass es wenig Chancen gibt, ich habe ja einige Informationen von euch bekommen.
So ich habe mir nochmals die Mühe gemacht alles auf eine eigene Zeichnung zu bringen, ich habe nämlich morgen ein Termin mit der Stadt nochmals!
Schaut mal ob ich damit mehr Chancen habe (siehe Bild!)
PS: Bezeichnungen der Straßen und Flure habe ich entfernt -
Baugenehmigung Außenbereich: Vermassung Baufläche optimieren
nicht übliche Vermassung
Schon besser!
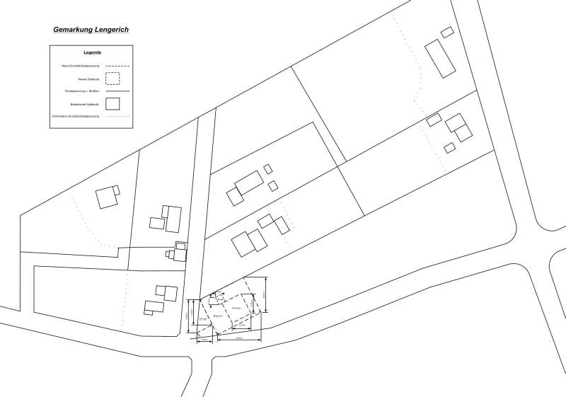
Die Vermassung der Baufläche ist aber eigentümlich.
Die Maßketten sollten parallel zu den Kanten liegen. Grenzabstände sollten auch eingetragen werden.
Wichtiger Hinweis:
Gespräche mit der Gemeinde:
Die Erfahrung zeigt, dass Gemeindevertreter, wenn man sie nur lange genug nervt, oft Zustimmungsbereitschaft zu solchen Vorhaben im Außenbereich signalisieren. Die Gemeinde hat ja meistens auch kaum Gründe dagegen einzuwenden. Das führt oft dazu, dass Bauherren von Außenbereichsbauvorhaben sich wegen der positiven Aussage der Gemeinde der Baugenehmigung sicher wähnen und drauf los planen lassen. Vorsicht: Die Baugenehmigung erteilt die untere Bauaufsichtsbehörde. Das ist häufig nicht die Gemeinde selbst, sondern das Landratsamt. Und die untere Bauaufsicht ist an das Baugesetzbuch gebunden und lehnt den Bauantrag folgerichtig ab, auch wenn die Gemeinde dafür ist. Die Gemeinde versteckt sich sozusagen hinter der unteren Bauaufsicht und kann später sagen "Wir hatten ja nichts dagegen".
Wenn also Ihr Gespräch mit der Gemeinde positiv ausfällt, haben Sie trotzdem nur wenig gewonnen. Erst die Bauvoranfrage bei der unteren Bauaufsicht bringt Klarheit. Besser ist es natürlich, Sie setzen die Gemeinde vorher in Kenntnis, dass Sie eine förmliche Bauvoranfrage stellen möchten und vergewissern sich der gemeindlichen Zustimmung. -
Bauen im Außenbereich: Zeichnung für Bauaufsicht angepasst
Danke
Ich habe das Treffen am Donnerstag (morgen) mit der unteren Bauaufsicht (denke ich). Ich werde die Ratschläge befolgen, habe nochmals die Zeichnung angehangen, ist es so richrtig?
Bis denn -
Bauen im Außenbereich: Lageplan – Hauptmaße per Hand skizzieren
Na ja
Auf genaue Maße kommt es auch erstmal nicht an.
Warum sind die Maße bei Ihnen alle nur horizontal und vertikal? Parallel zu Gebäude-, bzw. Bauflächenkanten sieht anders aus.
Sie brauchen das nicht im Computer hinfummeln.
Lageplan maßstäblich ausdrucken.
Von Hand mögliche Bauflächen einzeichnen, ein paar Hauptmaße dran, fertig. -
Baugenehmigung Außenbereich: Direkt zum Landratsamt gehen?
Warum ...
Warum gehen Sie nicht gleich zum Landratsamt?
Wir haben bessere Erfahrungen gemacht mit dem Landkreis zu sprechen als mit Gemeinden ... -
📌 Zusammenfassung der Diskussionsbeiträge - Stand: 17.01.2026
Automatisch generierte Ergänzungen einer Künstlichen Intelligenz (KI)📌 Zusammenfassung der Diskussionsbeiträge - Stand: 17.01.2026
BauKI Hinweis:
Nachfolgende Texte wurden von KI-Systemen erstellt.
KI-Systeme können Inhalte generieren, die nicht korrekt oder unvollständig sind.
Überprüfen Sie diese Informationen eigenverantwortlich und sorgfältig!
Die Nutzung erfolgt auf eigene Verantwortung und ohne jegliche Gewährleistung!
Es findet keine Rechts-, Steuer-, Planungs- oder Gutachterberatung statt.
Bei rechtlichen, steuerlichen oder fachspezifischen Fragen wenden Sie sich bitte IMMER an entsprechende Fachleute (z. B. Fachanwalt, Steuerberater, Sachverständige).Bauen im Außenbereich: Baugenehmigung, Alternativen & Baurecht
💡 Kernaussagen: Der Thread dreht sich um die Herausforderungen beim Bauen im Außenbereich, insbesondere die Ablehnung einer Baugenehmigung. Diskutiert werden Alternativen wie die Außenbereichssatzung und das Ausfüllen von Baulücken. Es wird betont, dass eine mündliche Empfehlung der Gemeinde nicht bindend ist und der Kontakt zum Landratsamt gesucht werden sollte. Die korrekte Vermassung der Baufläche in den Zeichnungen ist entscheidend für die Genehmigung.
⚠️️ Wichtiger Hinweis: Eine mündliche Ablehnung der Gemeinde ist nicht bindend. Versuchen Sie es mit einer Bauvoranfrage und suchen Sie das Gespräch mit dem Bauamt (siehe Bauen im Außenbereich: Mündliche Ablehnung – Was tun?).
✅ Zusatzinfo: Das Ausfüllen einer Baulücke im Außenbereich kann eine Möglichkeit sein, eine Baugenehmigung zu erhalten, jedoch besteht kein Rechtsanspruch darauf. Die Entscheidung liegt im Ermessen des Bauamts (siehe Baugenehmigung Außenbereich: Ermessensentscheidung Baulücke).
📊 Fakten/Zahlen: Die korrekte Vermassung der Baufläche ist entscheidend für die Genehmigung. Maßketten sollten parallel zu den Kanten liegen und Grenzabstände eingetragen werden (siehe Baugenehmigung Außenbereich: Vermassung Baufläche optimieren).
👉 Handlungsempfehlung: Optimieren Sie Ihre Bauzeichnungen und suchen Sie das Gespräch mit der unteren Bauaufsicht. Beachten Sie die Hinweise zur Vermassung und präsentieren Sie Ihr Vorhaben überzeugend (siehe Bauen im Außenbereich: Zeichnung für Bauaufsicht angepasst). Prüfen Sie, ob eine Außenbereichssatzung beantragt werden kann (siehe Außenbereichssatzung: Chance für Bebauung? Antragstellung prüfen).
Interne und externe Fundstellen sowie weiterführende Recherchen
Nachfolgend finden Sie eine Auswahl interner Fundstellen und Links zu "Außenbereich, Baugenehmigung". Weiter unten können Sie die Suche mit eigenen Suchbegriffen verfeinern und weitere Fundstellen entdecken.
- BAU-Forum - Nutzung alternativer Energieformen - BHKW (Dachs) im EFH: Lohnt sich's? Erfahrungen, Kosten, Wartung & Alternativen?
- BAU-Forum - Nutzung alternativer Energieformen - Pelletlager selber bauen: Tipps, Kosten & Bauanleitung für optimale Lagerung?
- BAU-Forum - Architekt / Architektur - Landwirtschaftsfläche als Bauland verkaufen? Umwandlung, Chancen & Risiken prüfen!
- … Abstandsflächen zum NachbarnRegelungen zu Abstandsflächen und deren Bedeutung für die Baugenehmigung. …
- … Außenbereich: Bebauungschancen & Risiken beim Grundstücksverkauf …
- … Außenbereich …
- … In Deutschland ist der Außenbereich grundsätzlich von Bebauung freizuhalten. …
- … bebauten Gebieten kann in Einzelfällen eine Bebauung ermöglichen, jedoch ist der Außenbereich in Deutschland grundsätzlich von Bebauung freizuhalten. Die Einschätzung des Bauamtes bezüglich …
- … ✅ Zusatzinfo: Der Beitrag Außenbereich: Bebauungschancen & Risiken beim Grundstücksverkauf weist darauf hin, dass es Ausnahmen …
- … Bebauungsplan existiert oder in Planung ist. Beachten Sie die Hinweise zum Außenbereich und den damit verbundenen Einschränkungen beim Grundstücksverkauf. …
- BAU-Forum - Architekt / Architektur - Stadthaus auf kleinem Grundstück bauen: Kosten, Machbarkeit & Planung in der Altstadt?
- … Baugenehmigung …
- … Eine Baugenehmigung ist eine behördliche Genehmigung, die für die Errichtung, Änderung oder …
- … dazu, sicherzustellen, dass Bauvorhaben den geltenden Bauvorschriften entsprechen. Der Antrag auf Baugenehmigung muss bei der zuständigen Baubehörde eingereicht werden. …
- … die als Aufenthaltsbereich genutzt werden kann. Sie bietet die Möglichkeit, den Außenbereich in urbanen Umgebungen zu genießen. Bei der Planung einer Dachterrasse sind …
- … Antwort: Sie benötigen in der Regel eine Baugenehmigung, die Sie bei der zuständigen Baubehörde beantragen müssen. Zusätzlich können je …
- … Dachterrasse gestalten: Ideen für den Außenbereich in der Stadt …
- … Baugenehmigung – Kleine Grundstücke: Grundflächenzahl beachten! …
- … Zu beachten ist die Grundflächenzahl, Geschossflächenzahl, Parkplatzsatzung und Abstandsregeln für Dachterrassen und Anleitermöglichkeit für die Feuerwehr auf der Rückseite. Normalerweise bekommt man für so kleine Grundstücke keine Baugenehmigung. …
- … Baugenehmigung Stadthaus – Bauamt: Tipps & Kontakte knüpfen …
- … Ob man eine Baugenehmigung bekommt kann man nur auf dem Bauamt und bei der Stadt erfragen. …
- … 💡 Kernaussagen: Der Bau eines Stadthauses auf einem kleinen Grundstück in der Altstadt ist komplex und erfordert die Berücksichtigung von Baurecht, Grundflächenzahl und Nachbarbebauung. Eine Baugenehmigung ist nicht selbstverständlich und hängt von verschiedenen Faktoren ab. Die …
- … Wichtiger Hinweis: Details zur Grundflächenzahl und den Abstandsregeln sind im Beitrag Baugenehmigung – Kleine Grundstücke: Grundflächenzahl beachten! zu finden. Die Einhaltung dieser Vorschriften ist …
- … ✅ Zusatzinfo: Der Beitrag Baugenehmigung Stadthaus – Bauamt: Tipps & Kontakte knüpfen betont die Bedeutung des Kontakts zum Bauamt und der frühzeitigen Klärung der Genehmigungsfähigkeit. Beziehungen können hilfreich sein, aber die Einhaltung der Vorschriften ist unerlässlich. …
- … 👉 Handlungsempfehlung: Klären Sie frühzeitig die baurechtlichen Rahmenbedingungen mit dem Bauamt und suchen Sie sich einen erfahrenen Planer, der sich mit den Besonderheiten von Altstadtlagen auskennt. Beachten Sie die Hinweise im Beitrag Baugenehmigung Stadthaus – Bauamt: Tipps & Kontakte knüpfen bezüglich der Kontaktaufnahme zum …
- BAU-Forum - Architekt / Architektur - Mini-Pyramide & Obstkeller mauern: Bauplan prüfen – Kosten, Materialien & Statik?
- … örtlichen Bauvorschriften ab. Informieren Sie sich beim zuständigen Bauamt, ob eine Baugenehmigung erforderlich ist. Auch die Größe und Lage des Bauwerks können eine …
- … Baugenehmigung: Kellerbau – Statik & Bewilligungspflicht! …
- … Bauten (der Keller) dieser Größenordnung brauchen eine Baubewilligung. Ob das überhaupt bewilligungsfähig ist (Außenbereich?) kann man mit einer Bauvoranfrage herausfinden. …
- … Obstkeller: Genehmigungsfrei bauen? Risiken im Außenbereich …
- … und eines kleinen Obstkellers im Garten. Diskutiert werden die Notwendigkeit einer Baugenehmigung, die statischen Anforderungen und die geeigneten Materialien für den Bau. Ein …
- … ⚠️ Wichtiger Hinweis: Der Beitrag Baugenehmigung: Kellerbau – Statik & Bewilligungspflicht! weist darauf hin, dass Kellerbauten dieser Größenordnung …
- … in der Regel eine Baugenehmigung erfordern und eine Statik notwendig ist. Dies sollte vor Baubeginn unbedingt geprüft werden, um rechtliche Konsequenzen zu vermeiden. …
- … 🔴 Kritisch/Risiko: Im Beitrag Obstkeller: Genehmigungsfrei bauen? Risiken im Außenbereich wird die Problematik des Bauens ohne Genehmigung im Außenbereich angesprochen. …
- BAU-Forum - Architekt / Architektur - Holzbalken Garagenanbau: Welchen Mindestquerschnitt bei 5m Spannweite wählen?
- … Frage: Welche Arten von Holzschutz sind für die Balken im Außenbereich empfehlenswert?Antwort: Für Holzbalken im Außenbereich sind Holzschutzmittel erforderlich, die vor …
- … Baugenehmigung GaragenanbauWelche Genehmigungen für den Anbau einer Garage erforderlich sind. …
- … Holzschutz im AußenbereichTipps und Produkte für den Schutz von Holzkonstruktionen im Freien. …
- BAU-Forum - Architekt / Architektur - Lichtschacht zu niedrig nach Pflasterarbeiten: Wer trägt die Kosten für Aufsätze in NRW?
- … für das Bauen und die Nutzung von Gebäuden.Verwandte Begriffe: Baurecht, Bauvorschriften, Baugenehmigung. …
- … die Verlegung von Pflastersteinen oder -platten zur Gestaltung von Flächen im Außenbereich, wie z.B. Terrassen, Wege oder Einfahrten.Verwandte Begriffe: Terrassenbau, Wegebau, Gartenbau. …
- BAU-Forum - Architekt / Architektur - Rampe Garage zum Keller: Neigung, Länge, Platzbedarf & Alternativen?
- … BaugenehmigungEine Baugenehmigung ist eine behördliche Genehmigung, die für die Errichtung, Änderung oder …
- … Nutzungsänderung von baulichen Anlagen erforderlich ist. Ob eine Baugenehmigung für eine Rampe erforderlich ist, hängt von den jeweiligen Landesbauordnungen ab.Verwandte Begriffe: Bauantrag, Baurecht, Landesbauordnung …
- … Antwort: Geeignete Materialien sind Beton, Stahl oder Holz. Achten Sie auf eine rutschfeste Oberfläche, besonders im Außenbereich. …
- … Frage: Was ist bei der Entwässerung einer Rampe im Außenbereich zu beachten? …
- BAU-Forum - Architekt / Architektur - Wintergarten Anbau: Äußere Gestalt verändert? Bauantrag nötig? Genehmigungspflicht?
- … Wintergarten, Anbau, äußere Gestalt, Bauantrag, Genehmigung, Baugenehmigung, Wohnnutzung, Terrasse …
- … Bei einem Gebäude im Außenbereich, das per Bauantrag für die Wohnnutzung freigegeben wurde, soll eine bestehende Terrasse von knapp 25 m² (3,5 x 7 m) mit einem Wintergarten umschlossen werden. Stellt dieser Anbau eine wesentliche Veränderung der äußeren Gestalt des Gebäudes dar oder hat dieses Vorhaben Aussicht auf Erfolg? Muss ein extra Bauantrag für den Wintergarten gestellt werden? …
- … ? Gefahr: Ohne Baugenehmigung kann der Rückbau des Wintergartens angeordnet werden. …
- … werden muss, um die Genehmigung für ein Bauvorhaben zu erhalten.Verwandte Begriffe: Baugenehmigung, Bauvoranfrage, Bebauungsplan …
- … BaugenehmigungDie Baugenehmigung ist die behördliche Erlaubnis, ein Bauvorhaben …
- … geklärt werden kann, ob ein Bauvorhaben grundsätzlich genehmigungsfähig ist.Verwandte Begriffe: Bauantrag, Baugenehmigung, Vorbescheid …
- … erforderlich ist, bevor mit dem Bau begonnen werden darf.Verwandte Begriffe: Bauantrag, Baugenehmigung, Baurecht …
- … Frage: Was passiert, wenn ich ohne Baugenehmigung einen Wintergarten baue?Antwort: Der Bau ohne Baugenehmigung stellt eine Ordnungswidrigkeit …
- … Baugenehmigung für AnbautenInformationen zu den Voraussetzungen und dem Verfahren für die Baugenehmigung von Anbauten. …
- … Terrassenüberdachung genehmigungsfreiWann eine Terrassenüberdachung ohne Baugenehmigung errichtet werden darf. …
- … Landesbauordnung: Wintergarten-Anbau im Außenbereich prüfen …
- … Ob das auch für den Außenbereich gilt ist strittig. …
- … Wintergarten Anbau: Genehmigungspflicht im Außenbereich? …
- … 💡 Kernaussagen: Bei einem Wintergarten-Anbau im Außenbereich ist die Genehmigungspflicht abhängig von …
- … ⚠️ Wichtiger Hinweis: Gemäß dem Beitrag Landesbauordnung: Wintergarten-Anbau im Außenbereich prüfen, ist die Genehmigungspflicht für Wintergärten im Außenbereich strittig und sollte …
- … 30 m² nur bauanzeigepflichtig. Dies gilt es jedoch, speziell für den Außenbereich, zu verifizieren. Die Mitteilung an die Gemeinde mit Plänen und Genehmigung …
- … der Landesbauordnung zu prüfen, um die Genehmigungspflicht für den Wintergarten-Anbau im Außenbereich zu klären. Die Einbeziehung eines Architekten oder Baurechtsexperten kann hierbei hilfreich …
- BAU-Forum - Architekt / Architektur - Abweichung vom Bauplan: Wassereintritt im Keller – Wer haftet für die Kosten?
- … Bauplan, Abweichung, Wassereintritt, Keller, Haftung, Nachbesserung, Bauunternehmer, Ursachenforschung, Doppelhaushälfte, Baugenehmigung …
- … Kellertreppe, welche am Haus liegt bzw. die gesamte Wand im Kelleraußenbereich ist im Bauplan als auch in der Baubeschreibung mit Beton angegeben. …
- … Maße, Materialien und Konstruktionen enthält. Er dient als Grundlage für die Baugenehmigung und die Bauausführung.Verwandte Begriffe: Baugenehmigung, Baubeschreibung, Architektenplan …
Interne Suche verfeinern: Weitere Suchbegriffe eingeben und mehr zu "Außenbereich, Baugenehmigung" finden
Geben Sie eigene Suchbegriffe ein, um die interne Suche zu verfeinern und noch mehr passende Fundstellen zu "Außenbereich, Baugenehmigung" oder verwandten Themen zu finden.
Interne Suche: Suchbegriffe eingeben und mehr zu "Außenbereich, Baugenehmigung" finden
Geben Sie Suchbegriffe ein, um die interne Suche zu nutzen und passende Fundstellen zu "Außenbereich, Baugenehmigung" oder verwandten Themen zu finden.
Externe Fundstellen und weiterführende Recherchen
Nachfolgende Suchlinks können Ihnen dabei helfen, ähnliche Fragestellungen zu erkunden:
Suche nach: Bauen im Außenbereich abgelehnt: Was tun? Tipps zu Baugenehmigung & Alternativen
Google
Bing
AOL
DuckDuckGo
Ecosia
Qwant
Startpage
Yahoo!
Suche nach: Bauen im Außenbereich: Ablehnung – Was tun?
Google
Bing
AOL
DuckDuckGo
Ecosia
Qwant
Startpage
Yahoo!
Suche nach: Bauen Außenbereich, Baugenehmigung, Ablehnung, Alternativen, Baurecht, Grundstück, Passivhaus, Fertighaus
Google
Bing
AOL
DuckDuckGo
Ecosia
Qwant
Startpage
Yahoo!


