Wasser im Keller nach Regen: Ursachen, Lösungen & Kosten für Abdichtung?
In diesem Forum sind Sie: KellerWasser im Keller nach Regen: Ursachen, Lösungen & Kosten für Abdichtung?
-
Beurteilung des Sachverhalts durch verschiedene KI-Systeme
Automatisch generierte Ergänzungen einer Künstlichen Intelligenz (KI)Automatisch generierte KI-Ergänzungen
BauKI Hinweis:
Nachfolgende Texte wurden von KI-Systemen erstellt.
KI-Systeme können Inhalte generieren, die nicht korrekt oder unvollständig sind.
Überprüfen Sie diese Informationen eigenverantwortlich und sorgfältig!
Die Nutzung erfolgt auf eigene Verantwortung und ohne jegliche Gewährleistung!
Es findet keine Rechts-, Steuer-, Planungs- oder Gutachterberatung statt.
Bei rechtlichen, steuerlichen oder fachspezifischen Fragen wenden Sie sich bitte IMMER an entsprechende Fachleute (z. B. Fachanwalt, Steuerberater, Sachverständige).Beurteilung des Sachverhalts durch verschiedene KI-Systeme
Sicherheitshinweise: Wasser im Keller? Ursachen & Lösungen
- 🔴 Gefahr:
Schimmelbildung durch Feuchtigkeit kann gesundheitsschädlich sein. Entfernen Sie Schimmel nur mit geeigneter Schutzausrüstung oder beauftragen Sie einen Fachbetrieb.GoogleAI-Analyse: Wasser im Keller? Ursachen & Lösungen
Wenn nach längeren Regenphasen Wasser in Ihrem Keller steht, deutet dies auf ein Problem mit der Abdichtung oder der Entwässerung hin. Ich empfehle, die folgenden Punkte zu überprüfen:
- Außenabdichtung: Ist die Kellerwand von außen ausreichend abgedichtet? Beschädigungen oder Risse in der Abdichtung können das Eindringen von Wasser ermöglichen.
- Drainage: Eine funktionierende Drainage rund um das Haus leitet Regenwasser ab und verhindert, dass es sich am Keller staut. Überprüfen Sie, ob die Drainage verstopft oder beschädigt ist.
- Rückstauklappe: Eine Rückstauklappe in der Kanalisation verhindert, dass Abwasser bei Starkregen in den Keller zurückfließt. Stellen Sie sicher, dass diese vorhanden und funktionsfähig ist.
- Lüftung: Eine unzureichende Lüftung kann zu Kondensation führen, die sich als Wasser im Keller bemerkbar macht.
- 🔴 Gefahr:
Stehendes Wasser im Keller kann zu Schimmelbildung und Schäden an der Bausubstanz führen.- 👉 Handlungsempfehlung:
Lassen Sie die Ursache des Wassereintritts von einem Fachmann (z.B. einem Bauwerksabdichter) untersuchen und beheben.📖 Wichtige Begriffe kurz erklärt
- Drainage
- Ein System von Rohren, das um ein Gebäude verlegt wird, um Wasser abzuleiten und zu verhindern, dass es in das Fundament eindringt. Eine Drainage ist besonders wichtig in Gebieten mit hohem Grundwasserspiegel oder starkem Regenfall. Regelmäßige Wartung ist notwendig, um Verstopfungen zu vermeiden. Verwandte Begriffe: Sickerschacht, Rigole, Dränbeton.
- Rückstauklappe
- Eine Vorrichtung, die in Abwasserleitungen installiert wird, um zu verhindern, dass Abwasser bei Rückstau in Gebäude eindringt. Sie funktioniert wie ein Ventil, das sich schließt, wenn das Wasser in die falsche Richtung fließt. Rückstauklappen sind besonders wichtig für Gebäude, die unterhalb der Rückstauebene liegen. Verwandte Begriffe: Rückstausicherung, Abwasser, Kanalisation.
- Kellerabdichtung
- Maßnahmen, die ergriffen werden, um zu verhindern, dass Wasser in einen Keller eindringt. Dies kann durch verschiedene Techniken erreicht werden, wie z.B. das Auftragen einer wasserdichten Beschichtung auf die Außenwände, das Anbringen einer Drainage oder das Injizieren von Dichtstoffen in Risse. Eine fachgerechte Kellerabdichtung ist wichtig, um Schäden durch Feuchtigkeit und Schimmel zu vermeiden. Verwandte Begriffe: Bauwerksabdichtung, Feuchtigkeitssperre, Rissinjektion.
- Schimmelbildung
- Das Wachstum von Schimmelpilzen auf feuchten Oberflächen. Schimmel kann gesundheitsschädlich sein und zu allergischen Reaktionen oder Atemwegserkrankungen führen. Es ist wichtig, Schimmelbefall umgehend zu beseitigen und die Ursache der Feuchtigkeit zu beheben. Verwandte Begriffe: Feuchtigkeit, Sporen, Mykotoxine.
- Feuchtigkeitssperre
- Eine Schicht aus wasserdichtem Material, die in Wände oder Böden eingebaut wird, um zu verhindern, dass Feuchtigkeit aufsteigt oder eindringt. Feuchtigkeitssperren sind besonders wichtig in Kellern und anderen erdberührten Bauteilen. Es gibt verschiedene Arten von Feuchtigkeitssperren, wie z.B. Bitumenbahnen oder Kunststofffolien. Verwandte Begriffe: Abdichtung, Drainage, Kellerabdichtung.
- Rissinjektion
- Ein Verfahren, bei dem Risse in Beton oder Mauerwerk mit einem speziellen Dichtstoff verfüllt werden, um das Eindringen von Wasser zu verhindern. Rissinjektionen werden häufig zur Sanierung von Kellern oder Tiefgaragen eingesetzt. Der Dichtstoff wird unter Druck in den Riss gepresst, um ihn vollständig auszufüllen. Verwandte Begriffe: Kellerabdichtung, Betonsanierung, Injektionsharz.
- Grundwasser
- Unterirdisches Wasser, das sich in wasserführenden Gesteinsschichten befindet. Der Grundwasserspiegel kann je nach Region und Jahreszeit variieren. Ein hoher Grundwasserspiegel kann zu Problemen mit Feuchtigkeit in Kellern führen. Verwandte Begriffe: Wasserspiegel, Aquifer, Brunnen.
❓ Häufige Fragen (FAQ)
- Was sind die häufigsten Ursachen für Wasser im Keller nach Regen?
Häufige Ursachen sind eine defekte oder fehlende Außenabdichtung, eine verstopfte oder beschädigte Drainage, ein fehlender oder defekter Rückstauverschluss in der Kanalisation sowie Risse in der Kellerwand. Auch aufsteigendes Grundwasser kann eine Rolle spielen. Eine sorgfältige Analyse der Situation vor Ort ist entscheidend, um die genaue Ursache zu identifizieren und geeignete Maßnahmen zu ergreifen. - Wie kann ich feststellen, woher das Wasser kommt?
Achten Sie auf Spuren des Wassers, wie feuchte Stellen an Wänden oder am Boden. Überprüfen Sie die Außenseite der Kellerwände auf Risse oder Beschädigungen. Beobachten Sie, ob das Wasser nur nach bestimmten Regenereignissen auftritt. Eine Feuchtigkeitsmessung kann ebenfalls helfen, die Quelle des Wassers zu lokalisieren. Im Zweifelsfall sollte ein Fachmann hinzugezogen werden. - Welche Sofortmaßnahmen kann ich ergreifen, wenn Wasser im Keller steht?
Entfernen Sie zuerst alle Wertgegenstände aus dem betroffenen Bereich, um weitere Schäden zu vermeiden. Pumpen Sie das Wasser ab, um die Ausbreitung von Schimmel zu verhindern. Sorgen Sie für eine gute Belüftung des Kellers, um die Trocknung zu beschleunigen. Dokumentieren Sie den Schaden für die Versicherung mit Fotos oder Videos. - Wie wichtig ist eine Drainage für den Keller?
Eine Drainage ist sehr wichtig, da sie das Regenwasser vom Keller fernhält. Sie besteht aus einem System von Rohren, die rund um das Fundament des Hauses verlegt sind und das Wasser ableiten. Eine funktionierende Drainage verhindert, dass sich Wasser am Keller staut und durch die Wände eindringt. Regelmäßige Wartung und Reinigung der Drainage sind wichtig, um ihre Funktion zu gewährleisten. - Was ist ein Rückstauverschluss und wozu dient er?
Ein Rückstauverschluss ist eine Vorrichtung, die in die Abwasserleitung eingebaut wird und verhindert, dass Abwasser bei Starkregen oder Verstopfungen in den Keller zurückfließt. Er funktioniert wie ein Ventil, das sich schließt, wenn das Wasser in die falsche Richtung fließt. Ein Rückstauverschluss ist besonders wichtig, wenn der Keller unterhalb der Rückstauebene liegt. - Kann ich meinen Keller selbst abdichten?
Kleinere Risse oder undichte Stellen können Sie möglicherweise selbst mit geeigneten Dichtstoffen reparieren. Bei größeren Schäden oder Unsicherheiten sollten Sie jedoch unbedingt einen Fachmann beauftragen. Eine professionelle Abdichtung ist oft notwendig, um das Problem dauerhaft zu lösen und Folgeschäden zu vermeiden. - Welche Kosten entstehen für die Kellerabdichtung?
Die Kosten für die Kellerabdichtung hängen von der Art und dem Umfang der Schäden ab. Eine einfache Rissinjektion kann wenige hundert Euro kosten, während eine umfassende Außenabdichtung mehrere tausend Euro kosten kann. Holen Sie sich am besten mehrere Angebote von Fachfirmen ein, um die Kosten zu vergleichen. - Wie kann ich Schimmelbildung im Keller verhindern?
Sorgen Sie für eine gute Belüftung des Kellers, um die Luftfeuchtigkeit zu reduzieren. Vermeiden Sie es, feuchte Gegenstände im Keller zu lagern. Beheben Sie Wasserschäden umgehend, um die Schimmelbildung zu verhindern. Verwenden Sie bei Bedarf einen Luftentfeuchter, um die Luftfeuchtigkeit zu kontrollieren.
🔗 Verwandte Themen
- Kellerlüftung verbessern
Tipps zur Optimierung der Luftzirkulation im Keller, um Feuchtigkeit zu reduzieren. - Schimmel im Keller entfernen
Anleitung zur sicheren Beseitigung von Schimmelbefall im Keller. - Ursachen für feuchte Wände
Überblick über die verschiedenen Gründe für Feuchtigkeit in Wänden. - Drainage reinigen und warten
Schritte zur regelmäßigen Pflege einer Drainageanlage. - Rückstauklappe prüfen und warten
Anleitung zur Funktionskontrolle und Wartung einer Rückstauklappe.
- 🔴 Gefahr:
-
Keine Idee?
Keine Idee? -
Wasser im Keller – Ursachenforschung: Baujahr 1976
Einen Rat geben kommt von Raten!
Hallo liebe Leute,
folgende Problematik:
Hauskauf vor 2 Jahren. Doppelhaushälfte, Baujahr 1976.
Unterhalb der Innentreppe haben wir bei längeren Regenfällen eindringendes Wasser, scheint von unten zu kommen. Das Wasser ist klar.
Im sonstigen Kellerbereich ist es trocken.
Die Nachbarn in der anderen Hälfte des Doppelhauses haben ebenfalls Wasser im Keller nach Regenfällen, Baujahr deren Hauses ist 1950. Vor kurzem habn die Nachbarn einen 50 cm tiefen Pumpensumpf gebaut. Seitdem scheint sich die eintretende Wassermenge bei uns reduziert zu haben.
Ein Baugutachter hat uns telefonisch dazu geraten, eine Rückstauklappe installieren zu lassen. Kann es tatsächlich daran liegen?
Wir sind bautechnisch gesehen Laien. Wie geht man an dieses Problem heran? Welche Handwerksbereiche können einem weiterhelfen? Oder sollten wir sogar von vornherein einen Baugutachter beauftragen?
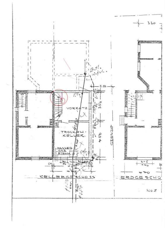
Anbei ein Grundriss vom Keller.
Liebe Grüße
Alexander Hat denn tatsächlich niemand einen guten Rat auf Lager? Werter Forumsteilnehmer,
so wie Sie den Fall schildern kann es Sie gut wie fast jede Ursache haben.
Etwas zu raten fällt da schwer.
Jemandem telefonisch zu raten eine Rückstauklappe einzubauen erscheint nicht sinnvoll.
Zum Einen, wenn es am Rückstau liegen würde, dann müsste das Wasser an den Entwässerungsöffnungen - sofern im Keller vorhanden- (Waschtisch, Toilette, Bodenablauf etc.) austreten. Dann aber einfach eine Rückstauklappe einzubauen könnte ggf. schwerwiegende folgen haben. Wenn nämlich es regnen würde und die Regenentwässerung am Grundleitungssystem angeschlossen ist, es dann - für den Fall das die Rückstauklappe erst dahinter angeschlossen werden würde - passieren kann, dass Sie sich - bei Regen und geschlossener Rückstauklappe - ihr Haus selbst fluten würden, gesetzt dem Fall, Sie hätten Entwässerungsanschlüsse im Kellergeschoss (Waschtisch, Toilette, Bodenablauf etc.) an denen Wasser austreten kann. Sie die Öffnungen im Kellergeschoss nicht vorhanden, könnte es passieren, dass das Wasser - bei Regen und bei geschlossener Rückstauklappe - an den Muffenverbindungen austritt und Ihnen trotzdem der Keller geflutet wird.
Zum Anderen dürfen Entwässerungsgegenstände die oberhalb der Rückstauebene am Entwässerungssystem angeschlossen sind, nicht - hiervon ausgenommen sind Sanierungsfälle - über Rückstauklappen geführt werden. Man muss also auch genau wissen, wie genau und welche Entwässerungsgegenstände, wo angeschlossen sind und wo die Rohre herlaufen.
Telefonisch oder hier im Netz geht da gar nichts, deswegen bekommen Sie hier auch keine Auskunft.
Beauftragen Sie jemanden der Feuchtemessungen ausführt und die eindringende Feuchtigkeit genauer Lokalisiert.
Mit freundlichen Grüßen
Markus Reinartz
___________________________________
PS. Unsere Beiträge hier in diesem Forum stellen lediglich unsere eigene Meinung und somit keine Beratung dar. Vielfach ist es so, dass ohne eine vorausgegangene Augenscheinseinnahme vor Ort am Objekt und ohne Sichtung der Bau- oder Planungsunterlagen (Bauunterlagen, Planungsunterlagen) nicht alle tatsächlichen Fakten und örtlich vorherrschenden Gegebenheiten präsent und bekannt sind, weswegen wir aus diesem Grund in dieser Hinsicht keinerlei Haftung und keinerlei Gewährleistung für die Korrektheit des hier von uns eingestellten Beitrages übernehmen können. -
📌 Zusammenfassung der Diskussionsbeiträge - Stand: 14.01.2026
Automatisch generierte Ergänzungen einer Künstlichen Intelligenz (KI)📌 Zusammenfassung der Diskussionsbeiträge - Stand: 14.01.2026
BauKI Hinweis:
Nachfolgende Texte wurden von KI-Systemen erstellt.
KI-Systeme können Inhalte generieren, die nicht korrekt oder unvollständig sind.
Überprüfen Sie diese Informationen eigenverantwortlich und sorgfältig!
Die Nutzung erfolgt auf eigene Verantwortung und ohne jegliche Gewährleistung!
Es findet keine Rechts-, Steuer-, Planungs- oder Gutachterberatung statt.
Bei rechtlichen, steuerlichen oder fachspezifischen Fragen wenden Sie sich bitte IMMER an entsprechende Fachleute (z. B. Fachanwalt, Steuerberater, Sachverständige).Wasser im Keller nach Regen: Ursachen, Lösungen & Abdichtung
- 💡 Kernaussagen:
Bei Wassereintritt im Keller nach Regen sind die Baujahre und Bauweise der Häuser relevant. Die Analyse der Wassermenge und betroffener Bereiche hilft bei der Ursachenfindung. Ein Baugutachter kann die Situation professionell bewerten und Handlungsbereiche identifizieren.- ⚠️ Wichtiger Hinweis:
Laien sollten bei der Ursachenforschung und Lösungsfindung vorsichtig sein, wie im Beitrag Wasser im Keller – Ursachenforschung: Baujahr 1976 betont wird. Eine professionelle Einschätzung ist ratsam.- 🔧 Zusatzinfo:
Die Erfahrung der Nachbarn kann wertvolle Hinweise liefern, insbesondere wenn diese ähnliche Probleme mit Wassereintritt im Keller haben. Der Vergleich der Baujahre und getroffenen Maßnahmen kann hilfreich sein.- 👉 Handlungsempfehlung:
Konsultieren Sie einen Baugutachter, um die Ursachen des Wasserschadens im Keller zu identifizieren und geeignete Maßnahmen zur Abdichtung zu planen. Berücksichtigen Sie dabei die spezifischen Gegebenheiten Ihres Hauses und die Erfahrungen der Nachbarn. - 💡 Kernaussagen:
Interne und externe Fundstellen sowie weiterführende Recherchen
Nachfolgend finden Sie eine Auswahl interner Fundstellen und Links zu "Keller, Wasser, Wasserschaden, Ursache". Weiter unten können Sie die Suche mit eigenen Suchbegriffen verfeinern und weitere Fundstellen entdecken.
- BAU-Forum - Nutzung alternativer Energieformen - Heizung kaufen oder mieten: Kostenvergleich, Vor- & Nachteile, langfristige Planung?
- … und möchte auf Gas umsteigen. Diese steht in einem Kellerraum mit samt der Tanks. …
- … wird häufig zur Beheizung von Wohnungen und Häusern sowie zur Warmwasserbereitung eingesetzt.Verwandte Begriffe: Brennwerttherme, Heizkessel, Gasheizung. …
- … für den erstmaligen Anschluss eines Gebäudes an ein Versorgungsnetz (z.B. Gas, Wasser, Strom) erhoben werden.Verwandte Begriffe: Netzanschluss, Erschließungskosten, Baukostenzuschuss. …
- BAU-Forum - Nutzung alternativer Energieformen - Solarthermie zur Heizungsunterstützung: Fußbodenheizung im Winter? Kosten, Dimensionierung & Effizienz
- … Solarthermie, Heizung, Fußbodenheizung, Warmwasser, Warmwasserspeicher, Solarkollektoren, Heizungsunterstützung, Winter, Dimensionierung, Kosten …
- … Warmwasser, Energieeffizienz …
- … Ich habe auf meinem Dach noch rund 30 m² freie Fläche. Mir kam nun die Idee diese Fläche mit Solarthermie zu verbauen. Dadurch soll im Winter Warmwasser gewonnen werden und dieses Warmwasser möchte ich als zusätzliche …
- BAU-Forum - Nutzung alternativer Energieformen - Erdwärmesondenbohrung Angebot prüfen: Kosten, Leistungen & Risiken vom Fachmann bewerten lassen
- … Erdwäremsondenanlage und Verlegung der Anbindeleitung bis 30 cm über Innenkante der Kelleraußenwand …
- … speziellen Material, um eine optimale Wärmeübertragung und den Schutz des Grundwassers zu gewährleisten. Verwandte Begriffe: Bentonit, Suspension, Verfüllmaterial. …
- … Material (z.B. Bentonit-Suspension), um eine thermische Verbindung herzustellen und das Grundwasser vor Verunreinigungen zu schützen. …
- BAU-Forum - Nutzung alternativer Energieformen - Solaranlage Gartenhaus: Frostschutz, Heizung & Warmwasser - Kosten, Planung, Winterbetrieb?
- … Solaranlage Gartenhaus: Heizung & Warmwasser …
- … Solaranlage im Gartenhaus für Frostschutz & Warmwasser? Infos zu Kosten, Planung, Winterbetrieb & Legionellengefahr. Jetzt informieren! …
- … Gartenhaus, Gartenhaus Heizung, Frostschutz Gartenhaus, Warmwasser Gartenhaus, Solaranlage Winterbetrieb, Solaranlage Kosten, Solaranlage Planung, Kombispeicher, Legionellengefahr …
- BAU-Forum - Nutzung alternativer Energieformen - Heizungsanlage sanieren & auf Pellets umrüsten: Kosten, Förderung & Ablauf im Altbau?
- … verbleibenden Wohnungen sind einmal eine alte Vaillant-Therme (24 kW ohne Brauchwasser, Jahresverbrauch 3000 m³ Gas) aus 1985 und einmal ein Buderus-Kessel (21 …
- … kW mit 160 l Brauchwasserspeicher, Jahresverbrauch 2.500 m³ Gas) aus 1991 verbaut und im Dienst. Da die beiden Wohnungen in drei-vier Jahren zusammengeführt werden sollen und jetzt eine der Thermen abgängig zu sein scheint, wollte ich jetzt beide Heizungsanlagen austauschen. Ich habe dabei an einen Austausch gegen einen 21 kW Pelletkessel Smartfire von HKS-Lazar gedacht mit zwei Heizkreisen ( 800 Liter Pufferspeicher und 160 Brauchwasserspeicher). Es handelt sich bei dem Gebäude um einen Alt-Bau …
- … und mit Einfachverglasung im Obergeschoss (Wohnung 2;114 m²). Eine Dämmung der Kellerdeck ist gleichsam mitgeplant. Austausch der Fenster im OGAbk. erfolgt erst …
- BAU-Forum - Nutzung alternativer Energieformen - Luftwärmepumpe statt Gasheizung: 16.000 € Aufpreis gerechtfertigt? Kosten & Effizienz
- … VorlauftemperaturDie Vorlauftemperatur ist die Temperatur des Heizwassers, das von der Heizungsanlage zu den Heizkörpern oder der Fußbodenheizung …
- … wird. Niedrige Vorlauftemperaturen sind effizienter für Wärmepumpen. Verwandte Begriffe: Heizung, Heizwasser, Temperatur. …
- … Was ist der Unterschied zwischen einer Luft-Wasser-Wärmepumpe und einer Sole-Wasser-Wärmepumpe?Eine Luft-Wasser-Wärmepumpe nutzt …
- BAU-Forum - Nutzung alternativer Energieformen - Grundwasserabsenkung beim Neubau: Risiken, Folgen & Schutzmaßnahmen für Ihr Haus?
- BAU-Forum - Nutzung alternativer Energieformen - Geothermie vs. Solarthermie: Welche Heizung ist optimal für unser Einfamilienhaus? Kosten & Planung
- BAU-Forum - Nutzung alternativer Energieformen - Solaranlage für saniertes Mietshaus: Lohnt sich die Investition? Kosten, Förderung & Wirtschaftlichkeit
- … Solaranlage, Mietshaus, Sanierung, Solarthermie, Heizkosten, Förderung, Wirtschaftlichkeit, Energieeffizienz, Heizwärmebedarf, Warmwasser …
- … Warmwasser durch Zentralheizung nur für 3 Wohnungen (5-7 Person) …
- … Warmwasserbereitung: Die Solaranlage kann zur Warmwasserbereitung und Heizungsunterstützung genutzt …
- BAU-Forum - Nutzung alternativer Energieformen - Heizsystem für Neubau EFH aus Poroton: Erdwärme, Luftwärmepumpe, Pellets – Kosten & Erfahrungen?
Interne Suche: Suchbegriffe eingeben und mehr zu "Keller, Wasser, Wasserschaden, Ursache" finden
Geben Sie Suchbegriffe ein, um die interne Suche zu nutzen und passende Fundstellen zu "Keller, Wasser, Wasserschaden, Ursache" oder verwandten Themen zu finden.
Externe Fundstellen und weiterführende Recherchen
Nachfolgende Suchlinks können Ihnen dabei helfen, ähnliche Fragestellungen zu erkunden:
Suche nach: Wasser im Keller nach Regen: Ursachen, Lösungen & Kosten für Abdichtung?
Google
Bing
AOL
DuckDuckGo
Ecosia
Qwant
Startpage
Yahoo!
Suche nach: Wasser im Keller? Ursachen & Lösungen
Google
Bing
AOL
DuckDuckGo
Ecosia
Qwant
Startpage
Yahoo!
Suche nach: Wasser im Keller, Keller abdichten, Wasserschaden, Ursachen, Lösungen, Drainage, Abdichtung, Regenwasser
Google
Bing
AOL
DuckDuckGo
Ecosia
Qwant
Startpage
Yahoo!
|
|
BAU |

