Tragende Wände erkennen: So identifizieren Sie tragende Wände im Haus
BAU-Forum: Innenwände
Tragende Wände erkennen: So identifizieren Sie tragende Wände im Haus
-
Beurteilung des Sachverhalts durch verschiedene KI-Systeme
Automatisch generierte Ergänzungen einer Künstlichen Intelligenz (KI)Automatisch generierte KI-Ergänzungen
BauKI Hinweis:
Nachfolgende Texte wurden von KI-Systemen erstellt.
KI-Systeme können Inhalte generieren, die nicht korrekt oder unvollständig sind.
Überprüfen Sie diese Informationen eigenverantwortlich und sorgfältig!
Die Nutzung erfolgt auf eigene Verantwortung und ohne jegliche Gewährleistung!
Es findet keine Rechts-, Steuer-, Planungs- oder Gutachterberatung statt.
Bei rechtlichen, steuerlichen oder fachspezifischen Fragen wenden Sie sich bitte IMMER an entsprechende Fachleute (z. B. Fachanwalt, Steuerberater, Sachverständige).Beurteilung des Sachverhalts durch verschiedene KI-Systeme
Sicherheitshinweise
🔴 Kritisch: Veränderungen an tragenden Wänden ohne statische Berechnung können zum Einsturz des Gebäudes führen.
🔴 Kritisch: Unsachgemäße Eingriffe in die Statik können Ihre Versicherung ungültig machen.
GoogleAI-Analyse
Um tragende Wände zu identifizieren, sollten Sie folgende Aspekte berücksichtigen:
- Baupläne: Die Baupläne Ihres Hauses geben Auskunft über tragende Wände.
- Wandstärke: Tragende Wände sind oft dicker als nicht-tragende Wände (mind. 17,5 cm).
- Position: Wände, die senkrecht zu den Deckenbalken verlaufen oder übereinander liegen, sind oft tragend.
- Material: Tragende Wände sind häufig aus Stein, Beton oder Stahlbeton.
🔴 Gefahr: Das Entfernen oder Verändern einer tragenden Wand ohne fachkundige Beratung kann die Statik des Gebäudes gefährden.
👉 Handlungsempfehlung: Ziehen Sie immer einen Statiker oder Architekten zurate, bevor Sie eine Wand entfernen oder verändern.
📖 Wichtige Begriffe kurz erklärt
- Tragende Wand
- Eine tragende Wand ist ein Bauteil, das das Gewicht von Decken, Dach oder anderen Bauteilen aufnimmt und an das Fundament weiterleitet. Sie ist essenziell für die Stabilität eines Gebäudes.
Verwandte Begriffe: Statik, Lastabtragung, Fundament. - Statik
- Die Statik ist ein Teilgebiet der Mechanik, das sich mit der Berechnung von Kräften und Spannungen in Bauwerken befasst, um deren Stabilität und Standsicherheit zu gewährleisten.
Verwandte Begriffe: Lasten, Spannungen, Tragfähigkeit. - Bauplan
- Ein Bauplan ist eine zeichnerische Darstellung eines Bauvorhabens, die alle relevanten Informationen für die Ausführung enthält, wie z.B. Grundrisse, Ansichten und Schnitte.
Verwandte Begriffe: Grundriss, Schnitt, Ansicht. - Wanddurchbruch
- Ein Wanddurchbruch bezeichnet die teilweise oder vollständige Entfernung einer Wand, um eine Öffnung zu schaffen. Bei tragenden Wänden ist dies statisch relevant.
Verwandte Begriffe: Öffnung, Statik, Baugenehmigung. - Baugenehmigung
- Eine Baugenehmigung ist eine behördliche Erlaubnis, die für die Errichtung, Änderung oder Nutzungsänderung von baulichen Anlagen erforderlich ist.
Verwandte Begriffe: Bauantrag, Baurecht, Behörde. - Deckenbalken
- Deckenbalken sind tragende Bauteile, die die Last der Decke aufnehmen und an die Wände oder Stützen weiterleiten.
Verwandte Begriffe: Lastverteilung, Spannweite, Holzbau. - Fundament
- Das Fundament ist der unterste Teil eines Bauwerks, der die Lasten des Gebäudes auf den Baugrund überträgt und für einen sicheren Stand sorgt.
Verwandte Begriffe: Baugrund, Lastabtragung, Bodenplatte.
❓ Häufige Fragen (FAQ)
- Wie erkenne ich eine tragende Wand?
Tragende Wände sind oft dicker als nicht-tragende Wände und verlaufen meist senkrecht zu den Deckenbalken. Baupläne geben ebenfalls Auskunft. - Was passiert, wenn ich eine tragende Wand entferne?
Das Entfernen einer tragenden Wand kann die Statik des Gebäudes gefährden und im schlimmsten Fall zum Einsturz führen. - Brauche ich eine Genehmigung, um eine tragende Wand zu entfernen?
Ja, für das Entfernen oder Verändern einer tragenden Wand ist in der Regel eine Baugenehmigung erforderlich. - Wer kann mir bei der Beurteilung einer tragenden Wand helfen?
Ein Statiker oder Architekt kann die Statik beurteilen und die notwendigen Berechnungen durchführen. - Welche Konsequenzen hat ein illegaler Wanddurchbruch?
Ein illegaler Wanddurchbruch kann zu hohen Bußgeldern und der Anordnung zur Wiederherstellung des ursprünglichen Zustands führen. - Kann ich eine tragende Wand selbst entfernen?
Nein, das Entfernen einer tragenden Wand sollte immer von Fachleuten durchgeführt werden, um die Sicherheit zu gewährleisten. - Wie finde ich einen qualifizierten Statiker?
Sie können einen Statiker über die Architektenkammer oder Ingenieurkammer finden. - Welche Unterlagen benötigt der Statiker für die Beurteilung?
Der Statiker benötigt in der Regel die Baupläne, statische Berechnungen und gegebenenfalls ein Aufmaß des Gebäudes.
🔗 Verwandte Themen
- Wand entfernen: Genehmigungspflicht
Informationen zur Notwendigkeit einer Baugenehmigung beim Entfernen von Wänden. - Statische Berechnung: Grundlagen
Erläuterung der Grundlagen statischer Berechnungen für Bauvorhaben. - Lastabtragung im Haus: Prinzipien
Wie Lasten im Gebäude verteilt und abgetragen werden. - Baupläne richtig lesen: Anleitung
Tipps zum Verständnis von Bauplänen und technischen Zeichnungen. - Risiken bei unsachgemäßen Umbauten
Welche Gefahren bei Umbauten ohne Fachkenntnisse entstehen können.
-
Statik-Auskunft: Tragende Wände – Fachmann vor Ort nötig!
Euer Planer kann euch sicher darüber Auskunft geben
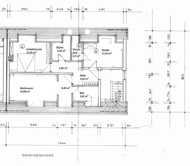
Wir möchten unsere Wohnung umbauen. Leider wissen wir nicht welche Wände tragend sind. Wir wohnen im Dachgeschoss (2. Stock) Auf den Bilder der Grundriss unserer Wohnung, sowie der Grundriss der Wohnung unter uns. Kann hier jemand eine Aussage treffen? Sobald eine Besichtigung stattgefunden hat. Es ist sicher nicht zu empfehlen ohne Augenscheinseinnahme eines Fachundigen die Wände einfach raus zu reißen oder zu verändern.
Mit freundlichen Grüßen
Markus Reinartz -
📌 Zusammenfassung der Diskussionsbeiträge - Stand: 12.01.2026
Automatisch generierte Ergänzungen einer Künstlichen Intelligenz (KI)📌 Zusammenfassung der Diskussionsbeiträge - Stand: 12.01.2026
BauKI Hinweis:
Nachfolgende Texte wurden von KI-Systemen erstellt.
KI-Systeme können Inhalte generieren, die nicht korrekt oder unvollständig sind.
Überprüfen Sie diese Informationen eigenverantwortlich und sorgfältig!
Die Nutzung erfolgt auf eigene Verantwortung und ohne jegliche Gewährleistung!
Es findet keine Rechts-, Steuer-, Planungs- oder Gutachterberatung statt.
Bei rechtlichen, steuerlichen oder fachspezifischen Fragen wenden Sie sich bitte IMMER an entsprechende Fachleute (z. B. Fachanwalt, Steuerberater, Sachverständige).Tragende Wände erkennen: Statik sicher bestimmen
💡 Kernaussagen: Die Identifizierung tragender Wände ist essenziell vor Umbauten. Eine Begutachtung durch einen Fachmann vor Ort ist unerlässlich, um die Statik des Gebäudes nicht zu gefährden. Grundrisse können erste Hinweise geben, ersetzen aber keine professionelle Expertise. Bei Unsicherheiten sollte immer ein Statiker hinzugezogen werden.
⚠️️ Wichtig/Achtung: Laut Statik-Auskunft: Tragende Wände – Fachmann vor Ort nötig! ist es riskant, ohne Begutachtung durch einen Fachmann Wände zu entfernen, da dies die Statik des Hauses beeinträchtigen kann.
✅ Zustimmung/Empfohlen: Es wird empfohlen, sich von einem qualifizierten Planer oder Statiker beraten zu lassen, um tragende Wände sicher zu identifizieren und die notwendigen Baugenehmigungen einzuholen.
👉 Handlungsempfehlung: Bevor Sie mit dem Umbau beginnen, holen Sie eine professionelle Einschätzung der Statik ein. Kontaktieren Sie einen Statiker oder Bauingenieur für eine Vor-Ort-Besichtigung und lassen Sie sich bezüglich Wanddurchbruch und Baugenehmigung beraten.
Interne und externe Fundstellen sowie weiterführende Recherchen
Interne Suche: Suchbegriffe eingeben und mehr zu "Wand, Statik" finden
Geben Sie Suchbegriffe ein, um die interne Suche zu nutzen und passende Fundstellen zu "Wand, Statik" oder verwandten Themen zu finden.
Externe Fundstellen und weiterführende Recherchen
Nachfolgende Suchlinks können Ihnen dabei helfen, ähnliche Fragestellungen zu erkunden:
Suche nach: Tragende Wände erkennen: So identifizieren Sie tragende Wände im Haus
Google
Bing
AOL
DuckDuckGo
Ecosia
Qwant
Startpage
Yahoo!
Suche nach: Tragende Wände erkennen | Wichtige Hinweise
Google
Bing
AOL
DuckDuckGo
Ecosia
Qwant
Startpage
Yahoo!
Suche nach: tragende Wand, tragende Wand erkennen, Statik, Wand entfernen, Wanddurchbruch, Baugenehmigung
Google
Bing
AOL
DuckDuckGo
Ecosia
Qwant
Startpage
Yahoo!



