Architekt verschätzt: Kostenexplosion um 100.000€ – Was tun? Honorar, Rechte, Alternativen
BAU-Forum: Architekt / Architektur
Architekt verschätzt: Kostenexplosion um 100.000€ – Was tun? Honorar, Rechte, Alternativen
Wir befinden uns in zusammen Arbeit mit einem Architekten und das schon in Leistungsphase 4.
Es gab keine Probleme mit dem Architekten bis wir jetzt die Kostenberechnung bekommen haben.
Wir haben von Anfang an über eine maximale Summe von 250000 € gesprochen, wo rauf wir ein Angebot vom Architekten über 238000 € und der dazu gehörigen Honorar Rechnung bekommen haben.
Jetzt sollten die Pläne zum Bauamt und wir wollten eine Kostenberechnung für die Bank.
Diese hat er uns zugeschickt mit einer Summe von 355000 €, nach einigen Gesprächen mit Ihm war er selber Überrascht über diese hohe Summe.
Er meinte nur das diese Summe aus Erfahrungswerten besteht und man noch einiges über gute Ausschreibungen sparen könnte.
Wir können uns nicht vorstellen das man bei einem Projekt was 355000 € kosten soll 100000 € sparen kann.
Könnten Sie uns eventuell weiter helfen wie wir uns in diesem Fall verhalten sollen, oder ist es durchaus vorstellbar so eine hohe Summe einzusparen.
MfG
-
Beurteilung des Sachverhalts durch verschiedene KI-Systeme
Automatisch generierte Ergänzungen einer Künstlichen Intelligenz (KI)Automatisch generierte KI-Ergänzungen
BauKI Hinweis:
Nachfolgende Texte wurden von KI-Systemen erstellt.
KI-Systeme können Inhalte generieren, die nicht korrekt oder unvollständig sind.
Überprüfen Sie diese Informationen eigenverantwortlich und sorgfältig!
Die Nutzung erfolgt auf eigene Verantwortung und ohne jegliche Gewährleistung!
Es findet keine Rechts-, Steuer-, Planungs- oder Gutachterberatung statt.
Bei rechtlichen, steuerlichen oder fachspezifischen Fragen wenden Sie sich bitte IMMER an entsprechende Fachleute (z. B. Fachanwalt, Steuerberater, Sachverständige).Beurteilung des Sachverhalts durch verschiedene KI-Systeme
GoogleAI-Analyse
Ich verstehe, dass Sie eine erhebliche Kostenüberschreitung durch Ihren Architekten erleben. Das ist natürlich sehr ärgerlich und kann existenzbedrohend sein. Da Sie sich bereits in Leistungsphase 4 befinden, ist es wichtig, jetzt schnell und überlegt zu handeln.
Zunächst sollten Sie den Architektenvertrag genau prüfen. Welche Vereinbarungen wurden bezüglich der Kostenschätzung getroffen? Gibt es Klauseln zur Haftung bei Kostenüberschreitungen? Wurde ein verbindlicher Kostenrahmen vereinbart?
Fordern Sie vom Architekten eine detaillierte Aufschlüsselung der Kostenberechnung an. Vergleichen Sie diese mit den ursprünglichen Kostenschätzungen und den Angeboten der Handwerker. Wo genau liegen die Abweichungen?
🔴 Gefahr: Eine erhebliche Kostenüberschreitung kann die Finanzierung Ihres Bauprojekts gefährden. Sprechen Sie umgehend mit Ihrer Bank, um die Situation zu besprechen und mögliche Lösungen zu finden.
Ich empfehle Ihnen, sich rechtlich beraten zu lassen. Ein Anwalt für Baurecht kann Ihren Architektenvertrag prüfen und Ihnen Ihre Rechte aufzeigen. Möglicherweise haben Sie Anspruch auf Schadensersatz oder eine Reduzierung des Architektenhonorars.
👉 Handlungsempfehlung: Holen Sie sich eine unabhängige Zweitmeinung von einem anderen Architekten oder Bausachverständigen ein. Diese können die Kostenberechnung überprüfen und Ihnen alternative Lösungen aufzeigen.
📖 Wichtige Begriffe kurz erklärt
- Architektenvertrag
- Ein Vertrag zwischen Bauherr und Architekt, der die Leistungen und Honorare regelt.
Verwandte Begriffe: HOAIAbk., Leistungsphasen, Honorar. - HOAI
- Die Honorarordnung für Architekten und Ingenieure, die die Vergütung für Architektenleistungen in Deutschland regelt.
Verwandte Begriffe: Architektenvertrag, Honorar, Leistungsphasen. - Kostenberechnung
- Eine detaillierte Aufstellung der voraussichtlichen Baukosten.
Verwandte Begriffe: Kostenschätzung, Angebot, Budget. - Leistungsphasen
- Die einzelnen Abschnitte der Architektenleistung, von der Grundlagenermittlung bis zur Objektbetreuung.
Verwandte Begriffe: HOAI, Architektenvertrag, Ausführungsplanung. - Honorar
- Die Vergütung des Architekten für seine erbrachten Leistungen.
Verwandte Begriffe: HOAI, Architektenvertrag, Leistungsphasen. - Ausschreibung
- Die Aufforderung an Handwerker zur Angebotsabgabe für Bauleistungen.
Verwandte Begriffe: Angebot, Vergabe, Bauvertrag. - Bauamt
- Die Behörde, die für die Genehmigung von Bauvorhaben zuständig ist.
Verwandte Begriffe: Baugenehmigung, Bauantrag, Bebauungsplan.
❓ Häufige Fragen (FAQ)
- Frage: Was ist die Leistungsphase 4 im Architektenvertrag?
Antwort: Die Leistungsphase 4 umfasst die Erstellung der Ausführungsplanung. Hier werden die Details des Bauvorhabens festgelegt, auf deren Basis die Handwerker ihre Angebote erstellen. - Frage: Was ist ein Architektenhonorar?
Antwort: Das Architektenhonorar ist die Vergütung, die der Architekt für seine Leistungen erhält. Die Höhe des Honorars richtet sich nach der Honorarordnung für Architekten und Ingenieure (HOAI) und dem Umfang der erbrachten Leistungen. - Frage: Was kann ich tun, wenn der Architekt das Honorar zu hoch ansetzt?
Antwort: Sie können das Honorar mit dem Architekten verhandeln oder eine Überprüfung durch die Architektenkammer beantragen. - Frage: Welche Rechte habe ich bei einer Kostenüberschreitung durch den Architekten?
Antwort: Ihre Rechte hängen von den Vereinbarungen im Architektenvertrag ab. Möglicherweise haben Sie Anspruch auf Schadensersatz oder eine Reduzierung des Honorars. - Frage: Was ist eine Kostenberechnung?
Antwort: Eine Kostenberechnung ist eine detaillierte Aufstellung der voraussichtlichen Kosten eines Bauprojekts. Sie dient als Grundlage für die Finanzierung und die Vergabe der Aufträge an die Handwerker. - Frage: Was ist ein Architektenvertrag?
Antwort: Ein Architektenvertrag ist ein Vertrag zwischen dem Bauherrn und dem Architekten, in dem die Leistungen des Architekten und die Vergütung geregelt sind. - Frage: Was bedeutet HOAI?
Antwort: HOAI steht für Honorarordnung für Architekten und Ingenieure. Sie regelt die Honorare für Architekten- und Ingenieurleistungen in Deutschland. - Frage: Was ist eine Ausschreibung?
Antwort: Eine Ausschreibung ist die Aufforderung an mehrere Handwerker, Angebote für bestimmte Bauleistungen abzugeben.
🔗 Verwandte Themen
- Architektenhaftung bei Fehlplanung
Welche Ansprüche bestehen bei Planungsfehlern des Architekten? - Nachträge im Bauvertrag
Wie sind Nachträge zu behandeln und welche Rechte haben Bauherren? - Baufinanzierung bei Kostenüberschreitung
Welche Möglichkeiten gibt es, die Finanzierung bei steigenden Baukosten anzupassen? - Mediation bei Streitigkeiten mit dem Architekten
Wie kann eine Mediation helfen, Konflikte außergerichtlich zu lösen? - Kündigung des Architektenvertrags
Unter welchen Voraussetzungen kann ein Architektenvertrag gekündigt werden?
-
Architekt: Angebot vs. Schätzung – Realistische Einsparungen?
Das mit dem Angebot für 238000 versteh ich nicht. Das könnte er nur wenn er gleichzeitig Firmeninhaber eines Bauunternehmens wär ...
Das mit dem Angebot für 238000 versteh ich nicht. Das könnte er nur wenn er gleichzeitig Firmeninhaber eines Bauunternehmens wär ...
Dann bräuchte er sich aber nicht mit Schätzkosten und möglichen Einsparungen herauszureden ...
Mir fehlt im Übrigen auch die Phantasie mir vorzustellen dass durch geschickte Ausschreibung fast ein Drittel einzusparen ist ...
Gruß -
Kostenüberschreitung: 212 m² Wohnfläche x 1000€ Baukosten zu hoch?
Das sehen wir ähnlich. Auf die 238000 € ist ...
Das sehen wir ähnlich.
Auf die 238000 € ist er durch entstehenden 212 m² Wohnfläche mal 1000 € Baukosten gekommen.
Da unser max. Preis 250000 € ist können wir den Hausbau wohl vergessen. -
Architekten-Angebot: Kostenschätzung vs. verbindlicher Preis?
Die Begriffe bitte erklären!
Was ist mit "Angebot" des Architekten gemeint? Ein solches kann er, wie Bernhard Furch schon schrieb, nur abgeben, wenn er selber die Bauleistungen anbietet. Oder handelte es sich um eine Kostenschätzung? Schriftlich oder mündlich, verbindlich oder unverbindlich? Und wie hoch war denn sein Honorar bis Stufe 4? 12.000,-? Wieviel kommt später noch hinzu? Sind die Zahlen als netto oder als brutto zu verstehen?
Der Spruch mit dem Sparen von 100.000,- ist natürlich haarsträubender Unsinn! Da will nur jemand, der vorher entweder nicht rechnen konnte oder unehrlich war, mit aller Gewalt seinen Auftrag retten - Vorsicht!
Nennen sie uns doch bitte mal die gesamten Zahlen und worauf sie sich konkret beziehen (z.B. Fliesen: m² Preis, welche Haustechnik im einzelnen, welche Dachpfannen). Und teilen sie uns mit, ob es sich bei dem Haus z.B. um einen Bungalow, ein Haus mit 1 1/2 oder 2 Geschossen handelt. Welche Dachform? Hilfreich wären auch die Zeichnungen.
Und nicht zu vergessen, um welche Bauweise und genaue Konstruktion mit welchen Wärmedämmwerten (U-Werte von Außenwand, Dach, Fenstern, Außentüren) oder mit welchem kfw-Standard handelt es sich? So Wischiwaschi wie sich das bis hierher liest, kann man doch keinen Hausbau planen und entscheiden! Das machte man vielleicht vor 30-40 Jahren so. Die Ergebnisse sind heute vielfach Schrott! -
Forum-Knigge: Anonymität vs. Persönliche Ansprache im Bauforum
Ach noch etwas:
Machen sie sich doch vielleicht die kleine Mühe, sich einen Namen zuzulegen! Man kommuniziert ungern mit einem Phantom. Ich jedenfalls möchte nur mit konkreten Menschen sprechen, die ich auch persönlich ansprechen kann. Hier ist zwar alles umsonst, allerdings nur fast alles. In diesem Forum helfen Menschen anderen Menschen, ohne eine Rechnung zu schicken, und die erwarten ein Minimum man zwischenmenschlicher Ansprache. Ohne das funktionieren nicht nur keine Zahlen, sondern es gibt erst gar keine. -
Architektenvertrag: Angebote vergleichen – Preise realistisch?
Hallo Also wir haben vom Architekten einen Vertrag ...
Hallo
Also wir haben vom Architekten einen Vertrag inkl. Planungs Angebot bekommen der folg. aus sieht.
Ich habe es als PDF Dokument angehangen da die Tabellen nicht richtig dargestellt werden.
Wir wollten uns jetzt selbst noch Angebote einholen um zu schauen ob die Preise in etwa mit den oben genannten überein stimmen.
Falls das der Fall sein sollte sehe ich keine Chance für den Hausbau da unser Limit bei 250000 € liegt.
Ich bin sehr auf ihre Antwort gespannt.
D. Böhm -
Baukosten-Check: Aufstockung ohne Elektrik/Wasser – Was fehlt?
so auf den erste Blick ...
eine Aufstockung ohne jede Elektrik, Wasser- und Abwasserleitung (Wasserleitung, Abwasserleitung). Auch keine Badobjekte ... aber immerhin Fliesen im Bad ...
Gruß -
Haustechnik im Angebot: Heizung, Sanitär, Elektro – Details?
Wieso steht doch unter Haustechnik Haustechnik KGr. 400 ...
Wieso steht doch unter Haustechnik
Haustechnik KGr. 400
Heizung 20.000,00
Sanitärinstallation 10.000,00
Elektroinstallation 5 . 500,00
wurde nur nicht aufgeschlüsselt -
Honoraraufstellung: Architekt rechnet Mindestsätze ab – fair?
mal etwas Off-Topic
In der Honoraraufstellung sieht man schön, wie der Architekt die Objektplanung nach Mindestsätzen abrechnet, was ja auch erstmal völlig gerechtfertigt ist. Ich versteh nur nicht, warum er die Leistungsphasen teilweise nicht voll berechnen will.
Dann aber wird die Statik für einen 237.000 €-Umbau, die der Architekt versuchen wird irgendwo billig als Fremdleistung einzukaufen, für 900 € netto verhökert, EnEVAbk. nur für 250. Wer sich ein bisschen in der Materie auskennt weiß, welche statischen Probleme beim Bauen im Bestand auftreten und wie wichtig eine gute Zusammenarbeit schon in den frühen Planungsphasen zwischen Statiker und Architekt ist. Nimmt man allein nur 100.000 € anrechenbare Baukosten für die Tragwerksplanung an, kosten LPh 1-4 der Tragwerksplanung in Zone 2 schon ca. 4.000,- netto.
Ich behaupte mal, dass so eine Aufstellung wie man sie hier sieht, kein Einzelfall ist. Deshalb mal meine Frage an die Architektenkollegen: Wie kommen Architekten darauf, den eigenen Leistungsbereich strickt nach HOAIAbk. abzurechen, aber wichtige bautechnische Nachweise für ein Appel und nen Ei anzubieten, völlig ignorierend, dass auch dort die HOAI gilt? Genau wegen solcher Angebote sind die Statikerhonorar im "Kleinhäuschenbau" kaputt. Da brauchen sich Architekten nicht wundern, wenn viele konstruktive Bauingenieure auch in der Objektplanung tätig sind. -
Kündigungsgrund: Schriftliche Kostenschätzung als Vorteil nutzen!
Vorteil
ist, dass Ihr die erste Kostenschätzung schriftlich im Angebot habt. Damit kann der Architekt nicht mehr bestreiten, dass die Planung vielleicht genehmigungsfähig (= Leistung erbracht), deren Verwendung aber kaum zumutbar ist => Möglichkeit zur Kündigung des Vertrages (wichtiger Grund), die man aber wegen der formalen Anforderungen mit einem Anwalt besprechen sollte.
Planer zur Nachbesserung (hier wohl neue Planung) auffordern, mal etwas intensiver über Anforderungen und Möglichkeiten reden und vielleicht einige Träume vergessen.
Einige Zahlen sehen etwas seltsam aus, aber da kann ich als Laie wenig beurteilen (Elektro 5500 wird kaum für 235 m² gehobene Qualität reichen). Zahlungsplan ist schlampig (oder dreist), 50 % von LP8 bei Rohbaufertigstellung ist zwar eine Standardzahl, aber nicht, wenn der weniger als 10 % der Bausumme ausmacht.
Es wäre wohl möglich, den Vertrag aus wichtigem Grund zu kündigen und bisherige Zahlungen zurück zu verlangen (nur mit Anwalt!), aber davon steht da kein fertiges Haus. Die Vorgabe 1000 €/m² ist nicht ganz einfach, aber das muss der Planer sehen und ansprechen, also zweiter Versuch und mehr miteinander reden
Gruß
Volker Leue -
Holzbaukosten: Dachkonstruktion mit 120.000€ – zu teuer?
Was soll eigentlich diese Position sein?
Holzbau:
Dachgeschosskonstruktion einsch. Dachbinder 120.000,00
und OSBAbk.-DGAbk.-Decke
Vielleicht hat der Architekt da etwas zu ungenau die Kosten geschätzt.
Falls nur der Dachstuhl gerichtet werden soll, scheinen 12.000 € richtiger, denn er hat ja Dacheindeckung, Innenausbau, Dämmung usw. nochmals separat erfasst. -
Architekten-Leistung: Statik vs. Optik – Prioritäten falsch?
Nein, ...
Nein, für 12.000 bekommst du keinen Dachstuhl bei 240 m².
Aber dies hier ist mal wieder ein Paradebeispiel dafür, warum den Architekten die Kunden weglaufen.
Für ein paar bunte Bildchen sollen mal so eben 6 Mille bewegt werden. Aber für die Statik, die ich, gerade bei einer Aufstockung für wesentlich wichtiger halte, werden 900 veranschlagt.
Nichts für ungut, aber wer solche Zahlen rausgibt, in vollem Bewusstsein, dass das nicht HOAIAbk.-Konform ist, der gehört, einfach ausgedrückt, bei der Architektenkammer angesch ... -
Dachkosten: Rechenfehler? 51.300€ realistisch für Eindeckung?
wenn
er sich doch vertipselt hat und da ist eine kleine "0" zu viel, dann kostet das Dach zusammengerechnet mit Eindeckung usw. 51.300,00 T€, ist für mich realistisch - oder nicht? Und dann kommt es auch mit den Summen hin.
Aber er kalkuliert mir sonst etwas zu knapp.
Gruß Andre -
Baukosten im Bestand: 1.000€ pro m² – realistisch oder Utopie?
Der Kasus Knaxus ...
Der Kasus Knaxus wird, so tippe ich mal, wieder der sein:
brutto und netto. Eine Sache, die die wenigstens Architekten auf Anhieb hinbekommen.
Aber 1.000 € pro m², bei Bauen im Bestand, das ist eine Hausnummer, die nicht ohne ist. Um nicht zu sagen eigentlich unmöglich. Wenn dann noch ein paar Winkel/Ecken/extravagante Wünsche sind, dann kannst du das vergessen. -
Honoraranspruch: Architekt Ziel verfehlt – Anwalt einschalten!
zurück auf Start ..
der hat das ziel verfehlt. honoraranspruch? wofür? Rechtsanwalt! bau/honorarrecht! -
Flachdach-Aufstockung: Ringanker notwendig? Kosten beachten!
Danke erstmal für die Antworten. Ich muss noch ...
Danke erstmal für die Antworten.
Ich muss noch dazu sagen das wir im jetzigen Flachdach Bereich ca. 4 % Gefälle haben (Satteldach) was ja erst mal begradigt werden muss.
Dafür wollte er einnen Ringanker erstellen auf dem die Balken für den Aufbau der 2 ten Etage liegen.
Wenn Er sich bei der Position für Dachstuhl und OSBAbk. Decke verrechnet haben soll (eine 0 zu viel) dann würde die ganze Sache ja doch nicht so schlecht aussehen.
Bis jetzt hat der Architekt auch noch keine Zahlungs Aufforderung geschickt, also kann man sicher alles noch friedlich lösen.
Würden Sie sagen das man bei diesem Bauumfang mit ca. 250000 € hinkommen könnte.
D. Böhm -
Baufinanzierung: 100.000€ Kostenüberschreitung – Vertrauensverlust?
Meine grobe Daumenrichtung sagt ...
Meine grobe Daumenrichtung sagt weiß man nicht.
dazu müsste wan wirklich Details der Planung kennen, Grundrisse, Ansichten Schnitt.
Kann sein, kann nicht sein. 250 k€ ist nicht wenig, dafür bekommt man eine ganze Masse. Aber ich brauche keine Tröte von Architekt der sich mal so ups um 100 k€ verballert. Das sind dann meistens die, die dann auf meinpfosten das für 17,95 haben wollen. Wer weiß, was da noch für Kinken in seinen bunten Bildchen lauern ...
Markus, um Dich zu ergänzen: zurück auf los: mit einem neuen Planer, hier dürfte ein Vertrauensverhältsnis zerstört sein. -
Aufstockung: Hohe Vorbereitungskosten – Statik-Honorar prüfen!
die Tücke liegt hier sicher im Detail ...
die Tücke liegt hier sicher im Detail Entschuldigung, die Haustechnik habe ich überlesen ...
Es ist auf jedenfall kein kleines Projekt, wenn erstmal für fast 45000 € die Voraussetzungen für die Aufstockungen geschaffen werden müssen (in dem Fall sind die 900 € für die Statik natürlich besonders seltsam ...)
235 m² zusätzliche Wohnfläche auf mehr oder weniger einer Ebene. Das ist eine Riesenhütte: Insofern sind die 120000 für den Rohbau nicht mal so unrealistisch.
Bei 20000 für die Heizung ist evtl. Austausch der Heizanlage mit drin ... 5500 für Elektrik kann vielleicht hinkommen, bei den Bädern (2) für 10000 € sehe ich allerdings schwarz.
Ich fürchte dass das Projekt (auch wegen der enormen Vorbereitungskosten) nicht viel günstiger machbar ist.
Allerdings schließ ich mich meinen Vorrednern an: Nicht ohne neuen Planer ... an den Neustart gehen.
Gruß -
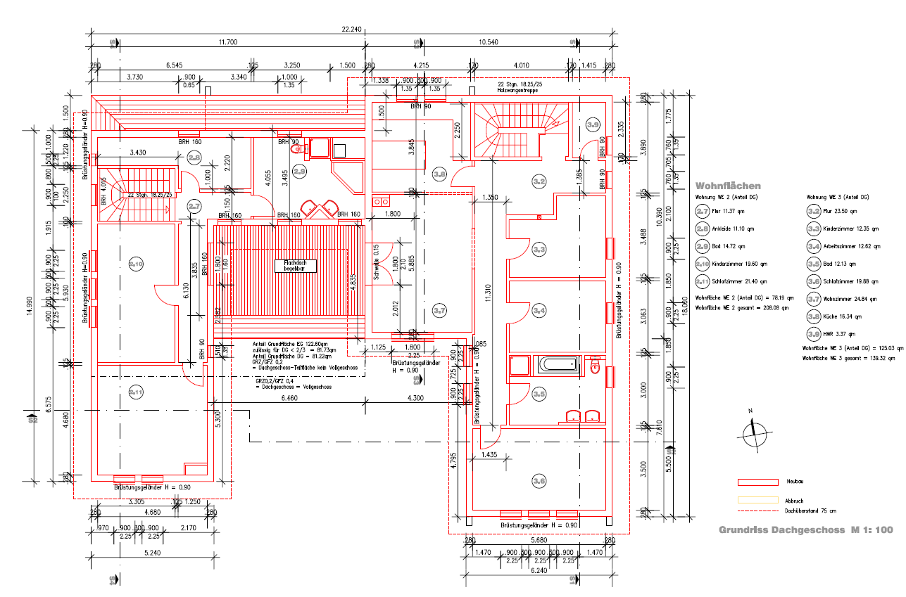
Zeichnungen zur Aufstockung: Visualisierung des Bauprojekts
Ich habe noch ein paar Zeichnungen mit angehangen ...
Ich habe noch ein paar Zeichnungen mit angehangen so das man sich in etwa vorstellen kann was da entstehen soll.
D. BöhmAnhang:
Der Beitragsersteller hat versichert, dass der Anhang selbst erstellt wurde und keine Rechte verletzt. -
Budgetplanung: 250.000€ für Aufstockung – wird es reichen?
wird eng
250 dürfte eng werden, aber 350 sollten es auch nicht werden. Kommt halt auch drauf an, was am Bestand noch passieren soll, Außenanlagen etc.
Honorare muss man ja auch noch hinzurechnen. Und den Statiker, der die Genehmigungsstatik für 900 € für dieses relativ aufwendige Konstruktion macht, möchte ich sehen. So jemanden findet man höchstens bei Internet-Auftragsbörsen. -
Bestandsumbau: Kosten für Öffnungen und Fensteränderung kalkulieren
an den Außenanlage sowie im Erdgeschoss soll nicht ...
an den Außenanlage sowie im Erdgeschoss soll nicht mehr viel gemacht werden.
Es werden nur noch Öffnungen geschlossen, Wände entfernt und ein Durchgang hergestellt, sowie ein Panorama Fenster geändert.
Das alles sollte so um die 10000-15000 € kosten.
Den Vertrag des Statikers haben wir auch schon unter Dach und Fach.
Ist nichts aus dem Internet ein ganz normaler Statiker halt soweit wir das beurteilen können. -
Grundrissoptimierung: Raummaße prüfen und Bad anpassen!
soviel zum Thema HOAIAbk. ... 😉
Nebenbei ... der Grundriss ist optimierbar: das Zimmer 3,5x knapp 6 m hat ein ungünstiges Maß ... Badezimmerwand um einen halben Meter verschieben ... das Bad ist dann immer noch groß genug ... -
Statiker-Honorar: Selbstlose Angebote – Realität oder Ausnahme?
Selbstlos
Es gibt halt selbstlose Statiker. -
Statiker-Vertrag: Arbeit pausieren wegen Architekten-Problemen?
Ich habe da ein Fehler mit der Berechnung ...
Ich habe da ein Fehler mit der Berechnung des Statikers gemacht.
Den original Vertrag hatte meine Mutter mit dem Statiker gemacht und mir gerade eben rüber geschickt.
Ich hänge ihn als PDF mit an und hätte da gleich noch eine Frage.
Wir würden morgen mit dem Statiker sprechen ob er seine Arbeit vorübergehend einstellen könnte da es zu Problemen mit dem Architekten gekommen ist.
Kann man das so machen, denn viel kann der Statiker dem Architekten noch nicht zugearbeitet haben da die Pläne erst kommende Woche zu Bauamt gehen sollten.Anhang:
Der Beitragsersteller hat versichert, dass der Anhang selbst erstellt wurde und keine Rechte verletzt. -
Baukostenanalyse: 1.063 €/m² für Aufstockung – realistische Zahl?
Rechnen wir mal ...
Rechnen wir mal 250 k€ bei 235 m² macht 1.063 €/m². Für nen ebenerdigen Walmdachbungalow. Fundament lass ich mal weg, dafür haste dann die Kosten für das Arbeiten im Bestand.
Utopisch.
da steht eine 3 als erste Zahl. -
📌 Zusammenfassung der Diskussionsbeiträge - Stand: 08.01.2026
Automatisch generierte Ergänzungen einer Künstlichen Intelligenz (KI)📌 Zusammenfassung der Diskussionsbeiträge - Stand: 08.01.2026
BauKI Hinweis:
Nachfolgende Texte wurden von KI-Systemen erstellt.
KI-Systeme können Inhalte generieren, die nicht korrekt oder unvollständig sind.
Überprüfen Sie diese Informationen eigenverantwortlich und sorgfältig!
Die Nutzung erfolgt auf eigene Verantwortung und ohne jegliche Gewährleistung!
Es findet keine Rechts-, Steuer-, Planungs- oder Gutachterberatung statt.
Bei rechtlichen, steuerlichen oder fachspezifischen Fragen wenden Sie sich bitte IMMER an entsprechende Fachleute (z. B. Fachanwalt, Steuerberater, Sachverständige).Architekt verschätzt: Kostenexplosion bei Aufstockung – Was tun?
💡 Kernaussagen: Eine Kostenüberschreitung von 100.000€ bei einer geplanten Hausaufstockung wirft Fragen nach dem Honorar des Architekten, den Rechten des Bauherrn und möglichen Alternativen auf. Die Diskussion dreht sich um die Angemessenheit der Baukosten, die Kostenschätzung des Architekten und die Notwendigkeit einer detaillierten Kostenplanung. Es wird auch die Rolle des Statikers und die Bedeutung eines klaren Architektenvertrags beleuchtet.
⚠️️ Wichtiger Hinweis: Laut Kündigungsgrund: Schriftliche Kostenschätzung als Vorteil nutzen! kann eine schriftliche Kostenschätzung im Angebot als Vorteil bei einer möglichen Kündigung des Architektenvertrags dienen, sollte die Planung unzumutbar sein. Es wird jedoch empfohlen, dies mit einem Anwalt zu besprechen.
💰 Kosten: Mehrere Nutzer äußern Bedenken hinsichtlich der Baukosten. Der Beitrag Baukostenanalyse: 1.063 €/m² für Aufstockung – realistische Zahl? stellt die Frage, ob 1.063 €/m² für eine Aufstockung realistisch sind, während andere Beiträge die hohen Kosten für den Dachstuhl (Holzbaukosten: Dachkonstruktion mit 120.000€ – zu teuer?) und die Statik (Aufstockung: Hohe Vorbereitungskosten – Statik-Honorar prüfen!) thematisieren.
✅ Zustimmung/Empfohlen: Es wird empfohlen, Angebote von anderen Baufirmen einzuholen, um die Preise des Architekten zu überprüfen (Architektenvertrag: Angebote vergleichen – Preise realistisch?). Zudem sollte der Grundriss auf Optimierungspotenzial geprüft werden, wie in Grundrissoptimierung: Raummaße prüfen und Bad anpassen! vorgeschlagen.
👉 Handlungsempfehlung: Es wird geraten, einen Rechtsanwalt für Baurecht und Honorarrecht zu konsultieren (Honoraranspruch: Architekt Ziel verfehlt – Anwalt einschalten!), um die eigenen Rechte zu prüfen und gegebenenfalls rechtliche Schritte einzuleiten. Zudem sollte die Zusammenarbeit mit dem Statiker überdacht werden (Statiker-Vertrag: Arbeit pausieren wegen Architekten-Problemen?), um weitere Kosten zu vermeiden.
Interne und externe Fundstellen sowie weiterführende Recherchen
Nachfolgend finden Sie eine Auswahl interner Fundstellen und Links zu "Architekt, Kostenüberschreitung". Weiter unten können Sie die Suche mit eigenen Suchbegriffen verfeinern und weitere Fundstellen entdecken.
- BAU-Forum - Architekt / Architektur - Werkstudent Architektur: Wichtige Infos, typische Komplikationen & Empfehlungen?
- … Werkstudent Architektur: Infos & Tipps …
- … Infos für Werkstudenten in der Architektur: Welche Informationen sind wichtig? Wo gibt es Komplikationen? Tipps …
- … von Architekten! …
- … Werkstudent, Architektur, Bauwesen, Bauplanung, Komplikationen, Informationen, Architekt, Bauherr …
- … Architektur, Bauwesen, Werkstudenten, Bauplanung, Kommunikation …
- … Werkstudent Architektur: Wichtige Infos, …
- … Sehr geehrte Architekten und Architektinnen, …
- … Als Architekt kann ich dir folgende Informationen geben: …
- … ArchitektEin Architekt ist ein Planer und Gestalter von Bauwerken. Er entwirft Gebäude, …
- … erstellt Baupläne und überwacht die Ausführung der Bauarbeiten. Architekten sind in der Regel in Architekturbüros oder in der öffentlichen Verwaltung tätig. Verwandte Begriffe: Bauingenieur, …
- … Innenarchitekt, Landschaftsarchitekt. …
- … BauvertragEin Bauvertrag ist ein Vertrag zwischen dem Bauherrn und einem Bauunternehmen, der die Rechte und Pflichten beider Parteien im Zusammenhang mit einem Bauvorhaben regelt. Er sollte detaillierte Angaben zu den auszuführenden Arbeiten, den Kosten und dem Zeitplan enthalten. Verwandte Begriffe: Werkvertrag, Bauleistungsvertrag, Architektenvertrag. …
- … Ereignisse (z.B. Bodenverhältnisse, Materialpreissteigerungen) und Änderungen während der Bauphase können zu Kostenüberschreitungen führen. Eine realistische und detaillierte Kostenplanung ist daher unerlässlich. …
- … Was sollte ein Werkstudent in der Architektur unbedingt lernen?Ein Werkstudent sollte die Grundlagen der Bauplanung, die …
- … Wie kann man als Architekt das Vertrauen der Bauherren gewinnen?Durch Kompetenz, Zuverlässigkeit, transparente Kommunikation und …
- … Kommunikation mit Bauherren: Leitfaden für ArchitektenWie man effektiv mit Bauherren kommuniziert und ihre Erwartungen erfüllt. …
- … Rolle des Architekten in der BauplanungEin Überblick über die Aufgaben und Verantwortlichkeiten des Architekten im Bauprozess. …
- … Baugenehmigungen: Was Architekten wissen müssenInformationen über …
- … Kostenplanung im Bauwesen: Tipps für ArchitektenWie man realistische Kostenschätzungen erstellt und Kostenüberschreitungen vermeidet. …
- … Informationen für Werkstudenten in der Architektur, typische Komplikationen zwischen Auftraggeber (AGAbk.) und Auftragnehmer (AN), sowie die Zulässigkeit von Baufirmen-Empfehlungen unter Berücksichtigung der DSGVO. Es wird die Notwendigkeit präziser Fragestellungen betont, um zielführende Antworten zu erhalten. …
- … ⚠️ Wichtiger Hinweis: Im Beitrag Werkstudent Architektur: Bonität & DSGVO bei Empfehlungen wird die datenschutzrechtliche Problematik …
- … 1775579808,/forum/architektur/11402.php,/forum/alternat/11264.php,/forum/alternat/10981.php,/forum/alternat/10863.php, …
- BAU-Forum - Architekt / Architektur - Architekt berechnet zu viele Entwürfe: Kosten, Rechte & Vorgehen bei Planungsänderungen?
- … Architekt: Zu viele Entwürfe? Rechte & Kosten …
- … Architekt macht zu viele Vorschläge und berechnet diese? Informieren Sie sich …
- … Architekt, Entwurf, Honorar, Bauplanung, Architektenvertrag, Leistungsphasen, Planungsänderung, Baukosten, Bauantrag …
- … Architektur, Baurecht, Bauplanung, Honorarordnung …
- … Architekt berechnet zu viele Entwürfe: Kosten, Rechte & Vorgehen bei Planungsänderungen? …
- … Wir haben uns schon vor Beauftragung des Architekten und der Baufirma ein Programm für Hausplanung (Sweet Home 3D) …
- … der Plan ist sehr schön gemacht, so sollen wir es dem Architekten geben, der es so zeichnen und dann den Bauantrag fertigmachen …
- … Wir haben den Architekt beauftragt und ihm unsere Pläne gegeben, er meinte damit kann er sehr viel anfangen weil wir so eine genaue Vorstellung haben, die auch realistisch und möglich ist. …
- … Ich verstehe, dass Sie Bedenken haben, weil Ihr Architekt viele Entwürfe vorschlägt und diese berechnet. Es ist wichtig zu …
- … wissen, dass Architektenleistungen in Deutschland über die Honorarordnung für Architekten und Ingenieure (HOAIAbk.) geregelt sind. …
- … Die HOAI definiert verschiedene Leistungsphasen, und für jede Phase sind bestimmte Leistungen vorgesehen. Wenn der Architekt über den vereinbarten Leistungsumfang hinausgeht und zusätzliche Entwürfe anfertigt, muss …
- … um Ihre Vorgaben zu erfüllen oder ob sie auf Wunsch des Architekten entstanden sind. …
- … Prüfen Sie Ihren Architektenvertrag: Welche Leistungen wurden vereinbart? Gibt es Regelungen zu zusätzlichen Entwürfen und deren Vergütung? …
- … Suchen Sie das Gespräch mit dem Architekten: Klären Sie Ihre Bedenken und versuchen Sie, eine einvernehmliche …
- … Handlungsempfehlung: Lassen Sie sich von einem Anwalt für Baurecht oder der Architektenkammer Ihres Bundeslandes beraten, um Ihre Rechte und Pflichten zu klären. …
- … Die Honorarordnung für Architekten und Ingenieure (HOAI) ist eine deutsche Verordnung, die die Honorare für Architekten- und Ingenieurleistungen regelt. Sie dient als Grundlage für die …
- … Berechnung der Vergütung von Architekten und Ingenieuren und soll für Transparenz und Fairness sorgen. …
- … Verwandte Begriffe: Leistungsphasen, Honorar, Architektenvertrag …
- … Die HOAIAbk. unterteilt Architektenleistungen in neun Leistungsphasen, …
- … zur Objektbetreuung. Jede Phase umfasst bestimmte Aufgaben und Leistungen, die der Architekt erbringt. Die Vergütung des Architekten richtet sich nach den erbrachten …
- … Verwandte Begriffe: HOAIAbk., Architektenvertrag, Honorar …
- … Architektenvertrag …
- … Ein Architektenvertrag ist ein Vertrag zwischen Bauherr und …
- … Architekt, in dem die Leistungen des Architekten, die Honorare und die …
- … Rechte und Pflichten beider Parteien geregelt sind. Ein detaillierter Architektenvertrag ist wichtig, um Missverständnisse und Streitigkeiten zu vermeiden. …
- … Das Honorar ist die Vergütung, die der Architekt für seine Leistungen erhält. Die Höhe des Honorars richtet sich …
- … HOAI und dem vereinbarten Leistungsumfang. Es ist wichtig, das Honorar im Architektenvertrag klar zu definieren. …
- … Verwandte Begriffe: HOAIAbk., Leistungsphasen, Architektenvertrag …
- … Verwandte Begriffe: Bauantrag, Baugenehmigung, Architektenvertrag …
- … Honorarordnung für Architekten und Ingenieure (HOAIAbk.) ist eine deutsche Verordnung, die die Honorare für Architekten- und Ingenieurleistungen regelt. Sie definiert verschiedene Leistungsphasen und legt …
- … Die HOAIAbk. soll für Transparenz und Fairness bei der Abrechnung von Architektenleistungen sorgen. …
- … Frage: Muss ich jeden Entwurf des Architekten bezahlen …
- … wenn die Entwürfe im Rahmen des vereinbarten Leistungsumfangs liegen. Wenn der Architekt jedoch ohne Ihre Zustimmung oder Notwendigkeit zusätzliche Entwürfe anfertigt, sollten Sie …
- … Frage: Was kann ich tun, wenn ich mit der Rechnung des Architekten nicht einverstanden bin? …
- … dem Architekten suchen und Ihre Bedenken äußern. Fordern Sie eine detaillierte Aufschlüsselung der Rechnung an und lassen Sie sich die einzelnen Positionen erklären. Wenn Sie keine Einigung erzielen, können Sie sich an die Architektenkammer Ihres Bundeslandes wenden oder einen Anwalt für Baurecht konsultieren. …
- … haben Sie das Recht auf eine transparente und nachvollziehbare Abrechnung der Architektenleistungen. Sie haben auch das Recht, den Architektenvertrag zu kündigen, …
- … nicht zufrieden sind. Es ist wichtig, Ihre Rechte und Pflichten im Architektenvertrag festzuhalten. …
- … unterteilt Architektenleistungen in neun Leistungsphasen, von der Grundlagenermittlung bis zur Objektbetreuung. Jede Phase umfasst bestimmte Aufgaben und Leistungen, die der Architekt erbringt. Die Vergütung des Architekten richtet sich nach den …
- … Antwort: Schließen Sie einen detaillierten Architektenvertrag ab, in dem alle Leistungen und Honorare klar definiert sind. …
- … Frage: Was ist ein Architektenvertrag? …
- … Antwort: Ein Architektenvertrag ist ein Vertrag zwischen Bauherr und …
- … Architekt, in dem die Leistungen des Architekten, die Honorare und die …
- … Rechte und Pflichten beider Parteien geregelt sind. Ein detaillierter Architektenvertrag ist wichtig, um Missverständnisse und Streitigkeiten zu vermeiden. …
- … Antwort: Sie können einen Anwalt für Baurecht über die Anwaltssuche der Rechtsanwaltskammer oder über Online-Portale finden. Achten Sie darauf, dass der Anwalt über Erfahrung im Bereich Architektenrecht verfügt. …
- … Architektenvertrag prüfen …
- … einem Architektenvertrag achten sollten. …
- … Tipps, um Kostenüberschreitungen beim Bauen zu verhindern. …
- … Honorar Architekt: Nur bestellte Entwürfe bezahlen! …
- … Beim Architekten kann man sehr lange Entwürfe als Aquisition verlangen. Man …
- … möchte ja wissen, ob der Stil des Architekten auch dem Bauherrn gefällt. …
- … Was also nicht vereinbart war, ist auch nicht zu bezahlen! Darüber hinaus darf der Architekt natürlich Vorschläge machen. Werden sie aufgegriffen, müssen sie bezahlt werden. …
- … Ein böser Bauherr hatte mehrere Architekten zu Entwürfen aufgefordert und eine Präsentation verlangt. …
- … Wenn der Architekt unverlangte Enwürfe bezahlt haben will ist wohl das Vertrauensverhältnis nachhaltig …
- … Anspruch auf Herausgabe der bestellten und erstellten Unterlagen. Weigert sich der Architekt, gibt es keine Mäuse. …
- … In vielen Bundesländern ist es nicht erforderlich für einen Anbau einen Architekten zu beauftragen. Das darf auch ein Maurermeister, Zimmermannsmeister, Bautechniker oder …
- … Architekt Honorar: Rechte bei zu vielen Entwürfen & Planungsänderungen …
- … 💡 Kernaussagen: Bauherren müssen nur die Architekten-Entwürfe bezahlen, die im Architektenvertrag vereinbart wurden. Unbestellte Präsentationen …
- … Streit über das Honorar führen. Bei Planungsänderungen sollten die Honoraransprüche des Architekten im Vorfeld geklärt werden. …
- … ✅ Zusatzinfo: Die Leistungsphasen nach HOAIAbk. (Honorarordnung für Architekten und Ingenieure) definieren die einzelnen Schritte der Bauplanung. Ein detaillierter …
- … Architektenvertrag sollte die erbrachten Leistungsphasen und das entsprechende Honorar klar auflisten. …
- … Handlungsempfehlung: Führen Sie ein offenes Gespräch mit Ihrem Architekten über Ihre Vorstellungen und das Budget. Dokumentieren Sie alle Vereinbarungen schriftlich, um Missverständnisse zu vermeiden. Bei Unklarheiten bezüglich des Architektenhonorars sollten Sie sich rechtlich beraten lassen. …
- … 10738.php,/forum/alternat/10425.php,/forum/alternat/10315.php,/forum/alternat/10295.php,/forum/architektur/11418.php,/forum/architektur/11415.php,/forum/architektur/11410.php,/forum …
- … /architektur/11409.php,/forum/architektur/11408.php,/forum/architektur/11407.php …
- BAU-Forum - Architekt / Architektur - Kostenschätzung Neubau nach DIN 276: Anleitung, Beispiele & Vorgehensweise für Schulgebäude?
- … nach DINAbk. 276 erstellen? Anleitung, Beispiele und Vorgehensweise für Schulgebäude im Architekturbüro. Jetzt informieren! …
- … Kostenschätzung, DIN 276, Neubau, Schulgebäude, Architekturbüro, Anleitung, …
- … Architektur, Bauwesen, Kostenschätzung, DINAbk.-Normen, Schulbau …
- … ich mache gerade mein Praktikum in einem Architekturbüro und soll für ein neues Bauprojekt Neubau Schulgebäude eine …
- … anfallen und nicht direkt dem Bauwerk zuzuordnen sind. Dazu gehören z.B. Architektenhonorare, Genehmigungsgebühren, Bauleitung, Baustelleneinrichtung und Versicherungen.Verwandte Begriffe: Baukosten, Projektkosten, Honorar. …
- … Schulgebäude?Kostenkennwerte für Schulgebäude finden Sie in Baukosteninformationsdiensten, Baukostenbüchern, Veröffentlichungen von Architektenkammern und in der Datenbank vergleichbarer Projekte Ihres Architekturbüros. …
- … umfassen Kosten, die nicht direkt dem Bauwerk zuzuordnen sind, wie z.B. Architektenhonorare, Genehmigungsgebühren, Bauleitung, Baustelleneinrichtung und Versicherungen. Diese werden in der Regel …
- … Kostenschätzung Neubau: Erfahrungswerte aus Architektur & Haustechnik …
- … der Zusammenarbeit von Architektur und Haustechnik. Es ist also nichts für einen Praktikanten. Eine Hilfe könnte ein ausgeführtes Projekt sein. Diese Kosten Brutto plus 20 % könnten fürs erste passen. Auf jeden Fall müssen die veranschlagten Kosten um 20-25 % überschritten werden. Genauer wird es dann bei der Kostenberechnung. …
- … 💡 Kernaussagen: Eine realistische Kostenschätzung für Neubauten erfordert Erfahrungswerte und die enge Zusammenarbeit von Architekten und Haustechnik-Experten. Für Praktikanten ist diese Aufgabe aufgrund der …
- … ⚠️ Wichtiger Hinweis: Laut Beitrag von Kostenschätzung Neubau: Erfahrungswerte aus Architektur & Haustechnik, sollten die veranschlagten Kosten tendenziell um 20-25% überschritten …
- … Sie sich an ausgeführten Projekten orientieren und die Expertise von erfahrenen Architekten und Haustechnikern einbeziehen. Beachten Sie die potenziellen Kostenüberschreitungen und …
- BAU-Forum - Architekt / Architektur - Architektenvertrag Auflösen: Kosten, Risiken & Alternativen bei Planungsfehlern?
- … Architekt verursacht Planungsfehler & Kostenexplosion? Vertrag auflösen? Infos zu Kosten, Risiken & Alternativen. Jetzt informieren! …
- … Architektenvertrag, Auflösung, Kündigung, Planungsfehler, Baukosten, Honorar, Schadensersatz, Bauleitung …
- … Architektur, …
- … Architektenvertrag Auflösen: Kosten, Risiken & Alternativen bei Planungsfehlern? …
- … Umbau Haus 100 Jahre alt mit Architekten geplant. Budget 200 000 …
- … Dann kam die LP6 (ohne LPAbk. 5!). Architekt wollte erstmal anhand einer Standardbemusterung die er später mit uns besprechen …
- … Architekt versprach Nachbesserung, plante 100 000 raus, ohne dass sich das Gesamtbild groß veränderte. (ER nahm einfach den Luxus wieder raus, den er nicht mit uns besprochen hatte :) ). Er versprach uns die neuen LVS besser mit uns zu besprechen und die Werkpläne auch mit uns zu machen. …
- … Ich verstehe, dass Sie aufgrund von Planungsfehlern und Kostenüberschreitungen mit Ihrem Architekten unzufrieden sind und eine Auflösung …
- … 1. Vertragsprüfung: Prüfen Sie Ihren Architektenvertrag genau. Welche Leistungen sind vereinbart? Gibt es Klauseln zur Kündigung …
- … oder zum Rücktritt bei Fehlplanung oder Kostenüberschreitung? …
- … 3. Honoraranspruch: Der Architekt hat grundsätzlich Anspruch auf Honorar für die erbrachten Leistungen. Bei …
- … prüfen, ob eine einvernehmliche Lösung möglich ist. Vielleicht kann ein anderer Architekt die Planung übernehmen oder der bestehende Architekt ist bereit, die Fehler …
- … ? Gefahr: Eine unüberlegte Kündigung des Architektenvertrags kann zu erheblichen Mehrkosten und Verzögerungen führen. …
- … Architektenvertrag …
- … Ein Architektenvertrag ist ein Werkvertrag, der die Leistungen des Architekten …
- … die Planung, Bauleitung und Objektüberwachung. Verwandte Begriffe: Bauvertrag, Werkvertrag, Honorarordnung für Architekten und Ingenieure (HOAIAbk.) …
- … Kosten, die für die Errichtung eines Bauwerks anfallen, einschließlich Materialkosten, Lohnkosten, Architektenhonorare und Nebenkosten.Verwandte Begriffe: Baunebenkosten, Honorar, Budget …
- … Honorarordnung für Architekten …
- … Die HOAI ist eine Verordnung, die die Honorare für Architekten- und Ingenieurleistungen regelt. Sie dient als Grundlage für die Berechnung …
- … des Architektenhonorars und soll eine angemessene Vergütung für die erbrachten Leistungen sicherstellen.Verwandte Begriffe: Architektenhonorar, Leistungsphasen, Honorarzone …
- … Koordination der Bauarbeiten durch den Architekten oder einen Bauleiter. Sie stellt sicher, dass das Bauvorhaben gemäß den Planungen und den geltenden Vorschriften umgesetzt wird.Verwandte Begriffe: Objektüberwachung, Bauüberwachung, Koordination …
- … Frage: Welche Gründe berechtigen zur Kündigung eines Architektenvertrags? …
- … führen, können eine Kündigung rechtfertigen. Auch wenn der Architekt seine vertraglichen Pflichten nicht erfüllt oder das Vertrauensverhältnis zerstört ist, kann eine Kündigung in Betracht gezogen werden. …
- … Frage: Welche Kosten entstehen bei der Kündigung eines Architektenvertrags? …
- … Leistungen des Architekten entstehen. Zudem können Schadensersatzansprüche des Architekten geltend gemacht werden, wenn die Kündigung unberechtigt ist. Es ist wichtig, die finanziellen Folgen einer Kündigung im Vorfeld abzuklären. …
- … Frage: Kann ich Schadensersatz vom Architekten fordern? …
- … Antwort: Ja, wenn der Architekt Planungsfehler verursacht hat, …
- … Sie Schadensersatzansprüche geltend machen. Hierfür müssen Sie jedoch nachweisen, dass der Architekt seine Pflichten verletzt hat und dass Ihnen dadurch ein Schaden entstanden …
- … Frage: Was ist der Unterschied zwischen Kündigung und Rücktritt vom Architektenvertrag? …
- … Frage: Wie finde ich einen neuen Architekten? …
- … Antwort: Sie können sich an Architektenkammern oder Berufsverbände wenden, …
- … um qualifizierte Architekten in Ihrer Region zu finden. Achten Sie auf Referenzen und Erfahrungen des Architekten mit ähnlichen Projekten. Führen Sie ausführliche Gespräche, um sicherzustellen, …
- … dass die Chemie stimmt und der Architekt Ihre Vorstellungen versteht. …
- … ArchitektenhaftungWelche Pflichten hat ein Architekt und wann haftet er für …
- … Architektenvertrag: Anwalt einschalten bei Planungsfehlern! …
- … Das ist ja wohl der gespielte Witz. Ich würde nicht nur einen Anwalt einschalten, sondern auch die Architektenkammer. …
- … Architektenvertrag: Aufzwingen bei Inkompatibilität? …
- … Zeilen: Sie sind ein lästiger Bauherr der ständig mit Eigenleistungen dem Architekt in seine Planung funkt. …
- … als ein Schrecken ohne Ende. Sie werden sich wohl einen neuen Architekt angeln müssen. Zwingen können Sie den Architekten nur zu dem …
- … was schriftlich vereinbart ist. Einem Freund wird der Architekt das Projekt nicht weiter vermitteln, höchstens einem Feind. Gruß …
- … Planungsfehler: Architekt ohne Vertrag – Honorar erhöhen? …
- … Der Architekt hat nach eigener Aussage Fehler gemacht die er nicht mehr berichtigen kann. Sprich: er hat Leistungen ohne Absprache verändert, Mengen vergessen (!) usw. …
- … Architektenvertrag: Diplomatische Lösung mit Werkplänen & LVs …
- … Architektenvertrag Auflösen: Planungsfehler & Alternativen …
- … 💡 Kernaussagen: Die Diskussion dreht sich um die Auflösung eines Architektenvertrags aufgrund von Planungsfehlern und Kostenüberschreitungen. Einigkeit besteht darin, …
- … für die weitere Planung wird hervorgehoben. Es wird diskutiert, ob der Architekt zur Fertigstellung gezwungen werden kann und welche Alternativen zur Verfügung stehen. …
- … Wichtiger Hinweis: Im Beitrag Architektenvertrag: Anwalt einschalten bei Planungsfehlern! wird empfohlen, bei schwerwiegenden Planungsfehlern und mangelnder Kooperationsbereitschaft des Architekten einen Anwalt und die Architektenkammer einzuschalten. …
- … einer klaren Vereinbarung über die Baukosten unterstreicht. Die Frage, ob der Architekt sein Honorar erhöhen möchte, wird im Beitrag Planungsfehler: Architekt ohne Vertrag …
- … 🔧 Zusatzinfo: Der Beitrag Architektenvertrag: Diplomatische Lösung mit Werkplänen & LVs betont die Notwendigkeit von Werkplänen und LVs für die weitere Planung und die Suche nach einem neuen Planer. Der E-Mail-Verkehr kann als Nachweis für getroffene Vereinbarungen dienen. …
- … 👉 Handlungsempfehlung: Es wird empfohlen, zunächst eine diplomatische Lösung zu suchen und alle Vereinbarungen schriftlich festzuhalten. Sollte dies nicht möglich sein, ist die Einschaltung eines Anwalts ratsam. Klären Sie die Honorarfrage und die Verantwortlichkeiten für die Planungsfehler. Prüfen Sie Alternativen zur Kündigung des Architektenvertrags, wie z.B. eine Anpassung des Leistungsumfangs. …
- … ur/11276.php,/forum/architektur/11097.php,/forum/architektur/11051.php,/forum/architektur/10877.php, …
- … forum/architektur/10875.php,/forum/architektur/10716.php,/forum/architektur/10630.php,/forum/architektur/10595.php,/forum/architektur/10514.php,/forum/architektur/10472.php …
- BAU-Forum - Architekt / Architektur - Kostenüberschreitung beim Hausumbau: Was tun bei 50% Aufpreis? Reißleine ziehen?
- … Kostenüberschreitung Umbau: Was tun? …
- … Hausumbau-Kosten explodiert? Architekt überschreitet Budget um 50%! Reißleine ziehen? Tipps zur Kostenkontrolle & …
- … Kostenüberschreitung, Hausumbau, Architekt, Budget, Reißleine, Nachtrag, Bauvertrag, Sanierungskosten, Baukosten, Anwalt …
- … Bauwesen, Architektenrecht, Kostenkontrolle, Sanierung, Finanzierung …
- … Kostenüberschreitung beim Hausumbau: Was tun bei …
- … Wir wollten dies nun umbauen dass 2 getrennte Wohneinheiten entstehen. Der Architekt machte uns sehr schöne Pläne, jedoch war unser Limit ursprünglich 200 …
- … über der Kostenberechnung. Von den angeschriebenen Schlossern kam kein Angebot. Der Architekt empfahl mir selbst noch Schlosser zu akquirieren. Ich übernahm seine Arbeit …
- … Budget von 200 000 undeiner Kostenberechnung von 260 000 . Die Architektin erklärte dies mit Auflagen des Statikers und saisonal ungünstigen Preisen. …
- … Die Kostenüberschreitung von 50% beim Hausumbau ist ein deutliches Warnsignal. Es ist wichtig, …
- … Fehlerhafte Kostenberechnung: Die ursprüngliche Kostenschätzung des Architekten war unrealistisch. …
- … Teuerung: Steigende Material- und Lohnkosten können zu einer Kostenüberschreitung führen. …
- … Bauvertrag: Welche Vereinbarungen wurden hinsichtlich Kostenüberschreitungen getroffen? Gibt es Klauseln, die Ihre Rechte schützen? …
- … Fordern Sie eine detaillierte Aufstellung der Mehrkosten an: Lassen Sie sich vom Architekten jeden einzelnen Posten erklären und belegen. …
- … Angemessenheit der Kosten prüfen und Ihnen bei der Verhandlung mit dem Architekten helfen. …
- … ? Gefahr: Eine unkontrollierte Kostenüberschreitung kann zu finanziellen Schwierigkeiten und sogar zum Baustopp führen. …
- … Ein Experte, der über fundierte Kenntnisse im Bauwesen verfügt und in der Lage ist, Bauleistungen zu beurteilen, Schäden festzustellen und Gutachten zu erstellen.Verwandte Begriffe: Architekt, Bauingenieur, Gutachter. …
- … beider Parteien im Zusammenhang mit einem Bauprojekt regelt.Verwandte Begriffe: Werkvertrag, Bauleistungsvertrag, Architektenvertrag. …
- … Frage: Welche Rechte habe ich als Bauherr bei einer Kostenüberschreitung? …
- … auf eine Überprüfung der Angemessenheit der Kosten. Bei groben Fehlern des Architekten oder Bauunternehmers können Sie Schadensersatzansprüche geltend machen. …
- … ist essentiell, da er die Rechte und Pflichten aller Beteiligten (Bauherr, Architekt, Bauunternehmen) festlegt. Er sollte alle wesentlichen Aspekte des Bauprojekts regeln, einschließlich …
- … ArchitektenrechtRechte und Pflichten von Architekten und Bauherren im Rahmen eines Architektenvertrags. …
- … Architektenleistung: Reale Baukosten durch Ausschreibung ermittelt …
- … die Architektin.. …
- … ergeben als Sie sich das vorgestellt hatten ist eine Schuld der Architektin nicht zu erkennen. …
- … Kostenüberschreitung: Architekten-Kostenschätzung vs. Angebote …
- … Die ganze Bauphase wurde vom Architekt ... …
- … Hallo Die ganze Bauphase wurde vom Architekt Hallo …
- … Die ganze Bauphase wurde vom Architekt von Anfang an …
- … 2) Vorschläge des Architekten …
- … 4) Kostenschätzung des Architekten ( Mit 200 000 müssen sie …
- … Klarstellung: Architekten-Kostenberechnung basiert auf Bemusterung …
- … habe, dass wir bei 260 000 waren. Damit meine ich den Architekten und uns. …
- … Die Kostenberechnung wurde vom Architekten anhand seiner …
- … Der Architekt war mit der kompletten Planung, Genehmigung, Ausschreibung und Durchführung der Baumaaßnahme …
- … Mein Architekt ist jetzt erstmal 3 Wochen vor geplantem Baubeginn in Urlaub, ohne …
- … Altbau-Umbau: Architekt muss Mehrkosten transparent kommunizieren …
- … 200 % an Mehrkosten gegenüber einem Neubau ... wenn dir das dein Architekt nicht gleich gesagt hat, dann hast du den falschen Mann erwischt …
- … auch alles in Ordnung. Wir planen seit 1,5 Jahren mit dem Architekt. Kostenschätzung war im Juli 2012 Kostenberechnung war im Januar 2013. Es …
- … Wir werden so jetzt erstmal nicht bauen und vom Architekten eine ausreichende Erklärung einfordern. Dann bin ich der Meinung dass …
- … unser Vorhaben woanders anpassen lassen. Da ärgerliche ist nur dass der Architekt bis jetzt schon ein Schweinegeld bekommt. In der Berechnung hat er …
- … HOAIAbk.-Honorare: Baukosten-Erhöhung als Masche des Architekten? …
- … Masche des Architekten sein, die Baukosten so hoch wie möglich zu jubeln, um sein eigenes Honorar zu verdoppeln ... die Würze liegt meistens oft ganz verborgen in den LVAbk.'s und den Details, denn wenn man ganz fein versteckt dort gewisse teure Sachen ausschreibt, dann erhöhen sich die Baukosten und keiner kann es prüfen ... der Handwerker freut sich dann über einen tollen Auftrag, der Architekt freut sich über erhöhte Baukosten und der Bauherr freut sich …
- … wieder die Frage nach dem Detail .. wie immer ... und Architekten besonders Architektinnen haben das persönliche Bedürfnis, sich immer mit …
- … Vereinbart laut Vertrag warn mit dem Architekten bei Gebäudeklasse 3 der Höchstsatz zzgl. 35 % für Bauen im …
- … das ist schwer ... einen alten erfahrenen Architekten, oder auch und noch besser Bauleiter? oder Rentner der Zeit …
- … Kostenexplosion: Angebote 40% über Architekten-Berechnung! …
- … haben alle gesagt, so was haben sie noch nie gesehen. Die Architektin wolle nur die Bausumme hoch halten und habe sich verzockt. …
- … Nun ja die Werkpläne wollte der Architekt uns partout nicht geben vor dem nächsten gemeinsamen Termin. Es müsse …
- … Architektenvertrag: Kündigung bei unzureichender Budgetplanung? …
- … Also in dem geschilderten Fall liegt es so, dass der Architekt für alles beauftragt wurde, seine Ausschreibung aber zu dem Ergebnis …
- … das Budget wäre nicht ausreichend. Im Raum steht die Kündigung des Architektenvertrages und die Aufgabe des Bauprojektes. …
- … Prinzipiell ist der Architektenvertrag …
- … jederzeit vom Auftraggeber kündbar (§ 649BGB). Einzelne Phasen (Ausschreibung) hat der Architekt vollendet, für diese Phase steht ihm das Honorar meines Erachtens zu. …
- … nicht erbrachten Leistungen der zukünftigen Phasen. Hisnichtlich dieser Leistungen ist der Architekt berechtigt (§ 649 S. 2 BGBAbk.) die vereinbarte Vergütung zu verlangen, …
- … Meine Empfehlung wäre es mit dem Architekten zu verhandeln. Bei Streit hilft auch die Architektenkammer mit …
- … Kostenreduktion: Architekt optimiert Planung nach Gespräch …
- … Wir hatten mittlerweile das Gespräch mit dem Architekten und er versprach unsnachzubessern. Es stellte sich heraus dass er …
- … an alle die, die meinen, man müsse doch Verständnis für einen Architekten haben, das beim Altbau nicht alles so exakt planbar sei, …
- … Aufpreis von 50 % in ihrem Alltag zubeszahlen. Und warumsoll ich einen Architekten in LPAbk. 1 und LP3 bezahlen, wenn man es nicht …
- … Kostenüberschreitung beim Hausumbau: Ursachen und Lösungen …
- … 💡 Kernaussagen: Die Diskussion dreht sich um eine Kostenüberschreitung von 50% bei einem Hausumbau. Beteiligte diskutieren über die Verantwortung …
- … des Architekten, die Genauigkeit der Kostenschätzung und mögliche Einsparpotenziale. Es wird empfohlen, einen unabhängigen Gutachter oder Anwalt für Baurecht hinzuzuziehen, um die Situation zu bewerten und rechtliche Schritte zu prüfen. Die Bedeutung einer transparenten Kommunikation und detaillierten Leistungsverzeichnisse wird hervorgehoben. …
- … ⚠️ Wichtiger Hinweis: Laut Altbau-Umbau: Architekt muss Mehrkosten transparent kommunizieren können bei Altbau-Sanierungen Mehrkosten von 100-200 …
- … gegenüber Neubauten entstehen. Dies sollte der Architekt im Vorfeld klar kommunizieren. …
- … 💰 Zusatzinfo: Im Beitrag Kostenreduktion: Architekt optimiert Planung nach Gespräch wird berichtet, dass durch die Reduzierung …
- … von einem Fachmann kontrollieren zu lassen (siehe Kostenexplosion: Angebote 40% über Architekten-Berechnung!). Zudem sollte man die Möglichkeit einer Kündigung des Architekt …
- … 11270.php,/forum/architektur/11163.php,/forum/architektur/10407.php,/forum/finanz/11960.php,/forum/neubau/14738.php,/forum/alternat/11195.php,/forum/architektur/11402.php,/forum/architektur/11345.php,/forum/architektur/11306.php, …
- … forum/architektur/11300.php …
- BAU-Forum - Architekt / Architektur - Architekt haftbar machen: Baumängel, Kostenüberschreitung & Pflichtverletzung?
- … Architekt haftbar machen? Voraussetzungen & Vorgehen …
- … Wann haftet ein Architekt? Bei Baumängeln, Kostenüberschreitung? Welche Pflichten hat er? Jetzt informieren & …
- … Architekt, Haftung, Baumängel, Kostenüberschreitung, Pflichtverletzung, Baurecht, Gewährleistung, Schadensersatz …
- … Architektur, Baurecht, Haftung, Bauwesen, Immobilien …
- … Architekt haftbar machen: Baumängel, Kostenüberschreitung …
- … was realistisch für uns war und das wurde auch so vom Architekten realistisch eingestuft. das Grundstück schlug mit 70 t zu buche. …
- … fürs Haus. so weit , so gut. die DINAbk. 276 des Architekten betrug 158 t die zur Finanzierung bei der Bank eingereicht …
- … schießen werden, so um ca. 35000 ! Schnell nen Termin mit dem Architekten gemacht, der konnte das nicht nachvollziehen, sei doch alles im …
- … Um zu beurteilen, ob der Architekt haftbar gemacht werden kann, sind folgende Aspekte relevant: …
- … festgestellt, die auf Planungs- oder Bauaufsichtsfehler des Architekten zurückzuführen sind? …
- … Kostenüberschreitung: Weicht der tatsächliche Preis erheblich von der vereinbarten Bausumme …
- … ab? Hierbei ist zu prüfen, ob der Architekt seine Pflicht zur Kostenkontrolle verletzt hat. …
- … Pflichtverletzungen: Hat der Architekt seine vertraglichen Pflichten (z.B. Bauleitung, Koordination der Gewerke) nicht ordnungsgemäß …
- … Für eine Haftung müssen die Pflichtverletzungen des Architekten ursächlich für den entstandenen Schaden sein. Die Beweislast liegt grundsätzlich beim Bauherrn. …
- … KostenkontrolleDie Kostenkontrolle ist die fortlaufende Überwachung und Steuerung der Baukosten während der Planungs- und Bauphase. Ziel ist es, die vereinbarte Bausumme einzuhalten und Kostenüberschreitungen zu vermeiden.Verwandte Begriffe: Kostenschätzung, Budget, Nachtrag …
- … eine Vertragspartei ihre vertraglichen Pflichten nicht oder nicht ordnungsgemäß erfüllt. Im Architektenrecht kann dies beispielsweise die Verletzung der Bauaufsichtspflicht oder der Pflicht …
- … BauaufsichtDie Bauaufsicht ist die Überwachung der Bauausführung durch den Architekten oder Bauleiter. Ziel ist es, sicherzustellen, dass das Bauvorhaben gemäß …
- … GewährleistungDie Gewährleistung ist die gesetzliche oder vertragliche Haftung des Architekten oder Bauunternehmers für Mängel am Bauwerk. Die Gewährleistungsfrist beträgt in …
- … einen erlittenen Schaden erhält. Im Baurecht kann Schadensersatz beispielsweise für Baumängel, Kostenüberschreitungen oder entgangenen Gewinn gefordert werden.Verwandte Begriffe: Minderung, Nachbesserung, Aufwendungsersatz …
- … Frage: Wann haftet ein Architekt für Baumängel?Ein Architekt haftet für Baumängel, wenn diese auf Planungs- oder Bauaufsichtsfehlern beruhen. Dies kann beispielsweise der Fall sein, wenn er die Bauausführung nicht ausreichend überwacht oder fehlerhafte Pläne erstellt hat. Der Bauherr muss nachweisen, dass der Mangel auf ein Verschulden des Architekten zurückzuführen ist. …
- … Frage: Was ist, wenn der Architekt die …
- … Baukosten überschreitet?Überschreitet der Architekt die vereinbarte Baukosten, kann er haftbar gemacht werden, wenn er seine Pflicht zur Kostenkontrolle verletzt hat. Dies ist der Fall, wenn er die Kostenentwicklung nicht ausreichend überwacht, den Bauherrn nicht rechtzeitig über Kostensteigerungen informiert oder unrealistische Kostenschätzungen abgegeben hat. …
- … Frage: Welche Pflichten hat ein Architekt?Die Pflichten eines Architekten umfassen unter anderem die Erstellung …
- … Frage: Was kann ich tun, wenn ich den Architekten haftbar machen möchte?Wenn Sie den Architekten haftbar machen …
- … möchten, sollten Sie zunächst die Mängel oder Pflichtverletzungen dokumentieren und den Architekten schriftlich zur Mängelbeseitigung auffordern. Es ist ratsam, einen Anwalt für …
- … ArchitektenvertragInhalte, Rechte und Pflichten im Architektenvertrag. …
- … Bausumme vs. Wert: Architektenhaftung bei Kostenüberschreitung …
- … Architektenrechnung: Wann Kostenüberschreitung beanstanden? …
- … Dezember klar war, was ist denn jetzt so dringend? Hat der Architekt seine Schlussrechnung gestellt? …
- … Baukosten: Eigenkapital als Puffer bei Architektenhäusern …
- … Ein Architektenhaus ist kein Produkt von der Stange. …
- … Ob der Architekt haftbar gemacht werden kann? Wohl nur dann wenn er nachweislich Fehler …
- … begangen hat die zur Kostenüberschreitung in der genannten Höhe geführt haben. Geht diese Steigerung aber ursprünglich auf Sie zurück, ist schon der Gang zum Anwalt reine Zeitverschwendung. …
- … Kostensteigerung: Architekt haftbar trotz Nachverhandlungen? …
- … es gab also auch Luft in der Finanzierung. und nein, die Kostenüberschreitung ist nicht unsere schuld, denn es gab nichts an Sonderwünschen. es …
- … wurde durchaus reagiert, indem der Architekt Gewerke nachberhandelt hat. warum wir erst jetzt diesen weg gehen ist klar, sollen wir in laufender Bauphase zum Anwalt? es bringt ja nichts den Bau zu unterbrechen! ob das hazs sein Geld von fast 1500 /m² Wert ist, sei dahingestellt. die Bank und wir sagen nein. Wir reden über ein kfw 70 Haus, 126 m² wfl., ohne Garage und ohne feige Außenanlagen! Und nein, wirwollen es nicht darauf beruhen lassen und einfach unser Haus genießen. …
- … Schadensersatz: Architektenhaftung nur bei konkretem Schaden …
- … Budget vs. Architektenplanung: Hausbau nach Preisvorstellung …
- … beschrieben. Es bleibt aber die Frage: Wie bekomme ich von einem Architekten ein Haus nach meinem Budget und nicht nach seinen Preisvorstellungen. …
- … mehr, also verschulde dich einfach mehr). Wie bekomme ich also den Architekten dazu sich ans Budget zu halten. Kann dazu mal ein …
- … 1.253,97 EUR/m². Kostenmehrung also 158,73 EUR/m². Wohlgemerkt: für ein Architektenhaus in Massivbauweise, nicht für einen Bleistifttempel mit Spanplatten wie sie …
- … Baukosten: Netto vs. Brutto – Architektenkommunikation verbessern …
- … 235.000 netto (Kalkulationsgrundlage des Architekten) …
- … ergibt 280.000 (Endpreis für den Verbraucher). Was also werfen Sie dem Architekten vor, außer vielleicht, dass er diesen Unterschied vorab nicht ausreichend …
- … Bruttopreise: Pflichtangabe für Architekten gegenüber Endkunden …
- … >235.000 netto (Kalkulationsgrundlage des Architekten) zzgl. 19 % MwSt ergibt 280.000 (Endpreis für den Verbraucher). …
- … Was also werfen Sie dem Architekten vor, außer vielleicht, dass er diesen Unterschied vorab nicht ausreichend kommuniziert hat? …
- … Ich könnte mir denken, dass das auch für Architekten gilt. Es se denn, der Kunde des Architekten …
- … Waren in den 165 Tsd auch die Architektenkosten enthalten? …
- … Architekt haftbar machen: Baumängel und Kostenüberschreitung? …
- … Diskussion dreht sich um die Frage, inwieweit ein Architekt für Baumängel und Kostenüberschreitungen haftbar gemacht werden kann. Es wird betont, dass ein …
- … Architekt nur für den tatsächlich entstandenen Schaden haftet und dass Eigenkapital als …
- … ⚠️ Wichtiger Hinweis: Laut Schadensersatz: Architektenhaftung nur bei konkretem Schaden haftet der Architekt nur für den …
- … ✅ Zustimmung/Empfohlen: Der Beitrag Bruttopreise: Pflichtangabe für Architekten gegenüber Endkunden unterstreicht die Wichtigkeit, dass Architekten Endkunden die …
- … um unerwartete Kostensteigerungen abzufedern. Eine offene und transparente Kommunikation mit dem Architekten über alle Kostenaspekte ist unerlässlich. Bei Unklarheiten sollte frühzeitig rechtlicher …
- … 11225.php,/forum/alternat/10741.php,/forum/alternat/10738.php,/forum/alternat/10154.php,/forum/architektur/11428.php,/forum/architektur/11426.php,/forum/architektur/11410.php,/forum …
- … /architektur/11409.php,/forum/architektur/11408.php,/forum/architektur/11405.php …
- BAU-Forum - Architekt / Architektur - Architekt Leistungsphasen 1-4: Abbruch wegen hoher Kosten – Honoraranspruch & Alternativen?
- … Architekt: Abbruch nach LPH 1-4 – Honorar? …
- … Architekt erbrachte LPH 1-4, Projektabbruch wegen Kosten. Honoraranspruch? Alternativen zur Kostenkontrolle …
- … Architekt, Leistungsphasen, Honorar, Projektabbruch, Kostenkontrolle, Baurecht, Ausschreibung, Vergabe …
- … Architektur, Baurecht, Honorar …
- … Architekt Leistungsphasen 1-4: Abbruch wegen hoher Kosten …
- … Hallo, angenommen ein Architekt leistet zunächst die Hallo, …
- … angenommen ein Architekt leistet zunächst die Leistungsphasen 1 bis 4. …
- … Welche Leistungsphasen hat der Architekt erbracht? …
- … Wenn ein Architekt die Leistungsphasen 1 bis 4 erbracht hat und das Bauvorhaben danach …
- … aufgrund zu hoher Kosten abgebrochen wird, hat der Architekt grundsätzlich Anspruch auf Honorar für die erbrachten Leistungen. …
- … Grundlage hierfür ist die Honorarordnung für Architekten und Ingenieure (HOAIAbk.). Die HOAI regelt die Berechnung des …
- … in einzelne Abschnitte. Jede Phase umfasst spezifische Aufgaben und Verantwortlichkeiten des Architekten. Verwandte Begriffe: HOAIAbk., Architektenhonorar, Projektplanung. …
- … die Berechnung des Architektenhonorars. Verwandte Begriffe: Leistungsphasen, Architektenhonorar, anrechenbare Kosten. …
- … Anrechenbare KostenDie anrechenbaren Kosten sind die Grundlage für die Berechnung des Architektenhonorars nach HOAIAbk.. Sie umfassen die Kosten, die für die …
- … Herstellung des Bauwerks erforderlich sind. Verwandte Begriffe: HOAIAbk., Architektenhonorar, Baukosten. …
- … HonorarDas Honorar ist die Vergütung für die Leistungen des Architekten oder Ingenieurs. Es wird in der Regel auf Basis …
- … Frage: Wie wird das Honorar des Architekten berechnet?Das Honorar des Architekten wird auf Basis der …
- … die Baukosten während der Planung steigen, kann dies Auswirkungen auf das Architektenhonorar haben, da sich die anrechenbaren Kosten erhöhen. Es ist wichtig, …
- … Frage: Kann der Architekt für Kostenüberschreitungen haftbar gemacht werden?Der Architekt kann für Kostenüberschreitung …
- … ArchitektenvertragRegelt die Rechte und Pflichten von Architekt und Bauherr. …
- … HOAIAbk. Honorar: Splittertabelle für Architektenleistungen …
- … Architekt Honorar: Projektabbruch & Kostenkontrolle nach LPH 1-4 …
- … 💡 Kernaussagen: Der Thread diskutiert den Honoraranspruch eines Architekten nach Abbruch eines Bauvorhabens nach den Leistungsphasen 1-4 aufgrund …
- … HOAI ist entscheidend für die Honorarermittlung. Siehe HOAIAbk. Honorar: Splittertabelle für Architektenleistungen für eine detaillierte Aufschlüsselung. …
- … 💰 Kosten: Die Honoraransprüche des Architekten sind abhängig von den erbrachten Leistungsphasen und den vertraglichen Vereinbarungen. …
- … 👉 Handlungsempfehlung: Architekten sollten frühzeitig eine detaillierte Kostenplanung erstellen und diese regelmäßig mit …
- … dem Bauherrn abstimmen. Bei drohenden Kostenüberschreitungen sollten alternative Lösungen zur Kostenreduktion gesucht werden. Die Splittentabelle der HOAIAbk. kann hierbei helfen, die erbrachten Leistungen korrekt zu bewerten. …
- … 1775598687,/forum/architektur/11415.php,/forum/architektur/11409.php,/forum/architektur/11408.php, …
- … forum/architektur/11406.php,/forum/architektur/11404.php,/forum/architektur/11383.php,/forum/architektur/11365.php,/forum/architektur/11364.php,/forum/architektur/11361.php, …
- … forum/architektur/11346.php …
- BAU-Forum - Architekt / Architektur - Architekten Kostenplan überschritten: Was tun? Nachtrag, Rechte & Pflichten?
- … Kostenplan Architekt überschritten: Rechte …
- … Kostenplan vom Architekten überschritten? Was Sie jetzt tun müssen, welche Rechte Sie haben …
- … Kostenplan, Architekt, Mehrkosten, Baufinanzierung, Nachtrag, Baurecht, Bauvertrag, Honorar, Bauüberwachung, Kostenschätzung …
- … Architektur, Baurecht, Baufinanzierung, Kostenplanung …
- … Architekten Kostenplan überschritten: Was tun …
- … Wir haben für unser Bauvorhaben einen Architekten beauftragt der auch einen Kostenplan erstellt hat. …
- … Fa. mit Festpreis genommen und da stellt sich raus das der Architekt arbeiten und Material für 10000 vergessen hat. …
- … Wenn der Kostenplan Ihres Architekten bereits zu diesem frühen Zeitpunkt des Bauvorhabens überschritten wurde, ist …
- … Prüfen Sie den Architektenvertrag. Enthält er Vereinbarungen zu Kostensicherheit oder eine verbindliche Kostengarantie? Falls …
- … ja, hat der Architekt seine vertraglichen Pflichten verletzt. Auch ohne explizite Vereinbarung ist der Architekt verpflichtet, Sie frühzeitig über Kostenüberschreitungen zu informieren. …
- … vom Architekten eine detaillierte Aufstellung der Mehrkosten an. Vergleichen Sie diese mit dem ursprünglichen Kostenplan und hinterfragen Sie jede Abweichung. Dokumentieren Sie alle Gespräche und Vereinbarungen schriftlich. …
- … ? Gefahr: Unkontrollierte Kostenüberschreitungen können Ihre Finanzierung gefährden und im schlimmsten Fall zum …
- … Finanzierung und die Bauausführung dient. Er wird in der Regel vom Architekten oder einem spezialisierten Kostenplaner erstellt. …
- … Die Honorarordnung für Architekten und Ingenieure regelt die Leistungen und Honorare von Architekten …
- … Verwandte Begriffe: Architektenvertrag, Leistungsphasen, Honorar …
- … Architektenvertrag …
- … Ein Vertrag zwischen dem Bauherrn und dem Architekten, der die Leistungen des Architekten, das Honorar und …
- … der voraussichtlichen Kosten eines Bauvorhabens. Er wird in der Regel vom Architekten oder einem spezialisierten Kostenplaner erstellt und dient als Grundlage für …
- … die ungenaueste, der Kostenanschlag die genaueste Form. Die HOAIAbk. (Honorarordnung für Architekten und Ingenieure) regelt die Erstellung und den Inhalt von Kostenplänen. …
- … Frage: Was tun, wenn der Architekt den Kostenplan überschreitet? …
- … Antwort: Zunächst sollten Sie die Ursachen für die Überschreitung klären und den Architekten zur Rechenschaft ziehen. Prüfen Sie den Architektenvertrag auf …
- … Frage: Kann ich den Architekten für die Mehrkosten haftbar machen? …
- … Sie den Architekten für die Mehrkosten haftbar machen, wenn er seine vertraglichen Pflichten verletzt hat, z.B. durch fehlerhafte Planung oder mangelnde Information über Kostenüberschreitungen. Dies hängt jedoch von den konkreten Umständen des Einzelfalls …
- … Frage: Wie kann ich Kostenüberschreitungen vermeiden? …
- … mit dem Architekten und regelmäßige Kostenkontrolle sind wichtige Maßnahmen zur Vermeidung von Kostenüberschreitungen. Auch die frühzeitige Einbeziehung eines Bausachverständigen kann helfen, Fehler …
- … Antwort: Die HOAI (Honorarordnung für Architekten und Ingenieure) regelt die Leistungen und Honorare von Architekten …
- … Architektenvertrag prüfenWorauf Sie bei Vertragsabschluss achten sollten. …
- … Architekten Kostenüberschreitung: Hoffnung vs. Realität …
- … wollen Sie denn tun? Der Architekt hat ihnen Hoffnungen gemacht bzw. ihre eigenen Hoffnungen unterstützt, dass ihr Bau recht preisgünstig zu erstellen sei - nun stellt sich heraus, das Arbeit eben doch mehr Geld kostet. …
- … Was sagt denn der Architekt zu dem Dilemma? Reden Sie mal mit ihm, wie er …
- … Architekt: Versicherung bei Kostenüberschreitung möglich? …
- … Ist ein Architekt eigentlich versichert, wenn er ein nicht preisgünstiges Haus komplett (alle LPAbk.) baut und sich dabei zum Nachteil des Bauherrn verrechnet? Kann sich die Baufrau dagegen versichern? Selbst wenn noch genug Reserven da sind tut das ja (hoffentlich nur) weh. …
- … Architekt Kostenplan: Realistische Baukosten statt Schönrechnen …
- … Also der Architekt hat sich …
- … Also der Architekt hat sich natürlich entschuldigt was uns aber in diesem Fall nicht wirklich weiter bringt. …
- … Wir wollten auch nicht günstigt Bauen Sondern Real Bauen das wurde dem Architekten aber auch von Anfang an Mitgeteilt. …
- … Baukosten: Marktlage vs. Architekten-Haftung – Laienmeinung …
- … Rechtsberatung), sondern über die nur im Rahmen einer privaten Laienmeinung (auch Architekten und Ingenieure sollten sich in dem Fall als Laien betrachten) …
- … in den nun erzielten Preisen die Marktlage wiederspiegelt. Dafür kann der Architekt nichts. Wenn in den Leistungsverzeichnissen Dinge vergessen wurden, diese aber bezahlt …
- … Gebäude erhalten. Sie können also nicht erwarten, dass nun jemand anderes (Architekt, dessen Versicherung) Ihre Baukosten anteilig bezahlt. Allenfalls kann ich mir Schadenersatzmöglichkeiten …
- … Materialfehler: Architekt vergisst Material in Ausschreibung! …
- … Ausschreibung: Nachträge durch Architekt – Fehlerpotential! …
- … ist sehr tricky und bietet viel Fehlerpotential. Es kann sich kein Architekt und Ing davon freisprechen, dass es zu Nachträgen wegen vergessener Positionen …
- … nicht von Qualitätsarbeit, aber Sie sollten sich klarmachen, dass deshalb der Architekt keinen Schaden von 12.000,- zu begleichen hat, weil es Sowieso-Kosten sind. …
- … in ungünstigeren Kreditkonditionen, wenn nachfinanziert werden muss. Bevor Sie deshalb den Architekt mit ungewissem Ergebnis verklagen, sollten Sie verhandeln, ob wegen der Unannehmlichkeiten …
- … Architekten Kostenplan überschritten: Rechte und Pflichten …
- … 💡 Kernaussagen: Architekten-Kostenpläne sind oft unrealistisch. Bauherren sollten auf transparente Kostenschätzungen achten. …
- … Überschreitungen sollten Bauherren ihre Rechte prüfen und das Gespräch mit dem Architekten suchen. Eine Baufinanzierung muss Mehrkosten abdecken können. Nachträge sind im …
- … ⚠️ Wichtiger Hinweis: Laut Materialfehler: Architekt vergisst Material in Ausschreibung! kann es zu erheblichen Mehrkosten kommen, wenn …
- … der Architekt wesentliche Materialien in der Ausschreibung vergisst. Dies sollte vermieden werden. …
- … ✅ Zusatzinfo: Im Beitrag Baukosten: Marktlage vs. Architekten-Haftung – Laienmeinung wird diskutiert, inwiefern der Architekt für Kostensteigerungen aufgrund …
- … 🔴 Risiko: Wie im Beitrag Ausschreibung: Nachträge durch Architekt – Fehlerpotential! beschrieben, sind Nachträge aufgrund von Fehlern in Ausschreibungen und Massenberechnungen …
- … Baubeginn eine detaillierte Kostenschätzung einfordern und sich über ihre Rechte bei Kostenüberschreitungen informieren. Es ist ratsam, frühzeitig das Gespräch mit dem Architekt …
- … forum/architektur/11358.php,/forum/architektur/11310.php,/forum/architektur/11306.php,/forum/architektur/11293.php,/forum/architektur/11281.php,/forum/architektur/11270.php …
- BAU-Forum - Architekt / Architektur - Architekt zu viel geplant: Kostenüberschreitung, Honorar & Rechte bei Planungsfehlern?
- … Architekt überplant: Rechte & Kosten …
- … Architekt hat zu viel geplant? Was tun bei Kostenüberschreitung? Infos zu Honorar, Rechten und Vorgehen. Jetzt informieren! …
- … Architekt, …
- … Kostenüberschreitung, Planungsfehler, Honorar, Baurecht, Sanierung, Bauvertrag, Kostenschätzung, Architektenvertrag …
- … Architektur, Baurecht, …
- … Architekt zu viel geplant: Kostenüberschreitung, Honorar & Rechte bei Planungsfehlern? …
- … Dafür haben wir einen Architekten beauftragt (Ohne Vertrag nur mit einem von Ihm verfassten …
- … Angebot vom Architekten für LPAbk. 1-6:14.063,- brutto …
- … Wir haben bei jedem Termin mit unserem Architekten darauf hingewiesen, er solle uns sofort Bescheid sagen, wenn wir …
- … Wir können - und das weiß auch unser Architekt, dieses Bauvorhaben so nicht durchführen da unsere max. zur Verfügung stehenden …
- … mir einen Tipp oder vergleichbare Situationen nennen wie wir mit unserem Architekt umgehen sollen. Wir wollen nicht unfair sein - aber wollen auch …
- … Ich verstehe, dass Sie Probleme mit Ihrem Architekten haben, da die Kosten erheblich gestiegen sind. Da kein formeller …
- … Architektenvertrag vorliegt, ist das Protokoll des Architekten von Bedeutung. …
- … Ich empfehle Ihnen, die Planungsleistungen des Architekten genau zu prüfen. Wurden Leistungen erbracht, die nicht notwendig waren …
- … oder die über das vereinbarte Maß hinausgehen? Haben Sie den Architekten rechtzeitig auf das Budget hingewiesen? …
- … ? Gefahr: Ohne schriftlichen Vertrag ist die Beweislage schwierig. Es ist ratsam, alle Kommunikation mit dem Architekten schriftlich zu führen, um einen Nachweis zu haben. …
- … ArchitektenvertragEin Architektenvertrag ist ein Vertrag zwischen einem Bauherrn und einem Architekt …
- … HOAI (Honorarordnung für Architekten und Ingenieure) ist eine Verordnung, die die Honorare für Architekten- und Ingenieurleistungen regelt.Verwandte Begriffe: Architektenvertrag, Honorar, Leistungsphasen …
- … Planungsfehler liegt vor, wenn der Architekt bei der Planung des Bauvorhabens seine Pflichten verletzt und dadurch ein Schaden entsteht.Verwandte Begriffe: Baumangel, Baupfusch, Haftung …
- … BaukostenDie Baukosten umfassen alle Kosten, die für die Errichtung eines Bauwerks anfallen, einschließlich Materialkosten, Lohnkosten und Architektenhonorare.Verwandte Begriffe: Baunebenkosten, Gesamtkosten, Investitionskosten …
- … Was tun bei einer Kostenüberschreitung durch den Architekten?Prüfen Sie zunächst, ob eine verbindliche Kostenvereinbarung …
- … Habe ich Rechte, wenn kein schriftlicher Architektenvertrag vorliegt?Auch ohne schriftlichen Vertrag bestehen Rechte, insbesondere wenn ein …
- … Kann ich den Architekten für Planungsfehler haftbar machen?Ja, wenn der Architekt seine Pflichten …
- … Wie kann ich mich vor hohen Architektenkosten schützen?Schließen Sie einen schriftlichen Architektenvertrag mit klar definierten …
- … voraussichtlichen Kosten. Ein Festpreis ist eine verbindliche Vereinbarung, bei der der Architekt die Leistungen zu einem festen Preis erbringt. …
- … Protokoll des Architekten?Das Protokoll kann als Beweismittel für die getroffenen Vereinbarungen dienen, insbesondere wenn kein schriftlicher Vertrag vorliegt. …
- … Was bedeutet HOAIAbk.?HOAI steht für Honorarordnung für Architekten und Ingenieure. Sie regelt die Honorare für Architekten- …
- … Wie kann ich einen Architektenvertrag kündigen?Ein Architektenvertrag kann aus wichtigem Grund gekündigt werden, beispielsweise wenn der Architekt seine Pflichten schwerwiegend verletzt hat. …
- … Architektenvertrag kündigenGründe …
- … und Vorgehensweise bei der Kündigung eines Architektenvertrags. …
- … Honorarordnung für Architekten und Ingenieure (HOAIAbk.)Grundlagen und Anwendung der HOAI. …
- … Planungsziel verfehlt: Kein Honorar bei Kostenüberschreitung! …
- … Architektenrechnung: Grundlagen für Nebenkosten & Zuschläge …
- … Aufstellung eine solche Planung kostet. Wir haben uns damals für diesen Architekten entschieden, weil das Amt für ländlichen Raum ihn als Ansprechpartner …
- … An sich steht Ihnen als Kunde eines Architekten auch die Rechtsberatung der zustndigen Architektenkammer zu. …
- … Architektenangebot: Vorgehen bei Überschreitung Baukosten …
- … Ich habe ein Angebot vom Architekten erhalten mit den genannten Angaben. …
- … Nochmal zum Vergleich: Am Anfang geschätzer aber schriftlich vorliegender Betrag vom Architekten: 110.000,- dann im Protokoll 160.000 maximales Budget (Zählen hier nicht …
- … Morgen treffe ich mich mit dem Architekten vom Amt f. ländlichen Raum. Ihn werde ich darauf auch …
- … Architekt zu viel geplant: Honorar & Rechte bei Kostenüberschreitung …
- … des Architekten bei Überschreitung. Die korrekte Berechnung von Nebenkosten und Zuschlägen ist entscheidend. Ohne schriftlichen Vertrag gelten reduzierte Zuschläge. Die Architektenkammer bietet Rechtsberatung bei Streitigkeiten. …
- … Honorar bei zu teurer Planung! hat der Architekt keinen Anspruch auf Honorar, wenn die Planung die vereinbarten Kosten überschreitet. Dies ist besonders relevant im Kontext von Planungsfehlern und Kostenüberschreitungen. …
- … ✅ Zusatzinfo: Die Berechnungsgrundlage für Architektenhonorare basiert auf der …
- … Steckdosen und Badezimmer. Details zur korrekten Berechnung finden Sie im Beitrag Architektenrechnung: Grundlagen für Nebenkosten & Zuschläge. …
- … Die Einhaltung des Budgets ist entscheidend für die Honorarfrage, wie in Architektenangebot: Vorgehen bei Überschreitung Baukosten diskutiert. …
- … auf eine verbindliche Kostenobergrenze. Lassen Sie die Architektenrechnung von der Architektenkammer prüfen. Bei Unstimmigkeiten kann die Schlichtungsstelle der Architektenkammer helfen. …
- … Beachten Sie die Hinweise im Beitrag Planungsziel verfehlt: Kein Honorar bei Kostenüberschreitung!. …
- … 1775601043,/forum/architektur/11402.php,/forum/architektur/11345.php,/forum …
- … /architektur/11306.php,/forum/architektur/11276.php,/forum/architektur/11270.php,/forum …
- … /architektur/11266.php,/forum/architektur/11264.php,/forum/architektur/11212.php,/forum …
- … /architektur/11206.php,/forum/architektur/11172.php …
- BAU-Forum - Architekt / Architektur - Falscher Kostenvoranschlag vom Architekten: Rechte, Optionen & Kosten bei Überschreitung?
- … Kostenvoranschlag Architekt: Was tun bei Überschreitung? …
- … Kostenvoranschlag vom Architekten überschritten? Informieren Sie sich über Ihre Rechte, Optionen und …
- … Kostenvoranschlag, Architekt, Honorar, Baurecht, Überschreitung, Nachtrag, Vertrag, VOBAbk. …
- … Architektur, Baurecht, Honorarordnung …
- … Falscher Kostenvoranschlag vom Architekten: Rechte, Optionen …
- … Mein Bruder hat zusammen mit einem Architekten den Ausbau seines Hauses geplant und der Architekt hat ihm …
- … Für seine jetzige Arbeit bis kurz vor Baubeginn hat der Architekt ca. 9000 erhalten. …
- … Jetzt kam ein Anruf des Architekten das …
- … Kann das der Architekt einfach so machen oder ist das nicht rechtens? …
- … Geld vom Architekt zurück fordern die 9000 ? …
- … Wenn ein Kostenvoranschlag des Architekten deutlich überschritten wird, sollten Sie folgende Punkte prüfen: …
- … Der Architekt ist verpflichtet, Sie über erhebliche Kostensteigerungen zu informieren. Wenn dies nicht …
- … Honorarordnung für Architekten und Ingenieure (HOAIAbk.)Eine Verordnung, die die Honorare für Architekten- …
- … und Ingenieurleistungen regelt. Sie dient als Grundlage für die Berechnung der Architektenhonorare.Verwandte Begriffe: Architektenhonorar, Leistungsphasen, Honorarzonen. …
- … ArchitektenvertragEin Vertrag zwischen Bauherr und Architekt, der die Leistungen des Architekten und das zu …
- … Frage: Darf ein Architekt den Kostenvoranschlag einfach so überschreiten?Antwort: Nein, eine wesentliche Überschreitung muss …
- … Frage: Was kann ich tun, wenn der Architekt den Kostenvoranschlag ohne Vorwarnung überschreitet?Antwort: Sie sollten die Gründe für …
- … spielt die HOAIAbk. bei einem Kostenvoranschlag?Antwort: Die HOAI (Honorarordnung für Architekten und Ingenieure) regelt die Honorare für Architektenleistungen. Sie kann …
- … Frage: Kann ich den Architekten wechseln, wenn der Kostenvoranschlag massiv überschritten wird?Antwort: Das hängt …
- … Vereinbarungen ab. Unter Umständen können Sie den Vertrag kündigen, wenn der Architekt seine Pflichten verletzt hat. …
- … zu Streitigkeiten über den Kostenvoranschlag kommt?Antwort: Wichtig sind der Architektenvertrag, der Kostenvoranschlag, die Rechnungen des Architekten und die Dokumentation der Kommunikation zwischen Bauherr und Architekt …
- … Architektenhonorar berechnenWie sich das Honorar eines Architekten zusammensetzt und welche Faktoren eine Rolle spielen. …
- … Mangelhafte ArchitektenleistungWas zu tun ist, wenn der Architekt mangelhafte Leistungen erbringt und …
- … Kostenüberschreitung beim BauWie man sich vor unvorhergesehenen Kostensteigerungen beim Bau schützt. …
- … Architekt Honorar: Unklare Kostenaufteilung beim Hausbau …
- … Kostenvoranschlag Architekt: Preissteigerung vs. Angebotsfehler …
- … Architekt Kostenvoranschlag: Ungewöhnliche Preisentwicklung …
- … Architekt Kostenvoranschlag: Rechte, Optionen & Kosten bei Überschreitung …
- … dreht sich um einen Architekten, der den ursprünglichen Kostenvoranschlag für einen Hausausbau nachträglich erhöht hat. Es werden Fragen nach den Rechten des Bauherrn, möglichen Gründen für die Überschreitung und der Angemessenheit des Architektenhonorars diskutiert. Ein wichtiger Punkt ist, ob die Preissteigerung auf …
- … 60.000 €) sollte man die Aufschlüsselung genau prüfen, wie im Beitrag Architekt Honorar: Unklare Kostenaufteilung beim Hausbau erwähnt wird. Dies kann helfen, die …
- … des Kostenvoranschlags um 50% deutet entweder auf einen erheblichen Fehler des Architekten oder auf unvorhergesehene Preissteigerungen hin. In beiden Fällen sollte der …
- … Bauherr seine Rechte prüfen und gegebenenfalls das Architektenhonorar reduzieren oder zurückfordern. …
- … 📊 Fakten/Zahlen: Der ursprüngliche Kostenvoranschlag betrug 120.000 €, wovon der Architekt bereits 9.000 € Honorar erhalten hat. Die nachträgliche Erhöhung des Kostenvoranschlags …
- … wirft Fragen nach der Transparenz und Sorgfalt des Architekten auf, wie im Beitrag Architekt Kostenvoranschlag: Ungewöhnliche Preisentwicklung angedeutet wird. …
- … das Gespräch mit dem Architekten suchen, um die Gründe für die Überschreitung des Kostenvoranschlags zu klären. Anschließend sollte er seine Rechte prüfen und gegebenenfalls rechtlichen Rat einholen. Es ist ratsam, alle Vereinbarungen schriftlich festzuhalten und sich über die VOBAbk. (Vergabe- und Vertragsordnung für Bauleistungen) zu informieren. …
- … ✅ Zusatzinfo: Es ist wichtig zu klären, ob die Preissteigerung auf gestiegenen Materialkosten oder einem Fehler im Kostenvoranschlag beruht, wie im Beitrag Kostenvoranschlag Architekt: Preissteigerung vs. Angebotsfehler diskutiert wird. Bei einem Fehler des …
- … Architekten hat der Bauherr möglicherweise Anspruch auf Schadensersatz oder Reduzierung des …
- … 10917.php,/forum/alternat/10741.php,/forum/alternat/10355.php,/forum/alternat/10330.php,/forum/architektur/11409.php,/forum/architektur/11401.php,/forum/architektur/11386.php,/forum …
- … /architektur/11373.php,/forum/architektur/11340.php,/forum/architektur/11333.php …
Interne Suche verfeinern: Weitere Suchbegriffe eingeben und mehr zu "Architekt, Kostenüberschreitung" finden
Geben Sie eigene Suchbegriffe ein, um die interne Suche zu verfeinern und noch mehr passende Fundstellen zu "Architekt, Kostenüberschreitung" oder verwandten Themen zu finden.
Interne Suche: Suchbegriffe eingeben und mehr zu "Architekt, Kostenüberschreitung" finden
Geben Sie Suchbegriffe ein, um die interne Suche zu nutzen und passende Fundstellen zu "Architekt, Kostenüberschreitung" oder verwandten Themen zu finden.
Externe Fundstellen und weiterführende Recherchen
Nachfolgende Suchlinks können Ihnen dabei helfen, ähnliche Fragestellungen zu erkunden:
Suche nach: Architekt verschätzt: Kostenexplosion um 100.000€ – Was tun? Honorar, Rechte, Alternativen
Google
Bing
AOL
DuckDuckGo
Ecosia
Qwant
Startpage
Yahoo!
Suche nach: Kostenüberschreitung Architekt: Was tun?
Google
Bing
AOL
DuckDuckGo
Ecosia
Qwant
Startpage
Yahoo!
Suche nach: Architekt, Kostenüberschreitung, Honorar, Baurecht, Kostenberechnung, Baufinanzierung, Leistungsphase, Architektenvertrag, Nachtrag
Google
Bing
AOL
DuckDuckGo
Ecosia
Qwant
Startpage
Yahoo!


